Beton und Zementrückblick 2019
Betonbau in Zürich
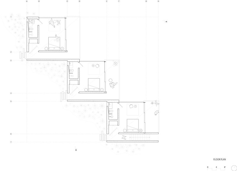
Die nüchterne, bisweilen sogar einschüchternde Gestaltung des Züricher Wohnblocks täuscht. Denn bei diesem Projekt von Gus Wüstemann trifft Lebensqualität auf leistbares Wohnen. Mit seinem Bauwerk, das als Ode an den Brutalismus erscheint, setzt der Architekt eine Landmark im suburbanen Bezirksteil Albisrieden.
Im Grüngürtel Zürichs, inmitten von Bauten der 1950er Jahre, fällt der Betonbau sofort auf. Insgesamt neun Wohneinheiten mit 60 und 90 Quadratmetern beinhaltet das aus massiven Monolithen zusammengesetzte Bauwerk. Die Wohnungen selbst wurden organisch in das Gebäude eingeplant und trotz vergleichsweise geringer Wohnkosten, die vor allem der wirtschaftlichen Gestaltung zu verdanken sind, mangelt es ihnen an nichts.
Kennzeichnend für sie sind kompromisslose, geometrische Formen und weitläufige Bereiche. Das Design bietet viele Möglichkeiten zur Individualisierung und ist daher auf unterschiedliche Personengruppen zugeschnitten. Jede Wohneinheit verfügt über einen begehbaren Außenbereich, der einen Ausblick auf die begrünte Umgebung gewährt. Auch stellte die Planung durch die Ost-West-Ausrichtung sicher, dass die Bereiche sowohl von der Morgen- als auch von der Abendsonne erhellt werden. Die Zimmer sind von großzügigen Öffnungen, die den Eindruck erwecken, als seien sie in den Beton geschnitzt worden, geprägt.
Topografische Strukturen erzielten die Architekten mit abwechslungsreichen Texturen und einem Zusammenspiel aus Holz und Beton. Die Holzoptik setzten sie bewusst ein und so kommt dieses Element vor allem in Räumen, die Intimität ausstrahlen sollen – wie Schlafzimmer und Bad – zur Anwendung. Auch Details wie Fensterbänke, Türen und einzelne Bereiche in der Küche bestehen aus dem warmen Material. Ein bemerkenswertes Designelement integrierte der Architekt in Form hölzerner Badezimmertüren in die Dreizimmerwohnungen. Die Schiebetüren gewähren Sichtschutz, ohne den Raum vollständig zu verschließen. Zwischen den Wohneinheiten wurden Treppen und Lifte platziert, sodass ein barrierefreier Zugang möglich ist und großzügig angelegte Balkone in Betonoptik sorgen dafür, dass die Bewohner ihre Behausung nicht verlassen müssen, um in den Genuss direkter Sonne zu kommen.
Fotos:©Wüstemann
Ridge House / Kalifornien / Mork-Ulnes Architects
Das Ridge House in Kalifornien
Im Norden Kaliforniens, in einem Weinbaugebiet, liegt, umgeben von den dort typischen Hügeln und vielen Weinfeldern, eine charmante kleine Stadt. Fährt man dort eine der kleinen, kurvigen Straßen die Hügel hinauf, hat man einen tollen Ausblick über die Landschaft. Auf einem dieser Hügel liegt das Refugium einer jungen Familie aus der Bay Area. Ein schon bestehendes Gästehaus mit einem Schwimmbecken liegt eingebettet zwischen Hainen aus Heidekraut und Pinienwäldern auf einem kleinen Plateau. Ein abgeschiedener Rückzugsort aus dem Alltag. Der über 70.000 Quadratmeter große Besitz bietet allerdings – abgesehen von der grandiosen Aussicht – wenig ebene Fläche als Bauland.
Die Mork-Ulnes Architects waren vom Besitzer gefordert, ein neues, zusätzliches Gästehaus zu errichten. Da die Familie ständig größer wurde, benötigte man Raum für die Besucher, wie auch für die größeren Kinder. Die Architektur sollte ebenfalls in der Nähe des Pools angesiedelt sein und deshalb entschlossen sich die Architekten, den Neubau auf Stelzen aus dem geringen ebenen Grund in den Hang des Hügels hinausragen zu lassen. So wurde auch der vorhandene ebene Bereich nicht verbaut und andererseits der Ausblick in die Landschaft gewahrt.
Ein weiteres Kriterium war es, feuersicher zu bauen, da dieser Teil Kaliforniens fast alljährlich von Buschbränden heimgesucht wird. Deshalb benutzte man fast ausschließlich Beton für den Bau, und als im Jahr 2017 große Wald- und Buschbrände die Gegend verwüsteten, überlebte das Betongebäude diese Katastrophe.
Die Besitzer wollten drei separate Gästezimmer mit eigenen Eingängen, angeschlossenen Badezimmern und je einer Außenterrasse. Ebenso sollte es ein Projekt mit geringen Wartungskosten sein. Sie präferierten holzverschalten Beton aufgrund seiner organischen, taktilen Qualität und der Fähigkeit, sich optisch den umgebenden Felsformationen anzupassen. Die Holzschalungen mit ihren deutlich sichtbaren Strukturen im Beton wecken auch Erinnerungen an die Tradition des Holzbaus, der in dieser Gegend beheimatet ist.
Durch den Entschluss, die drei benötigten Räume getrennt und nicht in einem Volumen zu realisieren, wirkt das Gesamtvolumen kleinteilig und passt sich besser der Landschaft an. Es ist, als ob drei Schutzhütten in einer Wildnis errichtet wurden. Die Topografie fließt in den Entwurf mit ein und das Grundstück bestimmt die Form und Lage. Die drei Körper steigen treppenartig den Hügel hinab, einer immer etwas tiefer als der vorige. Ein durchgehendes, vielfach gegabeltes Dach vereint die drei Räume und die Dachform referiert gleichzeitig die Bergketten und Täler der natürlichen Umgebung.
Privat, abgeschieden und mit traumhafter Aussicht sind drei Gästesuiten zu einem Feriendomizil hinzugefügt worden.
Aus der Perspektive des Pools und der Gartenebene, sind die drei Körper solide Betonprismen. Durchschreitet man die Umhüllung aus Beton, dehnt sich der Raum aus und bietet den Blick in die unendliche Weite der Landschaft. Gläserne Grenzen definieren die Raumgrößen und sind auch der einzige materialmäßige Kontrast zum Beton, als dem Hauptmerkmal und -element der Architektur.
Die Bodenplatten ragen aus dem Zimmer hinaus und gewähren so jedem Raum seine eigene, privilegierte, Aussicht und Terrasse. Die Orientierung der Zimmer weg von den sozialen Zonen des Gartens und des Pools bieten Intimität und sichern auch die thermische Performance des Gästehauses. Die soliden Betonwände und die Decke schirmen das Innere der Räume während der stärksten Hitzeperiode im Sommer ab. Die doch beträchtliche Speichermasse hält die Räume kühl und wärmt sie an kühleren Tagen. Der weite Vorsprung des Daches schützt die Terrassen und betont dabei auch den Fluss des Innenraumes der Gästesuiten in den Außenbereich.
Die südlichen und westlichen Wände sind komplett aus grauem Beton gestaltet. Nur eine kleine, quadratische Öffnung wie ein Punkt dient zur Belichtung der dahinter liegenden Badezimmer – sie unterbricht die plane Fläche. Die Nord- und die Ostseite sind verglast, mit Schiebetüren und auch fixen, aber rahmenlosen Verglasungen.
Um einen gedämpften Eindruck im Inneren zu erzielen, sind die Oberflächen aller Betonwände hier glatt gespachtelt worden. Vom Architekten eigens entworfene helle, warme Pinientüren lösen stellenweise die harten Beton- und Glasflächen ab. Sie sind aus massivem Pinienholz, mit Lauge behandelt und gekrönt von extra angefertigten, gekurvten Holzgriffen. Auch das wiederum als Gegensatz zum Beton in Sichtqualität mit seinen harten Kanten.
Auch die Badezimmer zelebrieren die Dominanz des Hauptmaterials – sie unterstreichen den monochromen Charakter dieser Architektur. Architekt Mork-Ulnes hat auch hier die Details, wie Ablageflächen und Becken, entworfen. Die glänzenden Armaturen bilden dann einen interessanten Kontrast zu den matten Betonteilen.
Ridge House
Kalifornien, USA
Bauherr: privat
Planung: Mork-Ulnes Architects
Statik: ZFA Structural Engineers, Kevin Zucco and Drew Fagent
Grundstücksfläche: 74.000 m2
Nutzfläche neu: 78 m2
Planungsbeginn: 10/2014
Bauzeit: 01/2016 – 06/2018
Fertigstellung: 06/2018
Fotos:©Bruce Damonte
Neuer Zement für Hoch- und Tiefbau

Zement hat aufgrund seiner hohen Herstellungskosten nicht gerade den besten Ruf. Die Produktion von Zementklinker erfolgt bei 1.450 °C, benötigt somit viel Energie und führt zu einem hohen Klimafußabdruck. Jetzt hat Holcim zusammen mit der ETH Zürich einen neuen, klimaschonenderen Zement im Praxistest ausprobiert. Er verursacht durch Einsparung von Klinker deutlich weniger CO2-Emissionen. Getestet wurde auf der Baustelle des B12 Illside in Nüziders. Bei der Planung des 30 m hohen Baus der neuen Firmenzentrale von GANTNER Electronic und Tomaselli Gabriel Bau entschied man sich für Heizung und Kühlung mittels Betonkernaktivierung und die Nutzung von Grundwasser. 180 m2 Fotovoltaikzellen sind in die Verglasung integriert. Das Dach ist extensiv begrünt.
Ein Teil des Gebäudes besteht aus einem neu entwickelten Zement von Holcim Schweiz, dessen Klinkeranteil bei unter 50% liegt. Dieser niedrige Wert ist weltweit einzigartig für Zement im Hochbau. Zum Vergleich: Der in Österreich verwendete Zement enthält durchschnittlich rund 70% Klinker. Verglichen mit 1990 ist der CO2-Ausstoß der Zementproduktion bereits um 30% geringer. Der neue Zement schafft eine zusätzliche CO2-Reduktion von mehr als 20%.
Als Ersatz für den Klinker enthält das neue Produkt eine Mischung aus hochwertigem Kalkstein, gebranntem Schiefer und Flugasche, einen rein natürlichen Aktivator und sorgfältig abgestimmte Betonzusatzmittel.
Alle Labortests zu den Eigenschaften von Frisch- und Festbeton sowie Dauerhaftigkeit und Korrosion hat der Beton bestanden. Ein Team der ETH Zürich platzierte dazu hochauflösende Sensorsysteme in den Betonwänden. Aus den übertragenen Daten lassen sich nun die Entwicklung des pH-Wertes, der Chloridkonzentration sowie der Feuchte kontinuierlich ablesen und auch der Karbonatisierungsfortschritt des Betons abschätzen. Ein niedriger Klinkeranteil kann die Karbonatisierung und die damit zusammenhängende Korrosion der Stahlbewehrung im Beton verstärken.
Man geht davon aus, dass der Klinkeranteil im Zement noch weiter gesenkt und damit auch der CO2-Fußabdruck weiter verringert werden kann. Zudem möchte das Unternehmen den Klinker in Zukunft vermehrt mit lokalen, erneuerbaren, bereits recyclierten Ressourcen ersetzen. Umfassende Untersuchungen im Labor laufen bereits.
Experimentierhalle
Indem sie dem Zeitgeist des gedanklichen Uniformismus entgegenwirkt, vermag die Fähigkeit der Kunst, unsere gewohnten Sichtweisen – wenn auch nur für einen Moment – auszusetzen, ihren größten Wert darstellen.
Unter diesem Motto entstand 2005 auf einem mehr als 100 Jahre alten Industriegelände in dem Prager Bezirk Holešovice das Zentrum für zeitgenössische Kunst (Centrum pro současné umění) DOX. Im vergangenen Jahr wurde die Experimentierhalle von Ivan Kroupa realisierte und international viel beachtete Vorzeigeprojekt für moderne Architektur in der Tschechischen Republik von Petr Hájek ARCHITEKTI um einen Komplex aus drei miteinander verbundenen Gebäudeteilen erweitert.
Unter dem Namen DOX + ergänzen ein experimenteller Musik- und Tanzsaal, ein Tanzproberaum sowie das Verwaltungsgebäude der angegliederten Architekturschule ARCHIP die bestehenden Ausstellungsräume. Eine skulpturartige, elastische Membranhülle stülpt sich wie ein Sofabezug über die neuen Trakte, die auf diese Weise als kompositionelles Ganzes wahrnehmbar werden. Die Fassade erfüllt dabei mehrere Funktionen, sie wirkt nicht nur thermisch isolierend und wasserabweisend, sondern auch akustisch, indem sie den Restschall aus den Hallen absorbiert und dessen Reflexionen im Wohnhof auf diese Weise verhindert.
Die Akustik der Experimentierhalle ist aber auch von innen heraus variabel und lässt sich ähnlich einem Musikinstrument stimmen und somit individuell an jedwede Produktionsanforderung adaptieren. Unter der Betondecke des quadratischen Raumes (aufgrund dieser Form können die Sichtbetonwände von Absorbern frei bleiben) sind dreiseitige, mechanisch bewegliche Paneele angebracht, die als Diffusor, Absorber oder Reflektor dienen. In Kombination mit der Zu- oder Wegschaltung der ringförmig angeordneten, angrenzenden Foyers sind auf diese Weise Nachhallzeiten von 1 bis 1,6 Sekunden justierbar. Der 550 Personen fassende Raum verfügt über eine ausfahrbare Tribühne.
Während die Hülle wie eine weiche Wolke anmutet, bildet das Innere des Saals den krassen Kontrast zur kuscheligen Sofahülle: rohe Betonwände, nackte Industrieböden, unter der Decke sichtbare Konstruktionselemente und eine wirre Ansammlung an Technikelementen. Dennoch wirken die Räumlichkeiten hell und freundlich, füllen sich mit dem Betreten der Zuschauer und Künstler mit Leben und treten als stille Kulissen bescheiden vor den großen Inszenierungen zurück.
Das zum Teil mit Kunstrasen bestückte Dach des Saals ist begehbar und bietet neben der Möglichkeit zur Entspannung auch Platz für Outdoor-Installationen oder Open-Air-Vorstellungen. Zu diesem Zwecke wurde über dem Zuschauerraum eine kleine Hängebrücke für akrobatische Einlagen platziert. Das für den europäischen Mies van der Rohe Award 2019 nominierte Projekt besticht durch seine schlichte Schönheit. Man möchte die Augen schließen, sich wie auf einem überdimensionalen Sofa zurücklehnen und ganz bei sich den künstlerischen Klängen lauschen.
Fotos:©Benedikt Markel, Petr Hájek ARCHITEKTI
Der Stadtelefant
Ein 08/15-Bürobau kam für die Wiener Architekten Franz&Sue (auch für den Eigenbedarf) nicht infrage. Sie entwarfen ihre eigenen Arbeitsbereiche als flexibles Raumkonzept, das den Zusammenhalt innerhalb des gesamten Gebäudes stärkt und auf zukünftige Veränderungen problemlos reagieren kann. Den Beinamen Stadtelefant verdient sich der Bau über seine mächtige Kubatur und die graue Farbgebung – im Inneren erscheint er aber alles andere als träge, sondern viel mehr lebendig und voller Energie.

Mit dem Projekt im Wiener Sonnwendviertel, einem Wohnquartier in unmittelbarer Nähe des Hauptbahnhofs, beweisen die Planer, dass grüne Architektur weit mehr als nur ein intelligentes Energiekonzept bedeuten kann. Hinter der Lochfassade aus Beton verbergen sich, inspiriert von Wiener Gründerzeitbauten, wandlungsfähige Grundrisse, die sich in Clustern organisieren. Über sechs Stockwerke und ein Dachgeschoss verteilt, ziehen hier offene Arbeitswelten für die Architekten selbst und ihre Partnerfirmen, Wohnungen und Gemeinschaftsflächen in den Multifunktionsbau ein.
Freie Grundrisse, die bei zukünftigen Umnutzungen jederzeit flexibel angepasst werden können, verdeutlichen den Nachhaltigkeitsaspekt des Stadtelefanten. Franz&Sue verzichten zur Gänze auf tragende Zwischenwände und Erschließungsbereiche. Die einzelnen Niveaus werden nur vom Treppenhaus und den Nasszellen zoniert. Im Parterre befindet sich ein Lokal, das von den Angestellten als Kantine genutzt wird und außerdem die Bewohner der Umgebung in den Bau einlädt und diesen somit belebt und mit der urbanen Struktur verwebt.
Neben dem Miteinander und der räumlichen Flexibilität widmen sich die Architekten dem Thema Nachhaltigkeit auch über bautechnische Feinheiten. Sie verzichten auf Hightech und setzen stattdessen auf intelligente Materialien. Dank dieser kann die Haustechnik auf ein Minimum reduziert werden. Die Fertigteilfassade besteht aus zwischengedämmten Betonelementen. Diese wirken gleichzeitig als Speichermasse für thermische Energie und sorgen gemeinsam mit geringer zusätzlicher Kühlung und Lüftung über die STB-Decken für ein angenehmes Raumklima. Viele Oberflächen, wie zum Beispiel die sandgestrahlte Fassade, bleiben unverkleidet, sparen Zeit und Kosten und machen den Stadtelefanten zu einem grünen oder viel mehr bunten und zukunftsweisenden Anlaufpunkt in Wien.
Fotos:©Franz&Sue, Andreas Buchberger, Abdul Fattah
Marktgemeinde Theresienfeld
Vorzeigeprojekt
In der Marktgemeinde Theresienfeld in Niederösterreich feierte man am 22. Mai 2019 die Grundsteinlegung zu einem Wohnbauvorhaben, bei dem Ökologie großgeschrieben wird. Zu den Besonderheiten dieser Wohnhausanlage zählt die innovative Gebäudetechnik mit thermischer Bauteilaktivierung. Beim Projekt Tonpfeifengasse handelt es sich um ein Vorzeigeprojekt vom Wohnkonzept über die Heizungsanlage bis hin zur Gestaltung der Freiräume und Parkplätze.

© www.schreinerkastler.at
Zu den Besonderheiten zählt unter anderem das Heizsystem, das mittels einer hocheffektiven Luftwasserwärmepumpe auf dem Dach der Gebäude über die bauteilaktivierten Betondecken die Räume im Winter wärmt bzw. im Sommer auch kühlt. Außerdem kommen noch eine Fotovoltaikanlage und Mikrowärmepumpen zur Warmwassererzeugung zum Einsatz. Der benötigte Strom wird über die Fotovoltaikanlage sowie durch die Nutzung von Ökostrom geliefert. Zusammengenommen ergeben alle diese Maßnahmen wesentlich geringere Energiekosten für die künftigen Mieter. Als zusätzliches Angebot wird es ein eCar-Sharing geben. Ein flexibles Wohnkonzept soll eine Trennung der Etagen ermöglichen. Mit ganz geringem Aufwand können aus einer großen Wohnung zwei kleine gemacht werden.
Der Start für dieses attraktive geförderte Wohnbauvorhaben in Theresienfeld wurde mit der Grundsteinlegung im Mai 2019 gesetzt. Die Gemeinnützige Wohnungsgesellschaft Arthur Krupp Ges.m.b.H. errichtet die moderne Wohnhausanlage in Form von vier jeweils 3-geschossigen Wohngebäuden mit insgesamt 28 Wohnungen. Geboten werden 3-Zimmer-Wohnungen mit rund 70 m² Nutzfläche, Gartenanteil, Terrassen bzw. Balkonen, 5-Zimmer-Maisonette-Wohnungen mit ca. 100 m² Nutzfläche und Garten oder auch zwei Dachgeschosswohnungen mit großen Terrassenflächen. Hinzu kommen noch Einlagerungsräume im Erdgeschoss der Häuser, ein Fahrrad- und Kinderwagenabstellraum und ein zentraler Müllraum sowie ein Kinderspielplatz und 59 Autoabstellplätze im Freien. Die Gesamtkosten des Projekts betragen 4,5 Mio. Euro.
VÖZ Vereinigung der Österr. Zementindustrie
T +43 (0)1 714 66 85-23
www.zement.at
Die Wiedergeburt der Vorfertigung – Sprzeczna 4 / Warschau / BBGK Architekci
Vorfertigung und Bauen aus (Beton)Fertigteilen genießen in den ehemaligen Ostländern einen schlechten Ruf. In kommunistischen Zeiten und auch während des Sozialismus wurden hier massenhaft sogenannte Paneelbauten errichtet, in schlechter Qualität, billig und für ein zeitgemäßes Wohnen heute nicht mehr geeignet. Dieses Vorurteil sitzt tief im Bewusstsein der Menschen.

Dieser prototypische Demonstrationsbau der BBGK Architekci in Warchau, Polen, versucht, mit den weitverbreiteten Vorurteilen bezüglich vorgefertigter Wohnbauten aufzuräumen. Es ist der erste in dieser Methode errichtete Bau seit 30 Jahren, seit der Zeit des Kommunismus. Alle möglichen Produktionstechniken wurden dabei angewendet: gefärbter Stahlbeton, in den Wänden eingelegte Leitungen, Deckenheizung und Reliefstrukturen.
Der mehrgeschossige Wohnbau Sprzeczna 4 der BBGK Architekci im Stadtteil Praga von Warschau ist nun ein Manifest für die Vorfertigung im architektonischen Prozess. Ganz bewusst haben die Architekten sämtliche, negativ konnotierte Kriterien und Methoden des Vorfertigungsprozesses angewandt: sichtbare Betonoberflächen, Muster und Reliefs, elektrische Installationen in den Wänden, Deckenheizung und vieles mehr. Das Resultat ist eine Architektur, die aus vielen großformatigen, in der Fabrik vorgefertigten Bauteilen zusammengesetzt ist.
Das Gebäude hat aber auch eine andere Bedeutungsebene, nämlich in städtebaulicher Hinsicht. Die Architektur erhebt den Anspruch, zu einer gelungenen und „schönen“ Restaurierung des Bezirkes Praga beizutragen, beziehungsweise will diese anregen. Sie soll nicht nur in ihrer unmittelbaren Nachbarschaft ein Zeichen setzen, sondern auch in einem größeren Maßstab. Sie soll der Ausgangspunkt für die Instandsetzung des gesamten städtischen Blockes werden. Man kann in dieser Hinsicht auch postulieren, dass der Schlüssel zur Restaurierung eines Häuserblockes dessen Straßenfassade ist. Die Ausrichtung der Architektur in einem 45 Grad-Winkel am Grundstück resultiert auch aus den Problemen des Wohnbaus in Polen. Nichtrechteckige Räume in kleinen, sperrigen Appartements – typisch für den Wohnungsmarkt in Warschau – sind nicht zum Wohnen und Leben geeignet. Somit trägt der Entwurf der Architekten mit der Drehung des Grundrisses zu einer überraschenden Lösung bei. Die rasterförmige Straßenansicht (der Nachbarbauten) wird mit Balkonen und Loggien repliziert und die maximale Baufläche genutzt. Somit entsteht wieder eine, geschlossen wirkende, Blockfassade.
Die Architekten hatten mit ihrem Büro den Auftrag bekommen, den Begriff (und die damit verbundenen Vorurteile) der Vorfertigung zu entzaubern. Diese Herausforderung haben sie angenommen. Die Architektur wurde ganz bewusst auf einem Grundstück errichtet, welches absolut nicht in die Stereotypen der Vorfertigung passte: klein und verzwickt, mitten in einer Fassade aus Gebäuden des 19. Jahrhunderts. Und genau da haben sie – unlogischerweise – die Bedingungen der Vorfertigung angewandt.
Die Liegenschaft aus den großformatigen Fertigteilen ist nicht voll ausgebaut und enthält keinerlei Accessoires, Dekorationen oder Beschläge im Innenausbau. Es ist die ehrliche Geschichte eines Gebäudes, was es eben ist, woraus es besteht und wie es funktioniert. Die Betonfertigteile sind auch ganz bewusst in roter Farbe hergestellt, um dem optischen Alterungsprozess des Materials entgegen zu wirken. Sie sind ein Kontrapunkt zu den verputzten Häusern, die nur perfekt und schön im Augenblick des Verkaufes sind, später fällt der Putz sowieso ab. Der Bezirk Praga wurde auch nach dem Zweiten Weltkrieg nie wieder komplett restauriert. Er ist somit für seine Bewohner mit der roten Farbe verbunden, weil es die Farbe der kaputten Ziegelbauten ist, ohne Verputz, die Farbe der Kriegsruinen. Und das ist im (Unter)Bewusstsein der Einwohner Warschaus eingeprägt.
Sprzeczna 4 ist auch polemisch gemeint: Gegen ein halbfeudales Konstruktionssystem (Ziegelbauten), basierend auf der Arbeit minder bezahlter Migranten mit einer Methode, die praktisch aus dem 19. Jahrhundert stammt. Es ist somit der Versuch, in Polen die Regeln des fairen Wirtschaftens und Produzierens einzuführen, samt der sozialen Verantwortung bei Verwendung einer Produktionsmethode, die in Westeuropa und Skandinavien gebräuchlich ist. Und paradoxerweise ist dieses kleine, extrem untypische, aber fortschrittliche Gebäude die Vorausschau auf eine – durch Industrialisierung und Vorfertigung – mögliche Bauweise für die Zukunft. Die Architektur steht für eine totale Vorfertigung, abgesehen von der durchlässigen Wand in der Garage (Erdgeschoss) und der Bodenplatte, dem Fundament ist alles aus Fertigteilen. Im Gebäude gibt es 57 Wohneinheiten mit Größen von 28 bis 75 Quadratmeter. Die reine Bauzeit betrug vier Monate, einschließlich des Einbaus von Fenster und Türen.
Und da moderne Architektur immer eine Verbindung zwischen Kunst und Handwerk anstreben sollte, befinden sich einige kleine Ornamente als Relief in den Betonteilen: zum Beispiel die Warschauer Meerjungfrau. In Zeiten des beginnenden Kapitalismus auch in Polen sollten auch Bewohner eines Immobilienprojektes einen Kontakt mit Kunst haben können, meinten die BBGK Architekci.
Sprzeczna 4 Wohnbau
Warschau, Polen
Bauherr: Budizol Sp. Zoo. S.K.A.
Planung: BBGK Architekci
Landschaftsplanung:Pasa Design
Statik: RWK Engineers
Grundstücksfläche: 1.319 m2
Bebaute Fläche: 741 m2
Nutzfläche: 2.660 m2
Planungsbeginn: 09/2015
Bauzeit: 2 Jahre
Fertigstellung: 2017
Text:©Peter Reischer
Fotos:©Juliusz Sokołowski
Grüner Wohnen mit Beton
Grüner Wohnen mit Beton
Das Wohnquartier MGG22 in der Mühlgrundgasse im 22. Wiener Bezirk, nur wenige Gehminuten von der Station Stadlau mit U2, S-Bahn und Bahn entfernt, bildet ein städtebauliches Ensemble mit Plätzen und Höfen, begrünt mit essbaren Pflanzen. Neben dem individuell und nachbarschaftlich gestalteten Freiraum mit seinen vielen Nutzungsmöglichkeiten stand bei der Planung vor allem das innovative Energiekonzept im Fokus.

Ökologie und Energieeffizienz waren für die Bauherren wichtige Vorgaben für das Projekt. Zusätzlich zu den drei Architekturbüros, den Architekten Thaler Thaler, Architekt Alfred Charamza sowie Sophie und Peter Thalbauer Architekten, war daher auch Harald Kuster von FIN – Future is now bei diesem Wohnbauprojekt beteiligt: Von ihm stammt das komplette Energiekonzept.
Auf dem dreigeteilten Bauplatz stehen zehn Häuser mit insgesamt 160 Wohneinheiten, die allesamt als Niedrigenergiegebäude – mit einem Heizwärmebedarf von 24–28 kWh/m²a – gebaut wurden. Für eine 70 bis 80 m2 große Wohnung sollte die Jahresrechnung für Heizung, Kühlung und Warmwasser somit unter 300 € betragen. Solch niedrige Energiekosten unterstützen nicht zuletzt auch leistbares Wohnen.
Dabei wurde mit diesem Projekt erstmalig im sozialen Wohnbau in Wien eine synergetisch-ökologische Kombination realisiert – aus 100 % erneuerbarer Energie (davon mehr als 80 % Wind-Überschuss-Strom), Erdwärme (Tiefensonden) und thermischer Bauteilaktivierung. Die Geschoßdecken aus Beton werden zum kostengünstigen Heizen und Kühlen und zugleich als Energiespeicher für Windstrom genutzt.
Die schlaue Ausnützung der Speichermasse Beton, das viele Grün und die klugen Grundrisse führten zu einem Run auf die Wohnungen, die Ende September 2019 ihren Nutzern übergeben wurden. Die Wohnhausanlage wird einem Monitoring unterzogen, damit die Ergebnisse laufend überprüft und gezeigt werden können. Für die Bewohner sind die wesentlichen Vorteile wohl die geringen Energiekosten für Heizen und Kühlen. Und für die Gesellschaft bedeutet das effiziente Energiesystem eine signifikante Steigerung der Nutzung erneuerbarer Energie bei gleichzeitiger Dekarbonisierung.
Chancen für die Zukunft
Forscher am Massachusetts Institute of Technology (MIT) haben eine neue Methode entwickelt, die CO2-Emissionen bei der Herstellung von Zement auf nahezu Null drückt. Dazu setzen sie ein elektrolytisches Verfahren ein. An der Elektrode, an der Sauerstoffperlen emporsteigen, ist das Wasser sauer, an der anderen Elektrode, die Wasserstoff produziert, ist es basisch.

Der neue Prozess basiert auf gemahlenem Kalkstein, der in der Natur abgebaut wird. Im Elektrolyseur geht das Pulver dort in Lösung, wo die Säure entsteht, und wandelt sich um in Kalk (Kalziumhydroxid) – das Ausgangsmaterial für die Herstellung von Zement. An der anderen Elektrode wird reines CO2 frei, das abgetrennt wird. Normalerweise wird Kalk durch Erhitzen des Kalksteins auf etwa 1450 Grad Celsius erhitzt. Als Brennstoff dienen Erdgas, Kohle oder Ersatzbrennstoffe. Bei diesem Prozess wird pro Tonne Zement eine Tonne CO2 frei. Quellen sind der Brennstoff und der Kalkstein, der beim Brennen ebenfalls das Klima schädigende Gas freisetzt. Das addiert sich auf drei bis vier Mrd. Tonnen pro Jahr, sagt Yet-Ming Chiang, Professor für Materialwissenschaften und Engineering am MIT. Bis 2060 werde sich die Zementproduktion verdoppeln.
Bisher funktioniert der Prozess nur im Labor. Viel Arbeit ist laut dem MIT nötig, um das Verfahren in größerem Maßstab für die Industrie funktionsfähig zu machen. Der Strom für den Elektrolyseur muss aus erneuerbaren Quellen kommen, um tatsächlich CO2-Freiheit zu erreichen. Dann bleibt noch die Frage nach Verwendung des abgetrennten CO2. Dies lässt sich laut Chiang ebenfalls mit Ökostrom in flüssige oder gasförmige Kraft- und Brennstoffe umwandeln. Nebenbei entstehen bei dieser elektrolytischen Herstellung von Kalk auch Wasser- und Sauerstoff. Chiangs Kollegin Leah Ellis glaubt, dass man diese Gase einfangen und in einer Brennstoffzelle in Strom umwandeln kann. Das würde die Energiebilanz zusätzlich verbessern.
Gegensätze in Harmonie – Architekt Gosize
Leben und Arbeiten unter einem Dach. Diese Funktionen vereint das Haus des Architekten Gosize. Kompakt, praktisch und komfortabel ist das in Nishinomiya, auf einem Areal von 61 Quadratmetern realisierte Projekt. Kernstück des Fundaments ist ein Sockel, der sich aus mehreren rechteckigen Steinblöcken zusammensetzt.

Mit seinem natürlichen Aussehen stellt er einen gelungenen Kontrast zur glatten Betonfassade dar. Voller Gegensätze und trotzdem harmonisch wirkt auch die Innenausstattung des Gebäudes. Gerade Linien und rechte Winkel dominieren den Innenraum und sorgen dabei für eine klare Abgrenzung der offen angelegten Wohnbereiche. Eine Konstante bildet alleine die nüchterne Formsprache des Brutalismus. Durch seine zurückhaltende Betonfassade fügt sich der Wohnbau nahtlos in die Umgebung ein. Im Vergleich zu den dezent gestalteten Nachbarbauten wirkt der Betonquader harmonisch und modern zugleich.
Auch verstand es der Planer, sich bei der Konstruktion das Wechselspiel der Farben zunutze zu machen. Akzente setzte er vor allem durch Kontraste an den Fußböden und im Bereich der Sitzecken. Beleuchtete Bänke verleihen den großen, weitläufigen Räumen Struktur. Durch Dachfenster werden auch die Zimmer abseits der Glasfront mit natürlichem Licht erhellt. Im Inneren finden Bewohner alles, was sie zum komfortablen Leben und Arbeiten brauchen. Neben einem Wohnzimmer samt Balkon mit Sitzgelegenheiten befinden sich im Wohnhaus eine Küche und ein barrierefrei angelegtes Bad. Durch die großzügige Anlage der Räume bieten sich viele Flächen zum Arbeiten. Die puristisch-minimalistische Ausstattung macht die Residenz zu einem vielseitigen, wandelbaren Objekt.
Dem Architekten gelang es bei seiner Planung, wichtige Sichtbezüge zur Umgebung herzustellen. Eine Glasfront legt den Blick auf den Kirschenhain vor dem Bauwerk frei. Die Grenze zwischen Innen- und Außenbereich verschwimmt in den unteren Stockwerken zusehends. Kleine Bäume säumen die Terrasse im Erdgeschoss und sorgen für eine visuelle Auflockerung. Eine Besonderheit des Hauses ist zweifelsohne der sogenannte „doma“. Der Bereich kann mit Straßenschuhen betreten werden, wobei er die Besucher in einen privaten Innenhof führt. Bewohner haben so die Möglichkeit, das Wechselspiel der Jahreszeiten zu beobachten, ohne das Haus verlassen zu müssen.
Fotos:©Nacasa & Partners, Akiyoshi Fukuzawa
Licht und Schatten – Argentinien
Das Grundstück in der Küstenstadt Cariló, Argentinien enthielt eine kleine Senke in der Mitte und einige Pinien an der Rückseite. Zwei der Kriterien des Auftraggebers für das Team von EstudioGalera Architecture waren: Privatheit trotz der Lage an einer stark befahrenen Straße und keinerlei Höhenunterschiede im Gebäude.

Die Architektur stellt nun ein autonomes Artefakt auf dem ca. 1.050 m2 großen Grundstück am Strand dar, besitzt eigentlich keine klare Identität (außer, dass sie fast komplett aus Beton besteht). Sie erweist aber der Vegetation und der Topografie der Gegend ihren Respekt. Sie erzeugt ihre eigene Welt – ein eingeschossiger rechteckiger Kubus mit Einschüben für Patios – und bietet genug belüftete Transitionsräume zwischen Innen und Außen. Diese Patios können an der Außenseite mit beweglichen Jalousien geschlossen werden, zum einen gewährt das die Privatheit der Nutzer, zum anderen den Einbruchsschutz, wenn diese nicht zu Hause sind.
Die formale Bescheidenheit der 2019 fertiggestellten Architektur ist eine Mischung zwischen Brutalismus, Industriearchitektur und japanischem Minimalismus. Sie drückt sich auch in der Materialität aus – Sichtbeton in allen Variationen. Die verwendeten Glasbausteine passen da gut ins Konzept der Formensprache und die an der Straßenseite verwendeten Sonnenschutzlamellen aus Stahlbeton geben der Architektur etwas Mystisches, wie bei einer Filmkulisse der 60er Jahre.
Fotos:©Diego Medina
Concrete Student Trophy 2019
Vor mehr als einem Jahrzehnt hat die Vereinigung der Österreichischen Zementindustrie (VÖZ) die Concrete Student Trophy in Zusammenarbeit mit den Technischen Universitäten Österreichs ins Leben gerufen. Ziel dieses Wettbewerbs ist, die interdisziplinäre Zusammenarbeit zwischen Architektur und Bauingenieurwesen bereits während der Ausbildung zu fördern.

2019 wurde das Wettbewerbsthema gemeinsam mit der Stadt Wien ausgelobt: ein barrierefreier Steg in Betonbauweise über den Donaukanal und die beiden Richtungsfahrbahnen der A4 bei der Ostbahn. Die dort vorhandene Steganlage sowie die Zu- und Abgänge entsprechen nicht mehr den derzeitigen Vorgaben der Stadt Wien.
Der Wettbewerb ist mit insgesamt 12.000 Euro dotiert, es sind Preisgelder für die Plätze 1, 2 und 3 sowie drei Anerkennungen vorgesehen. Aus 13 Einreichungen wurden die fünf Entwürfe prämiert, die städtebaulich, architektonisch, funktional und konstruktiv die überzeugendsten Lösungen bieten. Das Preisgeld für den dritten Anerkennungspreis wurde auf die fünf Teams aufgeteilt.

Der erste Platz und damit 4.200 Euro gehen an das Team „Donaustern“ (TU Graz). Auf dem zweiten Platz landet das Team „Oststeg – Zwischen Stadt & Natur“ (TU Wien), das Projekt wurde mit 3.200 Euro prämiert. Über den dritten Platz und ein Preisgeld von 2.200 Euro freut sich das Team „Spannender Bogen“ (TU Graz). Die zwei Anerkennungspreise zu je 1.200 Euro gehen an „concrete bonding“ (TU Graz) und „pont brut“ (TU Wien). Die Preisverleihung fand am 19. November 2019 im Kuppelsaal der TU Wien statt.
www.zement.at/concretestudenttrophy.
Kategorie: Allgemein, News, Produktnews














