Wald trifft Wasser
Die Fertigstellung des neuen Poolgebäudes für die City of London Freemen‘s School im britischen Surrey stellt den Abschluss der Phase II eines großangelegten Masterplans zur Entwicklung des denkmalgeschützten Campusgeländes dar. Unter der Führung der Architekten Hawkins\Brown soll die geschichtsträchtige Privatschule für Tages- und Internatsschüler für die Zukunft gerüstet werden.
Die Privatschule City of London Freemen‘s School (CLFS) wurde bereits 1854 gegründet und befindet sich inmitten einer herrlichen Naturlandschaft im englischen Surrey. 1926 übersiedelte die Schule von Brixton in den Ashtead Park und bezog das denkmalgeschützte Gebäude. Die akademisch und sportlich ausgerichtete Schule wird von Tages- wie Internatsschülern besucht. Trotz ihrer langen Tradition ist die CLFS aber keineswegs elitär – eher das Gegenteil. So wird Historie hier bewahrt und gepflegt, ohne dabei Innovation und Zukunftsdenken außer Acht zu lassen. Seit 2008 läuft in diesem Sinne ein Mehr-Phasen-Plan zur Weiterentwicklung des 230.000 m² umfassenden Areals.
Das Architektenteam von Hawkins\Brown zeichnet für die Umsetzung und Ausgestaltung der Maßnahmen auf dem Schulcampus verantwortlich. So wurden in einer ersten Phase bereits eine neue Musikschule und ein Internatsgebäude für 60 Schüler realisiert. Mit dem Umbau des unter Denkmalschutz stehenden Haupthauses wurde 2019 begonnen und für die weitere Zukunft sind ein neuer Spielplatz und eine verbesserte Landschaftsgestaltung geplant. In der zweiten Phase ergänzten die Planer die Vielzahl der Sportanlagen um einen Indoor-Pool. Der Neubau war notwendig geworden, nachdem das ursprüngliche Schwimmbad 2014 durch einen Brand zerstört worden war.
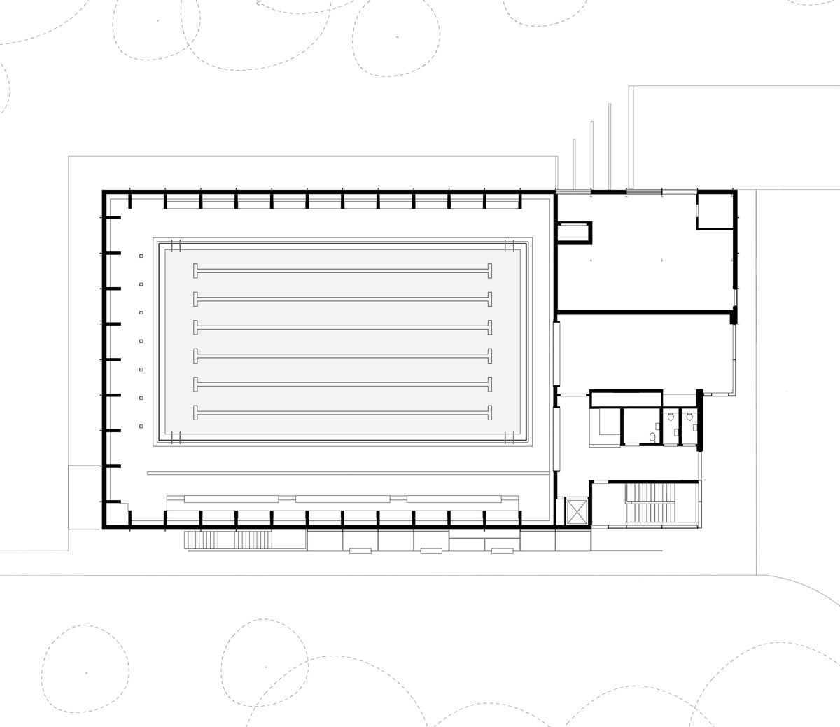
Der Neubau eröffnete die Möglichkeit, das Sportbecken von der Westseite nach Osten zu verlegen und den Pool so an die vorhandenen Sportanlagen anzugliedern. Das 25 Meter lange, wettkampftaugliche Becken umfasst sechs Bahnen, die den Schülern zu Trainingszwecken zu Verfügung stehen. Außerdem sind in dem neuen Gebäude Umkleidekabinen sowie ein Mehrzweckraum für Unterricht und Veranstaltungen untergebracht. Der besondere Reiz der Schwimmanlage liegt neben der malerischen Lage inmitten einer wilden Baumlandschaft in deren anmutigen Konstruktion aus naturbelassenem Holz.
Um dem Nachhaltigkeitsgedanken gerecht zu werden, griffen die Architekten und Statiker auf modernste Holzkonstruktions- und Vorfabrikationsmethoden zurück. Ziel war es, das Gebäude möglichst sanft in den bestehenden Kontext der historischen Wälder einzufügen und einen einladenden Rückzugsort zu schaffen. Natürliche Materialien und eine naturverbundene Farbwelt unterstützen diesen Gedanken ebenso wie die tiefen Stützen aus massivem Holz und die umlaufende vollflächige Verglasung. So eröffnen sich vom Wasser aus überraschende Blickwinkel auf die umgebende Naturlandschaft. Die Architekten sprechen von dem Gefühl, unter den Bäumen zu schwimmen. Dieser Eindruck wird dadurch noch verstärkt, dass das Untergeschoss teilweise in den Boden versenkt wurde. Dadurch fügt sich das Poolgebäude nicht nur zurückhaltend in die Landschaft, es konnte auch ein möglichst großer Teil des Baumbestandes bewahrt werden. Eine Anforderung, welche die Planer aufgrund der Kategorisierung des Campus auf der amtlichen Denkmalliste als “besonders bedeutendes Bauwerk von allgemeinem Interesse” erfüllen mussten.
Die Umsetzung der Planung wurde von dem britischen Bauunternehmen Gilbert-Ash geleitet. Bei der Konstruktion kamen Portalrahmen aus Brettschichtholz zum Einsatz, die mit Brettsperrholzplatten (CLT) verspannt wurden. Die Verwendung von Holzwerkstoffen ermöglichte eine schnelle, effiziente und klimaneutrale Bauweise. Gerade beim Blick in den Innenraum eröffnet sich zudem die schlichte Schönheit, welche die tragende Struktur mit der Gestaltung der Oberflächen ganz natürlich vereint. Die strukturell ausdrucksstarke Dachgeometrie wird durch eine Reihe sich verschiebender Brettschichtholzrahmen betont, die einen visuell dynamischen Raum schaffen. Die Holzoberfläche von Dach und Wänden ist zudem naturbelassen und lediglich weiß gebeizt. Dadurch entsteht eine für einen Indoor-Pool ganz besondere Umgebung zum Schwimmen bei direktem Bezug zur Außenwelt.
Die Vollholzkonstruktion bietet aber auch eine Reihe von Vorteilen bei der Bewältigung der Herausforderungen eines Schwimmbadbaus: Sie ist statisch belastbar, wärmeisolierend und korrosionsbeständig. Auch die relativ kurze Planungs- und Bauzeit von nur knapp einem Jahr ist auf die Vorfertigung aller konstruktiven Elemente zurückzuführen. Brettschichtholzportalrahmen, Brettsperrholzwände und das Dach konnten auf diese Weise in nur gut drei Wochen vor Ort errichtet werden.
Die massiven Konstruktionselemente wirken dabei nicht schwer oder klobig, die gesamte Struktur erscheint in ihrer Ausgestaltung vielmehr filigran und leicht. Ein durchdachtes Lichtkonzept setzt die rhythmische Abfolge der Elemente zusätzlich in Szene und schafft in den Abendstunden ein angenehmes Ambiente. Im Gegensatz zu vielen Schwimmbädern wirkt der Pool der Freemen’s School gerade nicht kalt und steril, sondern warm und einladend. Zwischen den tiefen Holzstützen sind Holzbretter montiert, die als Bank dienen. Weitere Sitzgelegenheiten bieten sich auf einer Stufe an der Längsseite des Pools. Auf diese Weise konnten zusätzliche lose Möblierungselemente vermieden werden und der Raum kann in seiner schlichten Natürlichkeit wirken.
Die Außenhaut des Gebäudes ist mit schlichten, stehend gefalzt verlegten Aluminiumpaneelen verkleidet. Der höchste Punkt des leicht geneigten Daches kennzeichnet den Haupteingang, der Über-Eck verglast in der Fassade ablesbar und durch ein Vordach gekennzeichnet ist. Beim Betreten des Foyers wirkt das Gebäude eingeschossig, durch die Hanglage und das nach unten versetzte Becken ergibt sich die großzügige Raumhöhe der Poolhalle. Im Untergeschoss befinden sich auch die Umkleiden, der Mehrzwecksaal hingegen ist neben dem Eingang situiert. Ein großes Glasfenster mit integrierter Sitzbank eröffnet den Blick auf die Bahnen des Schwimmbeckens. Bei Bedarf kann ein Vorhang zugezogen werden.
Blickt man auf die lange Geschichte der City of London Freemen‘s School und auf das ambitionierte Planungskonzept der Gegenwart, so kann man mit Sicherheit sagen, die CLFS geht einen guten Weg, um auch für die Zukunft gewappnet zu sein. In unsere Kinder und deren Bildung zu investieren lohnt sich schließlich zu jeder Zeit und in jedem Maß – besonders schön, wenn Architektur, Nutzen und Natur dabei scheinbar so spielerisch zusammenfließen, wie bei der Realisierung des neuen Poolgebäudes von Hawkins\Brown.
City of London Freemen‘s School Swimming Pool
Surrey, Großbritannien
Bauherr: City of London Corporation
Planung: Hawkins\Brown
Statik: Eckersley O‘Callaghan
Bebaute Fläche: 1.720 m2
Fertigstellung: 10/2017
Baukosten: 8.2 MIO £
Text: Linda Pezzei
Fotos: Jack Hobhouse






















