Wohnen neben der Leere – Nobeoka
House in Nobeoka / Jo Nagasaka Schemata Architects
Ein interessantes Projekt entwickelten die Schemata Architects für die Renovierung eines viel zu großen, alten Lagerhauses in Japan, um den nötigen Wohnraum für ein Paar zu schaffen. Statt das gewünschte Volumen in einem Eck oder auf der gewünschten Größe zu realisieren, benutzten sie das gesamte Volumen der Architektur und schufen vibrierende Leerräume zwischen dem Wohnraum und der äußeren Hülle.
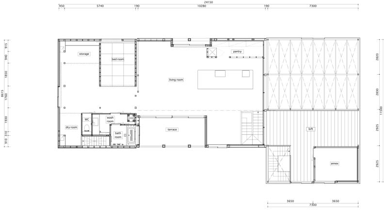
Auf den ersten Blick sieht das Objekt wie einer der typischen, japanischen Lagerschuppen aus. Teils mit Wellblech verkleidet, teils mit Holzplatten notdürftig geschlossen, Elektroleitungen und Telegrafendrähte schwirren durch den Luftraum neben der Architektur, als ob man noch nie etwas von eingebauter oder verborgener Infrastruktur gehört hätte: ein zweigeschossiger Bau aus Holz und Stahl mit einer Grundfläche von 230 und einer Nutzfläche von 440 Quadratmeter.
Diese Architektur hat eine lange Geschichte. Heute enthält sie eine renovierte Wohnung für ein Paar, welches in der Stadt Nobeoka, Japan lebt. Bereits seit deren Kindheit dient der Ort als Wohnung und auch als Fabrik. Das ursprüngliche Holzgebäude wurde erstmals als Geschäft genutzt, und als das Gewerbe blühte, erweiterte man es um zusätzliche Räume für Lagerzwecke – in einer Stahlkonstruktion. Heute stellt es sich als Komplex aus drei Blöcken dar.
Genauso ungewöhnlich wie diese Architektur ist die Geschichte hinter dem Entstehungsprozess, nachdem das Paar beschlossen hatte, das alte Lager zu renovieren, anstatt es abzureißen und neu zu bauen. Ausgangspunkt ist eine Aktion des japanischen Architekturmagazins BRUTUS. Dieses Magazin lud Paare, die ein Objekt oder ihr Haus renovieren wollten, ein und verkuppelten sie mit einer Auswahl bekannter Architekten aus Japan. Die Teilnehmer suchten sich ihren Lieblingsarchitekten und dann wurde der Kontakt hergestellt. Schemata Architects staunten nicht schlecht, als sie eine Postkarte mit dem Ansinnen der Auftraggeber erhielten. Zuerst versuchten die Architekten, mit „street view“ von Google den Ort des möglichen Auftrages zu lokalisieren. Total überrascht von der Größe des Objekts fragten sie dann an, ob es sich dabei um eine Renovierung oder doch um eine Rekonstruktion handeln sollte?
Die Spannung, die Aufregung für das Wohnen entsteht bei diesem Projekt durch den Gegensatz zwischen Leere und Gestaltung.
Man traf sich, redete miteinander und die Architekten waren von der Leidenschaft der Auftraggeber begeistert, das Alte zu bewahren und das Erbe des Gebäudes, das von ihrer Familie und den Angestellten so lange schon benutzt worden war, fortzuführen und zu erhalten. Im weiteren Verlauf der Gespräche diskutierte man verschiedenste Details und es stellte sich heraus, dass der benötigte Raum für das Paar nicht größer als 170 m2 sein würde. Selbst wenn alle erdenklichen Wünsche und Extras erfüllt würden. Das bedeutete eine Menge freien, ungenutzten Raum im Verhältnis zum Ganzen. Der Gedanke und die Vorstellung, dass mehr Raum und Fläche als notwendig zur Verfügung stand, war für die beengten japanischen, urbanen Verhältnisse fast unglaublich, auf jeden Fall: ungewöhnlich.
Die Architekten reorganisierten also den Grundriss und fixierten im Inneren die notwendigen Bereiche eben mit Leerräumen dazwischen. Und diese Leerstellen sollten auch bleiben, um eventuellen Änderungswünschen der Klienten in Zukunft entgegen zu kommen. Natürlich hieß das, dass nicht einfach ungebauter und nicht veränderter Raum zwischen den Wohnräumen zurückblieb. Diese Leerstellen verlangten auch nach gewissen Reparaturen und strukturellen Verbesserungen. Aber das sah man eben als eine Investition in die Zukunft. Das barg Herausforderungen, denn eine zukünftige Nutzung kann niemand genau vorhersehen. Heute generieren diese Leerstellen zwischen den Innenräumen und dem Umschlag der Hülle einen dynamischen Raum, der Erwartungen weckt: „Was kann dort passieren?“
Die komplett aus Holz gestalteten Innenräume sind sehr wohnlich. Der ungestaltete Raum außerhalb ist immer wieder durch verglaste Öffnungen sichtbar.
Diesem Prozess liegt der Gedanke oder die Theorie des „Uncertain Design“ (FA 06/17 – Im Osten oder Westen?) zugrunde. Die Theorie versucht, Raum oder der Architektur einen „Raum“ für die Bedingungen des Lebens und der Reproduktion, des Wachsens zur Verfügung zu stellen. Beständigkeit, Kontinuität, Nicht-Utilitarismus, Einfachheit der Materialien, Arbeit und Kosten, freie und flexible Raumnutzung, Leere – das sind essenzielle Gedanken für diesen neuen Weg einer Architektur, die vielleicht auch als eine Architektur der Freiräume beschrieben werden kann.
House in Nobeoka
Miyazaki, Japan
Bauherr: privat
Planung: Jo Nagasaka / Schemata Architectsw
Mitarbeiter: Ryosuke Yamamotu
Grundstücksfläche: 439,54 m2
Bebaute Fläche: 228,35 m2
Planungsbeginn: 03/2016
Bauzeit: 05 – 07/2017
Fertigstellung: 08/2017
Fotos:©Takumi Ota
Text:©Peter Reischer














