Ein legendäres Haus – Gemeindeamt St. Gallen
Adaptierung Gemeindeamt St. Gallen / KREINERarchitektur ZT GmbH
Vor einigen Jahren schon wurde das denkmalgeschützte „alte Gerichtsgebäude“ in St. Gallen mit viel Fingerspitzengefühl von KREINERarchitektur ZT GmbH zum neuen Gemeindeamt sowie dem Büro für den Natur- und Geopark Steirische Eisenwurzen umgebaut. 2018 bekam dann das Projekt die Auszeichnung „Steirisches Wahrzeichen 2018“ verliehen.

Ein mit viel Fingerspitzengefühl renoviertes Gebäude ist das von KREINERarchitektur ZT GmbH adaptierte, ehemalige Pantzhaus in St. Gallen (Stmk). Heute ist es das gut funktionierende Gemeindeamt mit der im Jahr 2018 erhaltenen Auszeichnung „Steirisches Wahrzeichen“.
Das Gebäude Marktplatz 35 wird in der Chronik als „Pantzhaus“ bezeichnet, heute befindet sich darin das Marktgemeindeamt. Es stellt das älteste Haus des Marktes dar. Bereits 1600 prägte das „Pantzhaus“ das Ortsbild von St. Gallen. Der Erbauer des Hauses war 1530 der Gewerke und Hammermeister Wolfgang Pantz der Erste. Er begründete damit den Stammsitz der weitverzweigten und über viele Jahrhunderte im Eisenwesen tätigen Hammerherrenfamilie. Sie zählte zu den bedeutendsten in der Steiermark. Früher bestand in diesem Haus auch eine hauptgewerkschaftliche Hammerverwaltung. Das Pantz‘sche Stammhaus, wie es auch genannt wurde, wurde von 1849 – 1977 Sitz des St. Gallener Bezirksgerichtes und ist seither im Besitz der Marktgemeinde St. Gallen. Im Zuge eines Färbelungsplanes des Ortskernes der Gemeinde in den Jahren 1970 – 1975 erhielt das Gebäude eine neue Fassadengestaltung und die grüne Farbe wurde durch eine weinrote ersetzt. Heute, nach der Renovierung erstrahlt dieses Gebäude wieder in den ursprünglichen Farben weiß und grau.
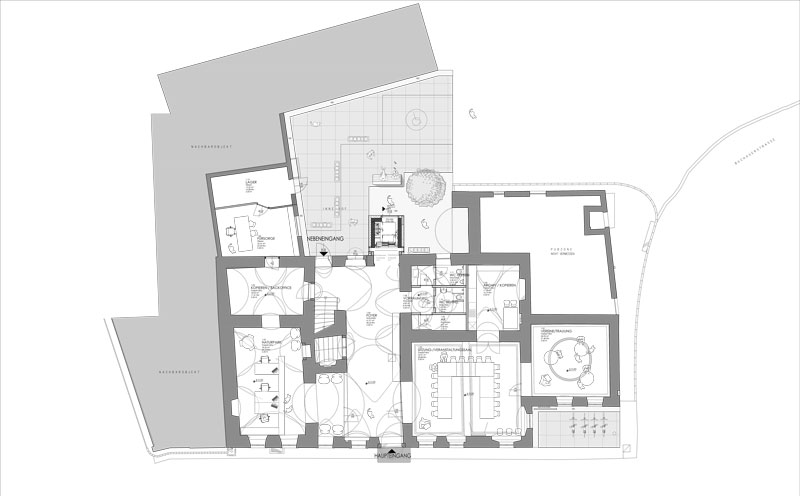
Als sogenanntes „offenes Haus“ beherbergt es nun im Erdgeschoss das Büro des Natur- und Geoparks Steirische Eisenwurzen, die Sozialberatungsstelle sowie den Sitzungs- und Trauungssaal. Diese Räumlichkeiten werden durch ein großzügiges Foyer, das auch als Erschließungszone dient, ergänzt. Bei öffentlichen Veranstaltungen oder einer Agape nach einer Trauung wird es auch als Aufenthaltsbereich genutzt. Die großzügigen Glasportale vermitteln schon beim Betreten des Gebäudes Offenheit und Transparenz. Auch die Gewölbe profitieren von der Helligkeit und der punktgenau geplanten Beleuchtung. Im Obergeschoss wurden die Büros des Bürgermeisters, das Melde- Standes- und Bauamt sowie das Bürgerservice und der Sozialraum für die Mitarbeiter angesiedelt. Hier entspricht die Raumaufteilung wieder der ursprünglichen Struktur.
Auch die denkmalgeschützte Fassade wurde behutsam restauriert und in den Originalzustand versetzt, sie verleiht dem Gemeindeamt ein insgesamt freundliches Erscheinungsbild. Im neu gestalteten Innenhof, über den auch der Zugang zum Lift gewährleistet ist, errichtete man einen Behindertenparkplatz und ermöglicht somit das barrierefreie Betreten des Gemeindeamtes. Es ist ein Projekt, bei dem man bei der Restaurierung einen sensiblen Weg gewählt hat, um Altes in die neue Zeit und die entsprechenden Anforderungen zu transformieren. Helle weiße Räume verbinden sich mit alten Elementen, Holztüren und Gewölbebögen zu einem stimmigen Gesamtbild.
Der Prozess dieser Renovierung ist ein Grund um das Projekt etwas genauer zu betrachten und auch mit Architekt Kreiner – der in Graz Architektur studiert hat – ein Gespräch zu führen:

Architekt Gerhard Kreiner
Das Projekt des Gemeindezentrums scheint auf den ersten Blick ein etwas aus dem Rahmen ihrer sonstigen Tätigkeit fallendes Projekt zu sein?
Das Thema „umfassende Sanierung“ und der Umgang mit denkmalgeschützten Gebäuden beschäftigt mich schon seit meiner Selbstständigkeit. Als junger Architekt durfte ich schon die Renovierung und den Rückbau der Wallfahrtskirche in Frauenberg, Stift Admont machen. Wir publizieren diesen Bereich unserer Arbeit aber eher weniger.
Woher kommt Ihre Vorliebe und Hinwendung, sich mit Bauen im Bestand zu befassen?
Bei Professor Riepl während des Studiums hat mich das Fach „Ländliches Siedlungswesen“ sehr geprägt. Theorie und Praxis sind sehr verschieden und das Lernen, zum Beispiel am Bestand der alten Bauernhäuser der Gegend hier, ist für mich sehr wichtig. Vielleicht kommt es auch aus meiner Familie, die Großeltern hatten einen großen Bauernhof und da war das Thema immer präsent und spannend. Der Auftrag St. Gallen hat sich so ergeben, dass ich in sehr jungen Jahren hier einmal eine Dorfgestaltung machen konnte – so war der Draht zur Gemeinde schon vorhanden.
Wie haben Sie die Substanz vorgefunden?
Die Gemeinde hat das Pantzhaus gekauft und so die Möglichkeit des Umbaus geschaffen.
Das Gebäude, das sehr schön platzbegrenzend ist, war von der Struktur her gar nicht für ein Amtsgebäude gedacht, es war teilweise als Wohngebäude genutzt. Das damalige Gemeindeamt war ebenfalls im Erdgeschoss eines anderen Wohngebäudes integriert und sollte übersiedelt werden.
Wie gehen Sie an eine derartige Aufgabe heran?
Das Wichtigste ist mir immer die Auseinandersetzung mit dem Bauherrn, der lange, gemeinsame Prozess des Fragenstellens, um die Anforderungen des Bauherrn gut zu verstehen. In diesem Prozess der Verständigung haben sich auch Fragen, wie gemeinschaftliche Nutzungen und zusätzliche Mieter, herauskristallisiert.
Dann haben wir begonnen, den Bestand zu analysieren, gemeinsam mit dem Denkmalamt die historischen Substanzen festzustellen.
Im nächsten Schritt wird ein Konzept erarbeitet und die zur Verfügung stehenden (finanziellen) Mittel werden überprüft. Da muss man manchmal mit bescheidenen Mitteln weiterkommen.
Musste bei dem Projekt viel rückgebaut und bereinigt werden?
Durchaus, im Obergeschoss waren kleine und in einem sehr schlechten Zustand befindliche unbewohnte Wohnungen, Sanitäreinheiten und Deckendurchbrüche. Die Decken waren teilweise durchfeuchtet, wir konnten sie aber alle erhalten – eben die üblichen Baumängel der 70er Jahre. Die schönen Raumsequenzen waren durch die kleinteilige Wohnstruktur fast zerstört.
Wie sollte ein Architekt oder die heutige Architektur alte Substanz behandeln?
Auf jeden Fall eine lange und intensive Auseinandersetzung mit dem Bestand! Nicht voreilig eine Struktur hineinpressen, sondern den Bestand verstehen. Möglicherweise heißt das auch, Abstriche beim Raumprogramm zu machen.
Die Bauleute, Baumeister in der damaligen Zeit (16. Jh) Zeit besaßen ein genaues Wissen über Stellung, Ausrichtung und Art der Gebäude, die sie errichtet haben. Jeder Stein wurde überlegt gesetzt. Dieses Wissen ist uns verloren gegangen. Was halten Sie von einer derartigen Zugangsweise zur Architektur?
Da komme ich ganz schnell zum alten Bauernhaus. Es gibt in der Region einige schöne Beispiele dafür. Wenn man nun in sich hineinfühlt, kann man aus der Lage dieser Architektur, warum das Haus so an diesem Ort steht, sehr viel lernen. Die Grundthemen des Ortes und des Raumes zu spüren halte ich für sehr wichtig. Wissenschaftlich setzte ich mich nicht damit auseinander, aber Fragen der Heizung in Altbauten, der Bauphysik und der Materialität beachte ich sehr wohl.
Berücksichtigen Sie spezielle Wünsche von Bauherrn in dieser Richtung?
Ja, natürlich. Pendeln, Erdstrahlen, Wasseradern – das ist alles spürbar in der Architektur. Ich glaube und vermeine auch Kraftorte spüren zu können.
Haben Sie z. Bsp. bei der Renovierung auf die verwendeten Materialien besonders geachtet?
Wir haben die alten Gewölbe freigelegt und wieder zum Vorschein gebracht und mit einem mineralischen Putz versehen, wir haben die Mauern wieder zum Atmen gebracht, wieder Holzböden hineingelegt. Das hat schon einige Überredungskraft gebraucht – und da komme ich wieder auf den Prozess zu sprechen – dass der Bauherr bereit war, in ein öffentliches Gebäude Holzböden zu legen.
Wie haben Sie die energetischen Fragen, Heizung, Klima, Lüftung gelöst?
Da sind wir wieder bei der Kostenfrage: Die Heizung ist fast unverändert beibehalten worden, eine Warmwasserzentralheizung, die an eine Hackschnitzel-Nahwärme angeschlossen ist. Im Sockelbereich im Erdgeschoss haben wir eine Bauteilheizung eingestemmt, so haben wir die aufsteigende Feuchtigkeit in den Griff bekommen.
Das Beleuchtungskonzept besonders des Foyers ist interessant: Haben Sie etwas Spezielles damit beabsichtigt? Wirkung, Atmosphäre, Wohlbefinden?
Wir wollten die Gewölbe inszenieren, kein lineares, sondern ein punktuelles Licht, sodass der Raum die Hülle bildet. Dabei haben wir den Spalt zwischen Boden und Wand, in dem die Feuchtigkeit auslüften kann, für die Installation benutzt. Es wirkt sehr unscheinbar.


Adaptierung Gemeindeamt St. Gallen
St. Gallen, Österreich
Bauherr: Marktgemeinde St. Gallen
Planung: KREINERarchitektur ZT GmbH
Grundstücksfläche: 966 m2
Bebaute Fläche: 461,61 m2
Nutzfläche: 520,98 m2
Bauzeit: 01/2015 – 07/2015
Fertigstellung: 2015
In der Antike war das heutige Gebiet von St. Gallen nur eine Wildnis östlich der Pyhrnstrasse. Erst nach der Gründung des Klosters Admont im 11. Jahrhundert wurde eine Verbindung mit dem nach Norden gerichteten Teil des Ennstals angestrebt. Damals wurde die St. Gallener Gegend als „Silva Nova“ (Neuwald) bezeichnet. Gottfried Edler von Wetternfeld erbaute 1152 zu Ehren des Hl. Gallus eine Kirche, die Erhebung zur Pfarre erfolgte 1160. Angesichts des neuen Verkehrsweges wurde in St. Gallen eine Taverne zur Stärkung der Reisenden eingerichtet. Ende des 13. Jahrhunderts war in St. Gallen ein Meister Ulrich als Arzt tätig, was ein erhebliches Wachstum der Bevölkerung voraussetzt. Die Errichtung der Burg zum Schutz des Stiftseigentums im Jahr 1278 lässt auch auf einen gewissen Wohlstand schließen.
Text:©Peter Reischer
Fotos:©KREINERarchitektur ZT GmbH
Kategorie: Magazin









