Alles im (zirkulären) Fluss
Das Schweizer Energieversorgungsunternehmen Primeo Energie wirbt damit, seinen Kunden den Ökostrom direkt „von der Natur nach Hause“ zu liefern und so zu einer nachhaltigeren Zukunft beizutragen. Passend zu dieser Philosophie realisierte das Architekturbüro Rapp auf dem Firmengelände mit dem Primeo Energie Kosmos ein Science- und Erlebniscenter. Dabei legten die Planer den Fokus auf die Themen Energiewende und Klimaneutralität und errichteten das Museum in zirkulärer Bauweise.
Im Rahmen des 125-jährigen Bestehens der Genossenschaft Elektra Birseck Münchenstein (EBM) galt es am Hauptsitz des Unternehmens bei Basel, das bereits existierende Elektrizitätsmuseum zu sanieren und um einen Neubau zu ergänzen. Als interaktiver Ort der Bildung und Wissensvermittlung sollte der neue, zweiteilige Komplex unter dem Titel Primeo Energie Kosmos das Areal erweitern und bei Interessierten sowie Schülern unterschiedlichen Alters künftig ein Bewusstsein für Klima und Energie schaffen. Für den Entwurf des neuen Science- und Erlebniscenters ließen sich die Architekten nach dem Motto „Panta rhei“ – alles fließt – vom Fluss des Stroms inspirieren und interpretierten das Bauen selbst als alternierenden, transformativen Prozess. Schließlich wollte man, dass der jüngste Zuwachs auf dem Firmengelände auch die nachhaltigen Werte des engagierten Energielieferanten repräsentiert. Um den CO2-Ausstoß zu minimieren, entschied man sich deshalb im Sinne des Cradle-to-Cradle-Prinzips für die Verwendung von recycelten Bauteilen.
Klimawandel und Energiewende sollten im Zuge dessen sowohl im modernisierten Altbau als auch im neuen Gebäudeteil hautnah erlebbar sein. Während das bestehende Haus als Erlebniszentrum wissenschaftliche Zusammenhänge anschaulich verdeutlicht, laden im neu errichteten Trakt eine Erlebnisshow, Workshops und Experimente zum Entdecken, Begreifen und Mitmachen ein. Neben den Ausstellungsflächen fungiert auch der Neubau als nachhaltiges Anschauungsobjekt: Er besteht zu über zwei Dritteln aus wiederverwendeten Materialien, B-Ware oder Abfallprodukten. Dazu kommen nachwachsende Rohstoffe aus der Region, die den Bedarf an grauer Energie weiter reduzieren. Wo Re-Use – aufgrund von Statik, Regulatorien oder Wirtschaftlichkeit – nicht möglich war, setzte man auf recycelbare Werkstoffe. Diese wurden möglichst hochwertig, unbehandelt und sortenrein gewählt. Bei einem späteren Rück- oder Umbau lassen sich die Materialien so wiederum dem Kreislauf zuführen und machen das Gebäude rundum zirkulär.
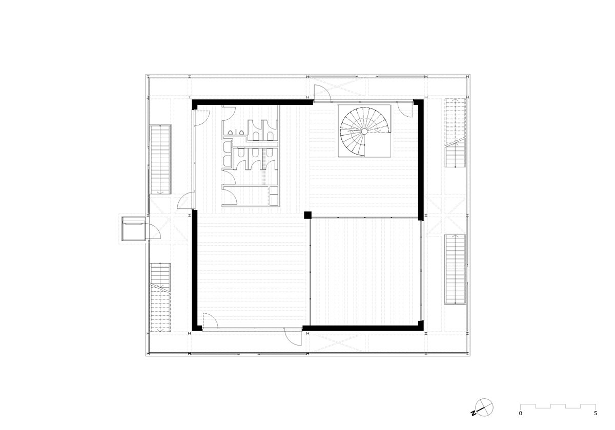
Der dreigeschossige Kubus ist als Holzskelettbau ausgeführt. Mit Spannweiten von bis zu 7,5 m bleibt die Massivholz-Konstruktion weitgehend unverkleidet und prägt mit ihren gemaserten Oberflächen sämtliche Räume. Bodenplatte und Fundamente wurden aus Recyclingbeton gefertigt. Auf dem Dach gibt es unter einer Pergola mit Photovoltaikanlage – die sich ebenfalls aus alten und neuen Paneelen zusammensetzt – geschützten Platz für Events im Freien. Im Inneren des Science-Museums verbindet ein Luftraum mit einer Wendeltreppe aus Stahl die erste und die zweite Etage. Beim Holzbelag der Stufen handelt es sich um die Überbleibsel einer einstigen Bautreppe. Die Hälfte des Eichendielenbodens im Obergeschoss stammt aus einem 1911 errichteten Bootshaus in einer Nachbargemeinde. Auch sonst kamen beim Innenausbau überwiegend recycelte Materialien und Restposten aus der Umgebung zum Einsatz, die man über eine Bauteilbörse besorgte – von einer gesamten Küche bis hin zu Trennwänden, Fliesen und Armaturen in den Sanitärbereichen. Die Fliesen erhielt man auf diesem Wege als Produktionsausschuss von den Herstellern. Sogar die Lampen wurden aus Abrissobjekten gerettet und anschließend instandgesetzt. Mit modernen LED-Leuchtmitteln ausgestattet, bilden sie nun die Grundlage des neuen Beleuchtungskonzepts.
Bei der Fassade des Holzbaus entschied man sich für Kompaktlaminat-Verschnitt von einer Baustelle in Luzern. Die Reststücke erwiesen sich trotz zusätzlichem Planungs- und Montageaufwand nicht nur als ressourcenschonende, sondern auch als kostengünstige Alternative. Vor den Ansichten wird eine Struktur aus Strommasten einer einstigen Hochspannungsleitung des Schweizer Netzbetreibers Swissgrid zum besonderen Hingucker. Die 60 Jahre alten Elemente legen sich wie verzweigte Äste als leichte Hülle vor die umlaufenden Laubengänge aus Stahl, die gleichzeitig als Fluchtweg dienen. Während die Gittermasten zuvor Strom transportierten, erhalten sie mit einer neuen Acrylbeschichtung als Rankhilfe für Kletterpflanzen ein zweites Leben. Ein grünes Blätterkleid soll das hölzerne Ausstellungsgebäude in Zukunft auf natürliche Weise verschatten und so zur passiven Regulierung des Raumklimas beitragen. Die Umsetzung des Rankgerüsts erfolgte mittels parametrischer Software und verlangte den Architekten aufgrund von Abweichungen von bis zu 10 cm bei den Stahleinzelteilen jede Menge Kreativität ab.
Auch sonst musste der Planungsprozess infolge der zirkulären Bauweise völlig umgekrempelt werden. Anstatt eine fixe Idee zu verfolgen, orientierte sich das Planerteam an den vorhandenen Materialien und passte den Entwurf den Verfügbarkeiten entsprechend an. Mithilfe von digitalen Modellen bewältigte man die Koordination der Bauteile und behielt bei Mengen und Geometrien auch auf den Partner-Baustellen des Restmaterials den Überblick.
Mit dem Primeo Energie Kosmos in Münchenstein schafften die Architekten von Rapp nicht nur ein nachhaltiges, zirkuläres Pionierprojekt, sondern verdeutlichten zugleich die Herausforderungen des Planens und Bauens von morgen. Re-Use und Recycling erfordern neben Flexibilität und Kompromissbereitschaft eine enge Zusammenarbeit aller Projektbeteiligten. Dabei kommt es aus ökonomischer Sicht zu einer Wertschöpfungsverlagerung, bei der zum einen die billigen Materialien die höheren Planungs- und Handwerkskosten ausgleichen und zum anderen auch die Digitalisierung eine zentrale Rolle spielt. Das Science- und Erlebniscenter sensibilisiert Besucher auf dem Campus des Schweizer Energieversorgers für wichtige Klima- und Energiethemen und verspricht Jung und Alt gleichermaßen Aha-Momente. Zugleich geht der neue, zirkuläre Bau selbst mit bestem Beispiel voran. Denn in Sachen Klimaschutz fließt künftig idealerweise alles nur noch auf eine Weise: in einem geschlossenen Kreislauf.
Primeo Energie Kosmos
Münchenstein, Schweiz
Bauherr: EBM (Genossenschaft Elektra Birseck Münchenstein)
Planung: Rapp AG
Landschaftsplanung: Bryum
Forschungspartner: EPFL Structural Xploration Lab
HKLS & Bauphysik: Waldhauser+Hermann
Elektroplanung: Pro Engineering
Sanitärplanung: Anima Engineering
Solarplanung: aventron
Ausstellungsplaner: Bellrat Partner
Nutzfläche: 580 m2
Planungsbeginn: 07/2020
Bauzeit: 08/2021 – 03/2022
Fertigstellung: 10/2022 (Eröffnung)
Text: Edina Obermoser
Fotos: Beat Ernst
Kategorie: Projekte










