Betonfaltungen
Dieser, wie ein dunkler Kristall an Bauten von Bruno Taut erinnernde Bau, befindet sich in einem Industriegebiet im Norden Münchens und wurde von tillicharchitektur entworfen. Das prägende Element des Neubaus für die Produktions- und Büroflächen der ‚Textilmacher‘, einem Unternehmen für Textildruck und Stickerei, ist die gefaltete Fassade und deren geometrisches Spiel mit Licht und Schatten.
Die matt glänzenden, glatten Flächen des eingefärbten Betons reagieren stets neu auf Jahres- und Tageszeit, sowie Wetter und spielen mit dem Lichteinfall. So verändert die Fassade stetig ihren Charakter und wird stärker oder weniger stark modelliert. Betrachtet man den Körper sozusagen ‚übers Eck‘, lassen sich die Verschneidungen und Verbindungen der einzelnen Elemente an der Kante sehr gut nachvollziehen. Das Interessante ist, dass die Fassade eher wie Metall als wie Beton ausschaut.
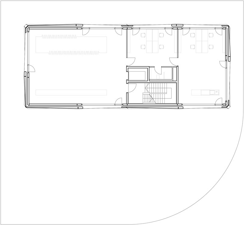
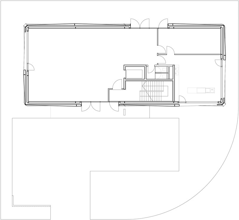
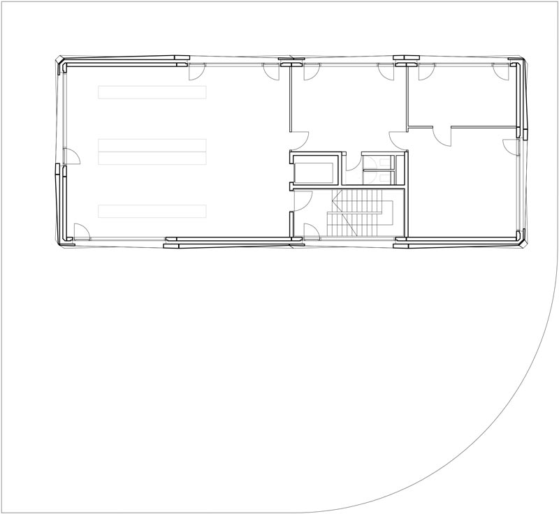
Konstruktiv wurde aufgrund des hohen Vorfertigungsgrads, der kurzen Bauzeit und der finanziellen Vorteile eine Sandwichbauweise mit Kerndämmung gewählt. Die Herausforderungen in der Umsetzung lagen in der stoß- und porenfreien sowie auch der scharfkantigen Herstellung der Elemente. Um diese für alle Geschosse identisch fertigen zu können, wurden sie jeweils versetzt zu den Etagenniveaus montiert. So reduzierte sich die Zahl der benötigten Schalungen auf insgesamt vier, zwei für die Längsseiten sowie zwei für die Stirnseiten. Der Einbau erfolgte nach einem festen Ablauf, um ein Einfädeln der 6,6 x 3,9 Meter großen Elemente zwischen den jeweiligen Nachbarn zu ermöglichen. Der Maßstab der großen Betonfertigteile findet sich bei den Verglasungen, den hohen Zugangstoren und dem nahtlos ausgeführten textilen Sonnenschutz wieder.
Auch im Innenbereich spielt Beton eine Rolle, und zwar bei den polierten Sicht-estrichen. Ansonsten ist die Gestaltung und Materialwahl eher reduziert, um den textilen Produkten nicht die Show zu stehlen. Die Produktionsbereiche verteilen sich auf zwei Ebenen, die Büronutzung und ein Showroom befinden sich in der obersten Etage, das Lager und die Technik liegen im Untergeschoss. Die stützenfreien Räume in allen Geschossen erlauben eine hohe Flexibilität und eine stetige Anpassung an die Produktionsprozesse des Unternehmens. Die Prozessabwärme der Produktionsmaschinen wird über Wärmetauscher, Wärmepumpe und Fußbodenheizung an das Gebäude zurückgeführt.
Fotos: www.michael-compensis.de
Buchtipp: Beton-Kalender 2015 — Ernst & Sohn
Kategorie: Projekte








