Dem Himmel entgegen
Expressive Farben und markante Geometrien sind das Markenzeichen von Manuelle Gautrand und den Entwürfen ihres gleichnamigen Büros. Diesem Ruf machte die französische Architektin mit dem Bürgerzentrum Phive im australischen Parramatta einmal mehr alle Ehre. Der auffällige Neubau ist nicht nur durch seine Form, sondern vor allem aufgrund der mosaikartigen, roten Fassade ein echter Eyecatcher.
20 km westlich von Sydney fügt sich das neue Gemeinschaftszentrum am Parramatta Square mitten in das Geschäftsviertel der Kleinstadt in das urbane Gefüge ein. Anstatt es behutsam in die Umgebung zu integrieren, setzte das Planerteam auf ein plakatives Design. Das Phive Civic Center verfügt über einen annähernd dreieckigen Querschnitt und streckt sich wie eine gigantische Welle dem Himmel entgegen. Den krönenden Abschluss bildet eine Gebäudehülle in verschiedenen Rottönen.
Zwischen Bürogebäuden und Gewerbeflächen sowie dem Western Sydney University Campus ist das Projekt darauf ausgerichtet, neues Leben in das Viertel zu bringen und als kommunales und kulturelles Zentrum einen neuen Gemeinschaftsort zu schaffen. Wesentlich dazu beitragen soll das offene Erdgeschoss des Hauses, welches in westlicher Richtung direkt an das bestehende Rathaus andockt und mit diesem verbunden ist. Die außergewöhnliche Geometrie des Baukörpers ist nicht nur optisch begründet. Vielmehr antworteten die Architekten dadurch auf diverse Vorgaben: Zum einen ging es darum, den urbanen Kontext optimal miteinzubinden, zum anderen den öffentlichen Platz an der Südseite des Gebäudes nicht zu sehr zu verschatten. Zusätzlich reagiert der Entwurf auf die Nachbarbebauung im Osten und bezieht neben der Sonne auch andere Faktoren wie Wind und Klima sowie Blickbezüge zwischen dem Innen- und dem Stadtraum in die Planung mit ein.
Design mit Mehrwert
Sowohl der Sockelbereich als auch die östliche Front des Phive Civic Center lassen komplett verglast tiefe Ein- und Ausblicke zu. Sie machen Lust auf mehr und laden Passanten nach drinnen ein. Über das transparente Erdgeschoss legt sich die – in zahlreichen Simulationen hinsichtlich diverser Planungsparameter optimierte – Dachfassade. In Abstimmung mit dem Sonnenverlauf steigt diese nach Nordosten hin an und senkt sich zum Parramatta Square ab. Hinter dieser Planungsentscheidung steckt aber noch mehr: Die durchdachte Form des Baukörpers trägt zur passiven Raumkonditionierung bei, indem sie sich den Kamineffekt zu Nutze macht. Dabei wird die warme Luft auf natürliche Weise nach oben gelenkt und die Abluft dort aus dem Gebäude geleitet. Gleichzeitig strömt in den unteren Bereichen durch bewegliche Glaslamellen kühle Frischluft nach. So gelingt es, den Einsatz von Klimaanlagen das ganze Jahr über weitgehend zu vermeiden, die Kosten zu senken und den Bau sogar komplett CO2-neutral zu betreiben. Lediglich zu Spitzenzeiten im Hochsommer und Winter ist eine ergänzende Klimatisierung bzw. Heizung nötig. Auch sonst wurde über den gesamten Entwurfs- und Ausführungsprozess hinweg auf Nachhaltigkeit und Ressourcenschonung geachtet und bestmöglich auf umweltfreundliche Quellen zurückgegriffen.
Gefaltete Gebäudehülle in Rot
Halb Dach, halb Fassade, setzt sich die charakteristische Gebäudehülle des multifunktionalen Bürgerzentrums aus hunderten, gefalteten Metallpaneelen zusammen. Jedes von ihnen ist quadratisch und entlang der Diagonale einmal nach außen, einmal nach innen gefaltet. Im Zwischenraum der Faltungen befindet sich jeweils ein kleines Fenster. So filtern die Elemente das Licht und fungieren als Sonnenschutz, lenken den Blick aber gleichzeitig auch gezielt nach draußen. Inmitten der grün-grauen Ansichten der benachbarten Bauten entschied sich das Planerteam von Manuelle Gautrand Architecture bei der Gestaltung der dreidimensionalen Fassaden- bzw. Dachstruktur für plakatives Rot. Der Farbton ist von der australischen Pflanzenwelt inspiriert und soll das Gemeinschaftszentrum klar hervorheben. Die Färbung der gefalzten Paneele changiert mit zunehmender Höhe von dunkel zu hell und verstärkt so den Eindruck, als wolle sich der Bau bis in den Himmel strecken.
Multifunktionales Raumprogramm
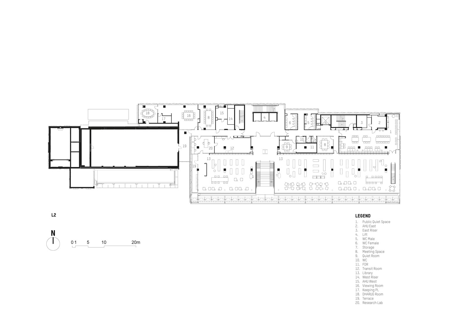
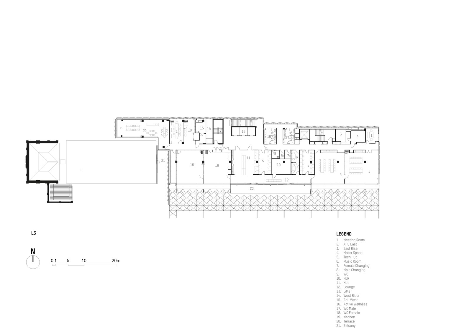
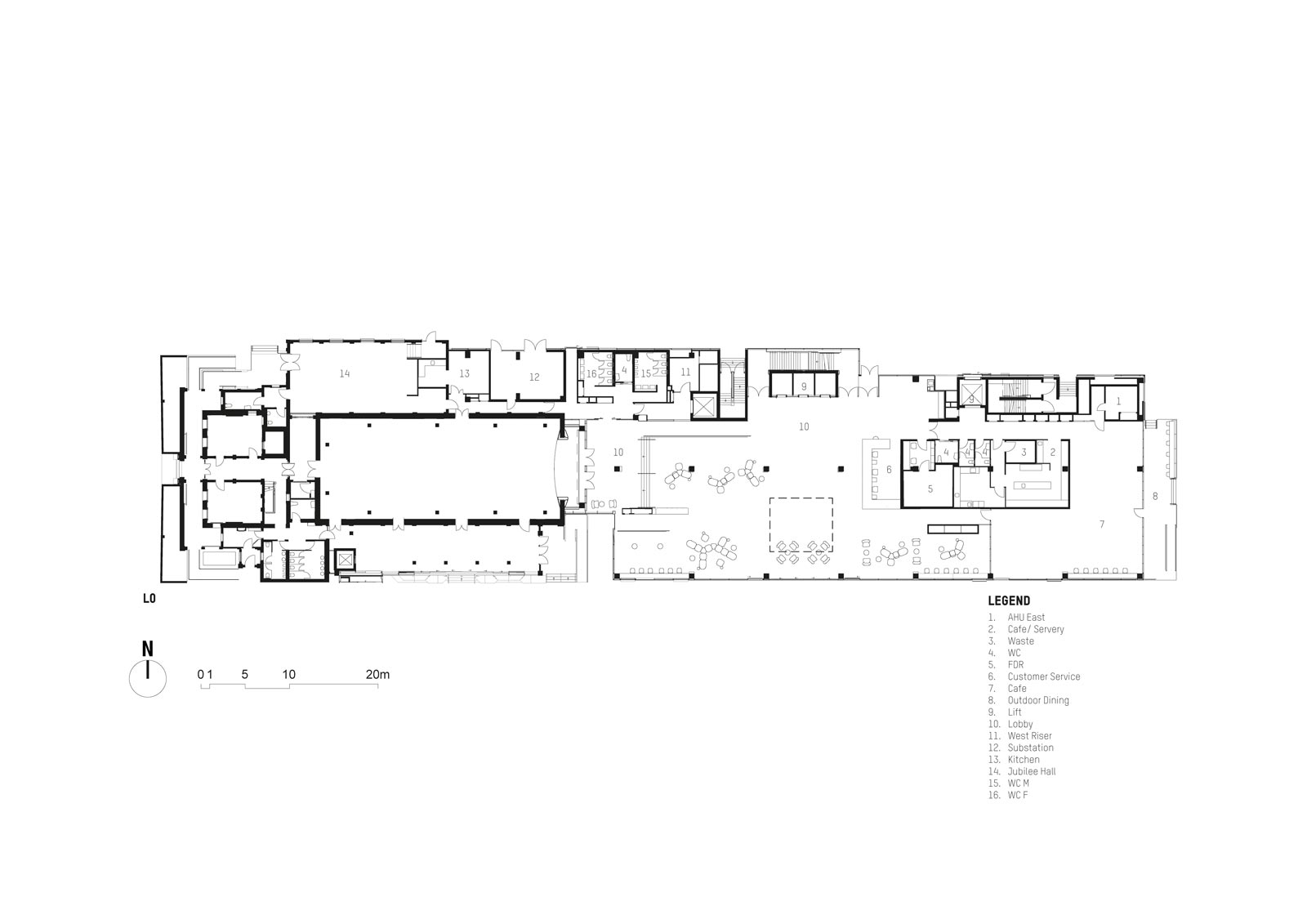
Im Inneren des Phive Civic Center sind die einzelnen Niveaus zum Platz und der vorgelagerten Promenade hin gestaffelt angeordnet. Jede der Ebenen springt etwas weiter zurück, überblickt das darunterliegende Stockwerk und rückt die Verbindung zwischen dem Bau und seiner Umgebung in den Mittelpunkt. Das Erdgeschoss ist als offener Gemeinschaftsort mit einem Café und Veranstaltungsbereichen konzipiert und wird von den Architekten selbst als „urbanes Wohnzimmer“ bezeichnet. Weiter oben werden die Räume zunehmend kleiner und auch die Atmosphäre intimer. Hier befinden sich zunächst die Räumlichkeiten der Stadtverwaltung sowie großzügige Ausstellungsflächen und Besprechungsräume und schließlich die öffentliche Bibliothek – das Herzstück des multifunktionalen Neubaus. Den Abschluss bilden in der letzten Etage die Büros und Sitzungssäle des Stadtrats von Parramatta. Sie öffnen sich zum alten Rathaus hin und kragen über den Bestand aus. Modulare Grundrisse sollen im gesamten Gebäude zukünftig flexible Nutzungsanpassungen möglich machen und das Projekt an der Ostküste Australiens stimmig abrunden.
Phive Civic Center
Parramatta, Greater Sydney
Bauherr: Stadtrat Parramatta
Planung: Manuelle Gautrand Architecture
Projektpartner: Design INC, Lacoste+Stevenson
Gesamtfläche: 15.000 m2
Planungsbeginn: 2016
Baubeginn: 2020
Fertigstellung: 2023
Baukosten:€ 83 Mio.
Text: Edina Obermoser
Fotos: Nils Koening / Sara Vita / Brett Boardman
Kategorie: Projekte
















