Der Hausdrache
Der koreanische Architekt Moon Hoon hat schon öfters mit seinen bunten, schrillen Bauten Aufsehen erregt. Nun erfolgte der nächste Wurf: Im Oktober 2014 wurde ein von ihm entworfenes Gästehaus mit Café und Wohnhaus fertiggestellt. Es liegt auf der Insel Jeju, bekannt als Urlaubsziel, im Süden Koreas und nennt sich ‚Go.Mir‘, wobei Go der Vorname des Auftraggebers und Mir das koreanische Wort für Drache ist.
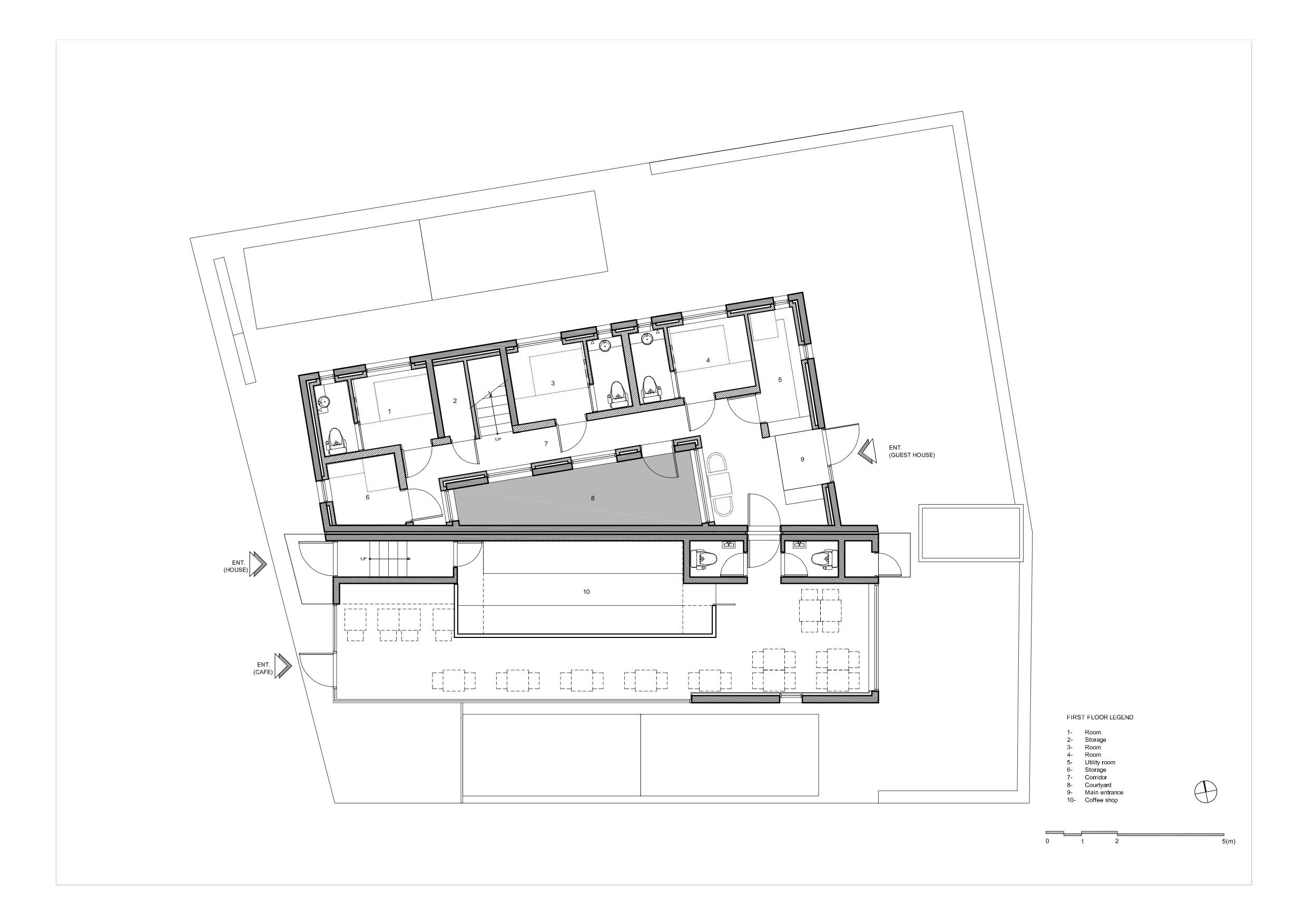
Die Architektur wurde aufgrund des kleinen Budgets mit einfachsten Mitteln errichtet. So ist zum Beispiel die Außenfassade aus Kunstharz mit einem in der Farbe den Basaltformationen der Insel ähnelnden Anstrich. Die Innenbereiche sind entweder weiß gestrichene Ziegelwände oder wiederum Epoxidharz-Oberflächen. Architekt Moon Hoon musste drei Funktionen in dem Gebäude unterbringen. Die bebaubare Fläche war sehr klein, so sind die schräg auskragenden Obergeschosse ein Gewinn an Nutzfläche. Das Volumen ist in der Mitte geteilt, der – von der Straße aus gesehen – linke Teil ist das Gästehaus, im rechten Teil sind im Erdgeschoss das Café und darüber die Privaträume des Besitzers untergebracht.
Caféhausbesucher sowie Hausbewohner betreten das Gebäude von vorne. Ein schmaler Hof mitten im Haus bringt die Möglichkeit der notwendigen Durchlüftung. Gäste betreten das Haus von der Rückseite über einen schmalen Weg, der einen Puffer zur stark befahrenen Straße darstellt. Die kleine Lobby wird durch ein dreigeschossiges Atrium erweitert. Es bringt ein bisschen Luft in die ansonsten sehr engen Verhältnisse. Die kleinen Zimmer im 1. Stock haben eigene Bäder, die Mehrbettzimmer im 2. und 3. Stock gemeinschaftliche Nasszellen.
Die Gemeinschaftsküche und der Frühstücksraum sind zweigeschossig und mit der Bibliothek im 3. Stock optisch verbunden, von hier aus gelangt man auf eine rot angemalte Terrasse am Dach. Die Drachenplattform ragt ein weiteres Geschoss in die Höhe und bietet einen guten Ausblick auf das Meer und die Berge.All das hat Moon Hoon auf einem Grundstück von nur 391 m2 realisiert und dabei bei einer Baufläche von 168 m2 ganze 408 m2 Nutzfläche erzielt. Sowohl innen wie auch außen ist die Architektur von unorthodoxen Formen und Öffnungen sowie mutigen Farbgebungen geprägt. Ein koreanischer Drache eben.
Fotos: Nam Goong Sun
Kategorie: Projekte








