Einfacher geht’s (n)immer
Die Holzbauhistorie von Florian Nagler Architekten in Bad Aibling geht in die nächste Runde: Unweit der drei, 2020 errichteten Forschungshäuser entwickelte das Planerteam in der oberbayerischen Stadt erneut ein Projekt, das ganz im Zeichen des einfachen Bauens steht. Das Ziel? Ein robuster, simpel nutzbarer und zugleich wirtschaftlicher Wohnungsbau. Das Gebäude sollte nicht nur mit reduzierter Haustechnik auskommen, sondern auch möglichst wenig graue Energie verbrauchen und im laufenden Betrieb sparsam sein.
Einfaches Bauen perfektionieren
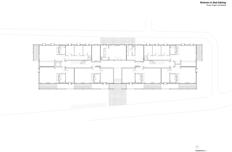
Der Errichtung des jüngsten Wohngebäudes ging – wie auch bei den drei bereits realisierten Forschungshäusern in Bad Aibling – eine intensive Entwicklungsphase an der TU München voran. Für die Umsetzung der ambitionierten Ziele konzentrierten sich der Münchner Architekt Florian Nagler und sein Team auf mehrere Planungsparameter: Sie setzten einmal mehr ausschließlich auf einfache Geometrien, umweltfreundliche Baumaterialien, ausreichend Speichermasse und großzügige Raumhöhen. Das Ergebnis ist ein Mehrparteienhaus, der sich auf das Wesentliche beschränkt und zugleich die Bedürfnisse der Bewohner abdeckt. Entwickelt und gebaut wurde der Wohnungsbau im Auftrag der WOGENO, der Genossenschaft für soziales, ökologisches und selbstverwaltetes Wohnen mit Sitz in München. Der Typus, der aus den wissenschaftlichen Vorarbeiten hervorging, ist ein schlichter, langgezogener Bau. Er verfügt über drei Geschosse und integriert sich mit seinem Satteldach harmonisch in die ländliche Umgebung und die angrenzenden Grün- und Parkflächen im Nordwesten der Stadt in Oberbayern.
Reduziert und flächeneffizient
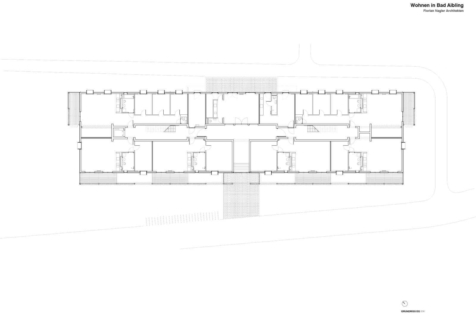
Betreten wird das riegelförmige Wohnhaus über einen gemeinsamen Zugang an der südwestlichen Längsseite. Hinter der Doppelflügeltür führt ein Flur weiter zu einem langen Quergang im Zentrum des Gebäudes. Er endet in je einem Treppenhaus und unterteilt den Bau somit intern in zwei Hälften. Im Anschluss an den Eingang gibt es außerdem einen Gemeinschaftsraum – zusammen lassen sich diese beiden Bereiche als Veranstaltungshalle nutzen. Das gesamte Erdgeschoss wurde leicht angehoben, um auch den Bewohnern in den untersten Einheiten genügend Privatsphäre zu garantieren. Aufgrund des hohen Grundwasserspiegels befinden sich die Abstellräume, die zu jeder Wohnung gehören – ebenso wie die gesamte Haustechnik – nicht in einem Keller, sondern unter dem Dach und sind dank Aufzug barrierefrei für alle erreichbar.
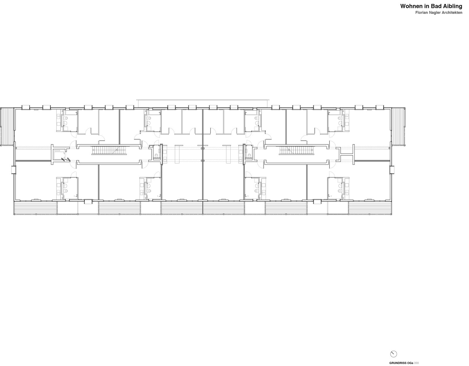
Erstaunlich vielfältige Grundrisse
Sämtliche Etagen des wegweisenden Mehrfamilienhauses in Bad Aibling sind als Regelgeschosse ausgeführt und umfassen je acht Wohnungen. Die insgesamt 23 Einheiten variieren sowohl in ihrer Größe als auch in ihrer Aufteilung und überraschen aufgrund der einfachen Grundstruktur des Hauses mit ihrer Vielfältigkeit. So stehen neben kompakten Studios auch Appartements mit offenem Wohn-Essbereich und drei separaten Zimmern zur Auswahl. Besonderes Augenmerk legte man auch auf private Außenräume und ordnete jeder Wohnung einen eigenen Balkon zu. Die großen Loggien sind dem Haus vorgelagert – zum einen an der Hauptfassade im Südwesten, zum anderen in Form von erkerartigen Anbauten an den beiden Queransichten. Als luftige Freiflächen erweitern sie die Wohnungen nach draußen und fungieren in den warmen Monaten als geschützter Ort zum Essen, Arbeiten und Entspannen an der frischen Luft. Darüber hinaus gelangt durch die Fenstertüren der Balkone reichlich Tageslicht in die dahinterliegenden Wohnräume.
Nachhaltige Ausführung in Holz
Bei der Tragstruktur entschieden sich die Architekten für eine Holzkonstruktion aus regionalen Materialien und damit für einen kostengünstigen Werkstoff mit optimaler CO2-Bilanz. Diese Wahl wurde auch bei der Planung der Grundrisse berücksichtigt: Das Haus basiert auf einem Raster von 3.10 m und schafft so optimale Voraussetzungen für die strukturelle Umsetzung des Holzbaus. Der Nachhaltigkeit und Einfachheit zuliebe kamen einschichtige, großteils vorgefertigte Wand- und Deckenaufbauten zum Einsatz. Auf unnötige Elemente und Zusatzstoffe wurde weitgehend verzichtet. Die tragenden Bauteile – welche die nötige thermische Speichermasse liefern – sind die beiden langgezogenen Erschließungskerne aus Stahlbeton sowie die massiven Außenwände. Bei Letzteren handelt es sich um kreuzverleimte Massivholztafeln. Deren monolithischer Aufbau mit eingeschlossenen Luftkammern wirkt zugleich als Dämmung und ermöglicht einen besonders schlanken Querschnitt. So gelang es, die Wandstärke bei dem Projekt auf schlanke 26 cm zu reduzieren (bei den drei Forschungshäusern waren es 39 cm) und wertvolle Wohnfläche dazuzugewinnen. Auch bei der technischen Ausstattung des Gebäudes folgte das Planerteam dem Motto „weniger ist mehr“. Zu den Essentials gehören z.B. die Installationen für die Sanitärbereiche sowie für die Heizung und das Beleuchtungssystem.
Einfach, aber nicht eintönig
Der Wohnbau ist rundum schlicht – aber keinesfalls langweilig – in Grau gehalten. Dezente Akzente setzten die Architekten in Form von naturbelassenen Holzelementen: Die hellen Laibungen der Fenster unterbrechen die lasierte, vertikale Fichtenholzlattung und verleihen den Fassaden eine lebendige, dreidimensionale Optik. Die Hauptansicht wird von den Konstruktionshölzern und Brüstungen der vorgelagerten Balkone rhythmisiert. Mit ihrer feingliedrigen Struktur prägen die Balken und Latten das Erscheinungsbild des gesamten Hauses und machen die Einteilung der einzelnen Stockwerke von außen klar ersichtlich. Auch der Eingang fügt sich hier unauffällig ein. Im Inneren ist die Materialpalette ebenfalls reduziert gehalten: Während die Gemeinschafts- und Zirkulationsbereiche mit ihren Sichtbetonoberflächen funktional gestaltet sind, bringen Böden, Deckenuntersichten und Fensterrahmen aus Holz Wärme und Gemütlichkeit in die einzelnen Einheiten. Weiß verputzte Wände sorgen für einen modernen Touch und komplettieren das einfache Wohnkonzept in Bad Aibling.
Wohnen in Bad Aibling
Bad Aibling, Bayern
Bauherr: WOGENO
Planung: Florian Nagler Architekten
Statik: merz kley partner
Brandschutzplanung: esg Ingenieure
Holzbau: Hebensteiner Holzbau
TGA-Planung: Duschl Ingenieure
Bauphysik: ig-bauphysik
Grundstücksfläche: 3.930 m2
Bebaute Fläche: 788 m2
Wohnfläche: 1.866 m2
Planungsbeginn: Dez. 2020
Baubeginn: Nov. 2021
Fertigstellung: Juli 2022
Text: Edina Obermoser
Fotos: Pk. Odessa Co / Schels, Lanz
Kategorie: Newsletter, Projekte












