Gesunder Lehr- & Lernort
Mit Borgafjellet realisierte das Büro LINK arkitektur im norwegischen Os die neue Schule der kleinen Gemeinde südlich von Bergen und legte dabei den Fokus auf eine gesunde Lernatmosphäre. Aus Massivholz gebaut, soll der Neubau nicht nur qualitativen Bildungsraum für die rund 420 Schüler sechs verschiedener Schulstufen und deren Lehrer bieten, sondern auch in Sachen Nachhaltigkeit eine Vorreiterrolle einnehmen.
Die beiden Schwerpunkte im Planungsprozess des Schulgebäudes lagen auf der Entwicklung einer Massivholzkonstruktion und eines hybriden Lüftungskonzepts. Einen wesentlichen Faktor stellte dabei die raue Witterung an der Westküste Norwegens dar. Mit durchschnittlich 230 Regentagen galt es neben den Unterrichtflächen im Inneren auch geschützte Bereiche für Aktivitäten im Freien in den Entwurf zu integrieren. Als Antwort auf die klimatischen Bedingungen entschieden sich die Architekten deshalb dafür, sowohl Außen- als auch Innenräume unter einem gemeinsamen Dach zu verpacken.
Das Ergebnis ist ein zweigeschossiger Neubau mit einem rechteckigen Grundriss, der von einer durchgehenden Dachfläche überspannt wird. Leicht alternierend geneigt, kreiert das Dach mit seinem dezenten Auf und Ab im Inneren unterschiedlich hohe Bereiche und strukturiert so die Räume im Obergeschoss. Die Fassaden des Bildungsbaus sind nicht nur umweltfreundlich, sondern auch möglichst wartungsarm gestaltet. Schmale, vertikale Latten aus Kiefernholz kleiden sämtliche Ansichten und rhythmisieren sie zugleich. Mit der Zeit vergraut der Naturwerkstoff und stellt so eine gleichmäßige Alterung des Schulhauses sicher. Die natürliche Außenhülle wird rundum von quadratischen Fenstern durchbrochen. Unterschiedlich groß und in verschiedenen Höhen angeordnet, verleihen sie dem Baukörper einen nahezu verspielten Charakter.
Neben den Fassadenflächen setzte man auch bei der Konstruktion der Borgafjellet-Schule komplett auf Holz. Die Materialwahl soll den CO2-Fußabdruck des Bildungsbaus senken und zudem ganzjährig zur Regulierung der Luftfeuchtigkeit in den Räumen beitragen. Von den Außenwänden und Geschossplatten bis hin zum Dach und den Treppen wurden deshalb alle Bauteile in massivem Brettsperrholz ausgeführt. Selbst nichttragende Zwischenwände verkleidete man mit 19 mm starken CLT-Platten.
Zum nachhaltigen Energiekonzept der Schule gehört ein hybrides Belüftungssystem. Dieses beruht auf mechanischen und natürlichen Maßnahmen und sorgt für ein optimales Raumklima, in dem produktiv gelernt und gelehrt werden kann. Automatisch gesteuerte Fenster garantieren einen konstanten Luftwechsel und eine angenehme Temperatur. Den Platz auf den großen Dachflächen nutzte man für Solarpaneele und senkt so in Kombination mit Geosonden und der effizienten Lüftung den externen Energiebedarf auf ein Minimum.
Rund um die Schule gibt es mit einem Fußball- und einem Sportplatz sowie diversen anderen Spielmöglichkeiten ein breit gefächertes Outdoor-Angebot. Ergänzend laden Bänke und Sitzgruppen bei gutem Wetter zu einer Auszeit an der frischen Luft ein. Die Freiflächen stehen nicht nur den Schülern selbst zur Verfügung, sondern sollen auch die Bewohner der Gemeinde anziehen und so zum sozialen Treffpunkt werden. Um selbst an regnerischen Tagen draußen spielen und sporteln zu können, ist an der südöstlichen Ecke des Baukörpers außerdem eine große Außenhalle untergebracht, die von der mächtigen Dachkonstruktion vor Witterungseinflüssen abgeschirmt wird.
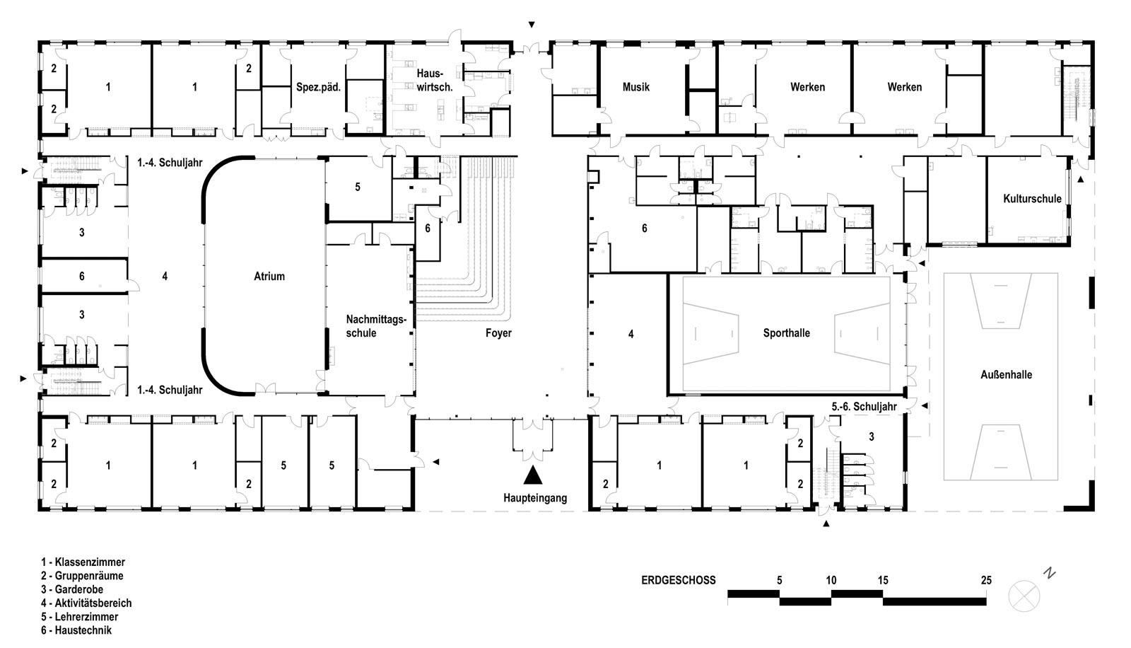
Die Erschließung des Gebäudes erfolgt über einen Vorplatz an der südlichen Längsfassade. Er scheint sich förmlich in die Schule hineinzuschieben und bietet – einmal mehr geschützt vom Dachaufbau – genügend Platz zum Ankommen oder Verabschieden. Im Anschluss an den Haupteingang gelangt man direkt in das zentrale Foyer. Dieses ist dank großer Dachfenster lichtdurchflutet und erstreckt sich über die gesamte Höhe des Gebäudes. Ein Amphitheater-artiger Treppenkörper zoniert das gemeinschaftliche Atrium. Mit seinen stufenweise angelegten Sitzreihen führt der Einbau nicht nur nach oben weiter, sondern fungiert gleichzeitig als Herzstück und kommunikativer Mittelpunkt der Schule. Hier trifft man sich in den Pausen und tauscht sich aus, liest ein Buch oder kommt für Aufführungen und Events zusammen.
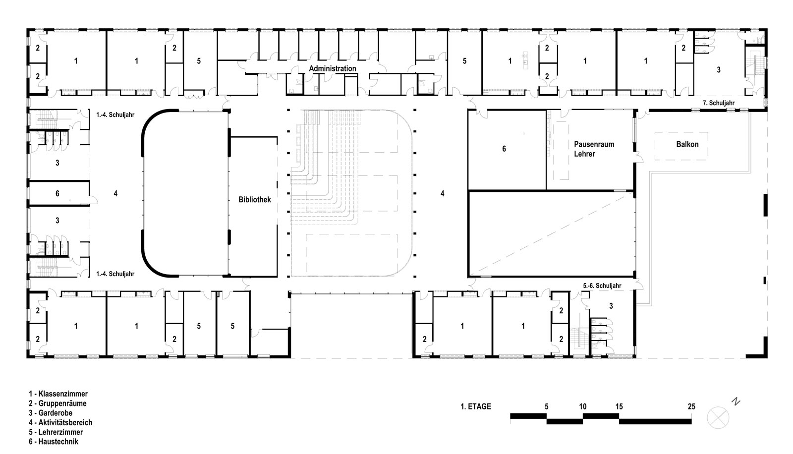
Die Organisation der übrigen Flächen folgt einem einheitlichen Prinzip: Während sich die Gemeinschaftsbereiche im Kern der Schule konzentrieren, sind die Unterrichtsräume entlang der Außenwände angeordnet – im südlichen Gebäudeteil die ersten bis vierten Klassen, in der nördlichen Hälfte die älteren Schüler bis zur siebten Schulstufe. Im Erdgeschoss schließen die Turnhalle und die Räumlichkeiten der Nachmittagsbetreuung an das Atrium an. Darüber hinaus gelangt man über die gemeinschaftlichen Zirkulationsflächen in einen – rundum vom Schulhaus eingefassten – offenen Innenhof. In der ersten Etage befindet sich die Bibliothek. Die frei bespielbaren Aktivitätszonen sind über eine Galerie wiederum mit dem Foyer verbunden. Die Klassen der einzelnen Schulstufen verfügen auf beiden Ebenen jeweils über kleinere Gruppenräume und eine eigene Garderobe. Lehrerzimmer sowie Werk- und Musikbereiche komplettieren das Raumprogramm.
Auch in den Unterrichtsräumen und kollektiven Flächen der Schule achtete das Team von LINK arkitektur besonders auf die Wahl gesunder Materialien und setzte anstelle von chemischen Anstrichen auf mineralische Pigmente. Eine Farbpalette mit natürlichen Erdtönen verleiht den Innenräumen zudem eine angenehme Atmosphäre, in der sich Kinder und Pädagogen gleichermaßen wohlfühlen. Holz spielte ebenfalls eine zentrale Rolle in sämtlichen Bereichen: Mit exponierten Wänden, Trägern und Balken prägt es das Raumgefühl in der Borgafjellet nachhaltig. Dabei wirkt sich der Werkstoff nicht nur positiv auf die Klimabilanz, sondern auch auf Luftqualität, Temperatur und Feuchtigkeit aus und trägt so zu besseren Lernergebnissen der Schüler bei. Obendrein bekommt die kleine norwegische Gemeinde mit der Schule aus Massivholz einen Bau zum Anfassen. Anstatt seine Konstruktion hinter Verkleidungen zu verstecken, lässt das Haus von den Leimbindern der Dachstruktur bis hin zu den rohen CLT-Oberflächen tiefe Einblicke in seine Funktionsweise zu und wird so selbst zum edukativen Anschauungsobjekt.
Borgafjellet Grundschule
Os, Norwegen
Bauherr: Bjørnafjorden Kommune
Planung: LINK arkitektur
Projektleitung: Björn Feltens
Statik: Degree of Freedom
Grundstücksfläche: 26.730 m2
Bebaute Fläche: 3.800 m2
Nutzfläche: 6.425 m2
Planungsbeginn: 03/2017
Baubeginn: 01/2020
Fertigstellung: 08/2021
Baukosten: 23 Mio. € (exkl. MwSt.)
Text: Edina Obermoser
Fotos: Daniel Hundven-Clements
Kategorie: Projekte












