Himmelsfenster
In einem Naherholungsgebiet in der Umgebung von Prag findet sich eine Hütte, die durch ihre ungewöhnliche, asymmetrische Form mit gekapptem Walmdach und zwei großen Dachfenstern überrascht. Architekt Martin Hajný hat die ursprünglich einfache Hütte aus den 1970er-Jahren umfassend renoviert und den Anforderungen der Besitzer entsprechend im Rahmen der engen Bauvorschriften als Low-Tech-Lösung konzipiert. Die Kombination aus Wellblech für Dach und Fassade sorgt gemeinsam mit den hellen, vorwiegend in Kiefernholz gehaltenen Innenräumen für einen angenehmen Kontrast und klassischen Hüttencharme.

So ungewöhnlich die Form und das Äußere der Skylight Hut auf den ersten Blick erscheinen mögen: In der Flusslandschaft Sázava nahe Prag ist kein hochtechnologisches Raumschiff gelandet, sondern vielmehr ein intelligent konzipierter Rückzugsort verwurzelt, der auf den Regeln der Physik und einem durchdachten Konzept basiert. Die vormals einfache einstöckige Hütte mit Keller und niedrigem Dach aus den 1970er-Jahren sollte für ein Ehepaar aus der Stadt zum neuen Zufluchtsort werden – und das nicht nur für das Wochenende, sondern auch, um von dort aus in ruhiger Lage inmitten der Natur und umgeben von einem Garten und alten Bäumen zu arbeiten. Dazu wollten die Bauherren den Raum im Erdgeschoss um ein Schlafzimmer im Dachgeschoss erweitern.

Architekt Martin Hajný, seines Zeichens ein Ein-Mann-Studio, das auf den Grundsätzen der unabhängigen und engen Zusammenarbeit mit externen Spezialisten 2019 gegründet wurde, nahm sich dieser Herausforderung an: Das Gebäude befand sich nicht nur in einem sehr schlechten technischen Zustand, auch der Bebauungsplan sah keinen Neubau sowie eine Höhenbegrenzung von maximal 7,7 Meter über dem umliegenden Gelände vor. Die einzige Lösung bestand daher in einer vollständigen Renovierung, die das Haus vergrößern und den Anforderungen der Behörden und Nachbarn entsprechen würde. Der Entwurf mündete in eine ungewöhnliche Ausformung mit einem asymmetrischen, abgeschnittenen Walmdach.
Praktisch und effizient
Der ursprüngliche Bau wurde in diesem Zuge auf seinen Steinsockel reduziert, der die neue Metallkonstruktion nur scheinbar trägt. Denn dahinter verborgen befindet sich eine Stahlbetonplatte auf Stahlbetonpfeilern, auf welcher die zweiachsige, diffus offene Struktur verankert ist. Im Sinne der Langlebigkeit und um einen größeren Wartungsaufwand zu vermeiden, wurden das Dach und die Fassade mit Trapezblech verkleidet, das in seiner Formensprache Anklänge an eine Lattenfassade wecken soll. Dieses Element findet sich dann auch in der eingeschnittenen Terrasse mit Blick auf die gegenüberliegende Pferdekoppel wieder.
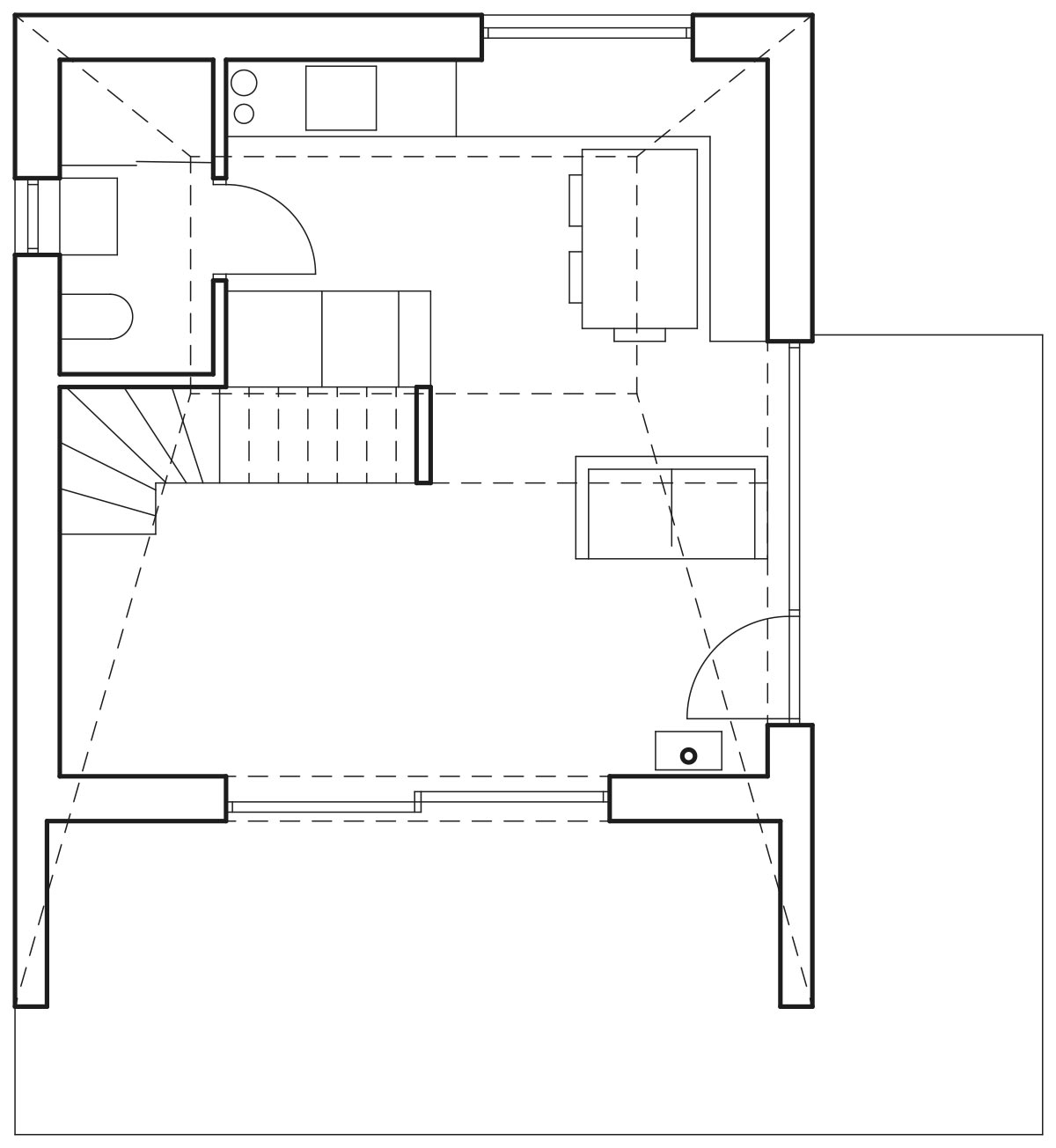
Während sich die Hütte in ihrer dunklen Gestaltung zur Umgebung hin zurücknimmt, wurde das Innere in warmen Nuancen gestaltet, wobei das dominierende Element Holz an eine klassische Hütte erinnert. Die ausgeprägte Maserung der gewählten Kiefernsperrholzplatten zieht sich von den Deckenpaneelen über die Wände bis hin zu allen Möbeln. Das Badezimmer ist mit einem dezenten grauen Putz an Boden und Wänden versehen. Großzügig positionierte Fensteröffnungen lassen den Innenraum hell und luftig erscheinen. Eine Besonderheit stellen dabei die beiden großen Dachfenster – eines direkt über der Schlafkoje und das andere über dem Stauraumbereich – dar. Sie eröffnen nicht nur den ungestörten Blick in den Himmel und einen interessanten meditativen Raum, sondern erfüllen auch ganz praktische Funktionen.
Smartes Lüftungskonzept
Da sich die beiden Oberlichter im Schlafzimmer – per App sowie manuell – öffnen und schließen lassen, ist eine schnelle natürliche Belüftung des gesamten Gebäudes trotz minimaler Technik auch aus der Ferne gewährleistet. Durch den Kamineffekt steigt die verbrauchte Luft dank der hohen Räume und der Sogwirkung der strategisch platzierten Öffnungen gezielt nach oben. Diese optimale Luftzirkulation sorgt in Kombination mit dem erheblichen Dachüberstand des südlichen Teils des Gebäudes das ganze Jahr über für ein angenehmes Raumklima.
Skylight Hut
Flusslandschaft Sázava, Tschechien
Bauherr: privat
Planung: Atelier Hajný – Martin Hajný
Architekt und Partner: Martin Hajný, Markéta Šornová
Statik: Jiří Houra – HSD statika
Grundstücksfläche: 100 m2
Bebaute Fläche: 46 m2
Nutzfläche: 80 m2 (inkl. Keller)
Planungsbeginn: 2020
Bauzeit: 3,5 Jahre
Fertigstellung: 2024
Text: Linda Pezzei
Fotos: Radek Úlehla
Kategorie: Projekte
















