Im Kreis gedacht
The Cradle – der Name lässt schon erahnen, welches Konzept hinter dem Holzhybridbau von HPP Architekten in Düsseldorf steckt. Die Planer realisierten das Bürogebäude im Auftrag der The Cradle GmbH & Co. KG und setzten dabei auf Zirkularität, Nachhaltigkeit und eine parametrische 3D-Fassade. Diese verleiht dem Neubau nicht nur eine markante Optik, sondern bildet auch das Rückgrat des energetischen Systems.

Im Düsseldorfer Medienhafen fügt sich der Bürobau – auf dem einst letzten freien Grundstück direkt am Wasser – in der Speditionstraße in die prominente Nachbarschaft ein. 2017 startete das integrale Team rund um das vor Ort ansässige Architekturbüro die Planung mit dem Ziel, ein nachhaltiges Leuchtturmprojekt auf dem Gelände zu schaffen. Das Ergebnis ist mit The Cradle ein kreislauffähiges Gebäude, welches den gesamten Lebenszyklus berücksichtigt. Es bietet Nutzern und Besuchern mit seiner innovativen und effizienten Gestaltung ein gesundes Raumklima und wirkt zugleich identitätsstiftend. Außerdem soll es in Hinblick auf die Transformation hin zu einer zirkulären Bauwirtschaft mit gutem Bespiel vorangehen und andere inspirieren.

C2C trifft BIM-Planung
Die hybride Konstruktion folgt dem Cradle-to-Cradle-Prinzip (C2C) und beruht gänzlich auf umweltfreundlichen, recyclingfähigen Werkstoffen. Diese wurden vorab sorgfältig in Hinblick auf Materialgesundheit, Schadstofffreiheit und Trennbarkeit geprüft. Alle Elemente sollen den Neubau zu einem zukunftsfähigen Rohstofflager machen und sich im Falle von Nutzungsänderungen wiederverwenden lassen. Einen wichtigen Grundstein für das zirkuläre Design legt der Building Circularity Passport – ein Instrument zur Dokumentation sämtlicher Werkstoffe und Bauteile sowie deren Qualität und ökologische Auswirkungen. Dieser wird durch die Verknüpfung des BIM-Modells mit Madaster ermöglicht. Die Materialien des Bürogebäudes wurden mittels individueller Bauteilnummern in einem Kataster erfasst. Auf diese Weise stehen künftig detaillierte Informationen zur einfachen Demontage, dem sortenreinem Recycling bzw. der erneuten Verwendung der einzelnen Komponenten zur Verfügung.

Recyclingbeton, Holz & Glas
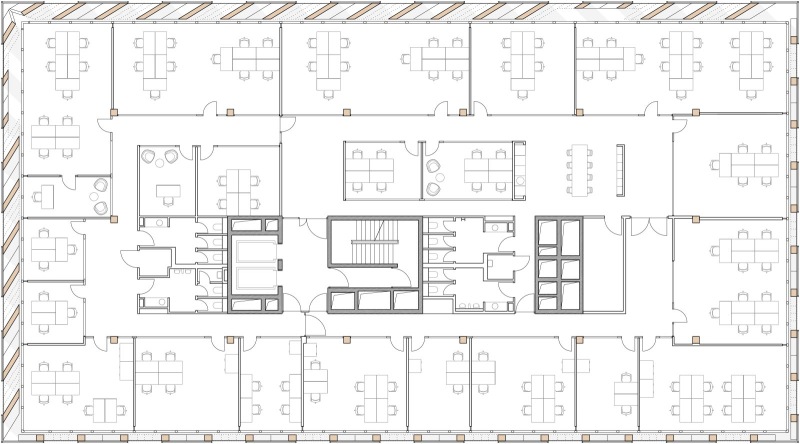
Der rechteckige Neubau aus Beton, Holz und Glas umfasst rund 11.400 m2 Fläche, die sich über sechs Etagen und ein Dachgeschoss verteilen. Während Keller, Erdgeschoss und Erschließungskern von The Cradle in recyceltem Stahlbeton ausgeführt wurden, setzte man bei den fünf darüberliegenden Voll- und dem abschließenden Staffelgeschoss mit Haustechnik und umlaufender Dachterrasse auf eine massive Holzbauweise. Sämtliche Bauteile wurden – dem Kreislaufgedanken entsprechend – ausschließlich reversibel und leimfrei zusammengefügt. Die Verbindungen testete man vorab in 1:1-Modellen. Insgesamt kamen 2.300 m3 des nachwachsenden Rohstoffs aus zertifiziert nachhaltiger europäischer Forstwirtschaft zum Einsatz. Auf diese Weise soll der CO2-Fußabdruck minimiert werden und das Gebäude gleichzeitig als natürliche Kohlenstoffsenke fungieren.
Multifunktionale Fassade
Das Holztragwerk entstand in Kooperation mit den Tragwerksplanern Knippershelbig und Transsolar, den Experten für Energietechnik. Zum Herzstück wird die rautenförmige, multifunktionale Fassade. Diese entwickelte man in Anlehnung an den städtebaulichen Kontext und entschied sich für einen zweischichtigen Aufbau: eine verglaste Ebene und ein außenliegendes Tragwerk. Mächtige V-Stützen aus Lärchenholz verleihen dem Bau sein charakteristisches Aussehen. Sie dienen nicht nur der Lastabtragung, sondern auch als Sonnenschutz und können einfach demontiert werden. In Süd-West-Richtung sind die Streben breiter dimensioniert. Die Brettschichtholz-Struktur spannt hier geräumige Loggien mit Blick aufs Wasser und den Hafen auf und verschattet gleichzeitig die Innenräume. Wo sich keine Balkone befinden, schirmen Prallscheiben das Holz vor der Witterung ab. An den nach Norden und Osten gerichteten Seiten des Gebäudes haben die Stützen filigranere Querschnitte und sorgen so für einen optimalen Tageslichteinfall. Hinter der tragenden Holzkonstruktion bildet eine verglaste Ebene den thermischen Abschluss. Mit öffenbaren Fensterelementen komplettiert sie die innovative Gebäudehülle und unterstützt die natürliche Belüftung des Bürobaus. Ein Spalt zwischen Prallscheiben und V-Stützen stellt auch in den geschlossenen Bereichen einen kontinuierlichen Luftstrom sicher. Im Erdgeschoss führen Betonstützen das prägnante Fassadenbild der darüberliegenden Ansichten stimmig fort.

Ganzheitlich kreislauffähiger Ansatz
Das Innere von The Cradle wird ebenfalls von den nachhaltigen C2C-Materialien und den V-förmigen Stützen der Fassaden geprägt. Aufgrund der außenliegenden, tragenden Bauteile ließen sich die Grundrisse offen und stützenfrei umsetzen. Sie ermöglichen eine flexible Nutzung durch die vielfältigen Mieter: Zum einen zog ein Co-Working-Anbieter in das Haus ein, zum anderen ein Restaurant mit Außenterrasse, wodurch die Interaktion mit dem umliegenden Quartier gestärkt wird. Neben der zirkulären Materialwahl komplettieren die natürliche Be- und Entlüftung, Photovoltaikmodule auf dem Dach sowie Park- und Ladeplätze für E-Autos bzw. -Fahrräder in der Tiefgarage das nachhaltige Konzept des Holz-Beton-Gebäudes.

Bewertet wurde die Nachhaltigkeit des Gebäudes von der EPEA GmbH – Part of Drees & Sommer. Mithilfe des Building Circularity Passport analysierte man dafür unter anderem den gesamten Lebenszyklus, die Kreislauffähigkeit und die Umweltauswirkungen des Neubaus. Das Ergebnis zeigt: The Cradle weist im Vergleich zu herkömmlichen Bürobauten eine um 56 % höhere Materialgesundheit auf und verbessert dank reduzierter Emissionen die CO2-Bilanz um 50 %.
The Cradle
Medienhafen, Düsseldorf
Bauherr: Interboden Gruppe
Planung: HPP Architekten
Statik/Fassade: Knippers Helbig
Energieplanung: Transsolar
TGA-Planung: Bähr Engineering
C2C-Beratung: EPEA – Part of Drees & Sommer
Brandschutz: nees Ingenieure
Bauphysik: Drees & Sommer Advanced Building Technologies
Grundstücksfläche: 1.200 m²
Bruttogeschossfläche: 11.400 m²
Nutzfläche (HNF): 8.200 m²
Planungsbeginn: 2017
Baubeginn: 2019
Fertigstellung: Dez. 2023
Text: Edina Obermoser
Fotos: Ralph Richter
Kategorie: Projekte








