Intelligenter Drachenpanzer
ATP Architekten realisierten mit ALEJA das modernste Shoppingcenter Sloweniens. Besonderer Fokus des Projekts liegt auf den Themen Nachhaltigkeit und Energieeffizienz. Das Ergebnis ist ein intelligenter Bau, der bereits von außen sämtliche Blicke auf sich zieht. Seine geschuppte Haut ist Teil des umfassenden Energiekonzepts, welches nicht nur das Raumklima reguliert, sondern auch einen Hingucker bildet.
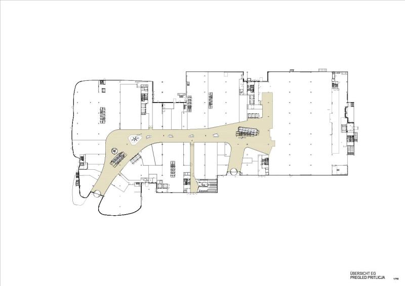
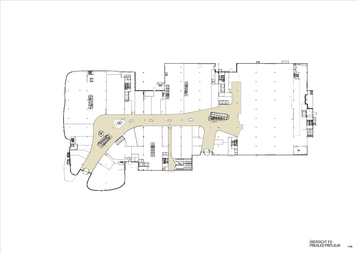
ALEJA fügt sich in Šiška, einem der am dichtest besiedelten Stadtteile Ljubljanas im Nordwesten der slowenischen Hauptstadt, in die Bebauungsstruktur ein. Auf zwei unterirdische und drei oberirdische Geschosse verteilt, entstehen in der Mall 108.098 m2 Geschäftsfläche. Den krönenden Abschluss stellt das Activity Roof mit vielfältigen Sport- und Freizeitmöglichkeiten sowie ALEJA Sky, ein Food Court mit anschließenden Außenterrassen, dar.
Das Herzstück der energetischen Planung des Einkaufszentrums ist die auffällige, bunte Vorhangfassade. Sie legt sich wie ein Drachenpanzer über den Baukörper und soll damit Assoziationen zum Wappentier von Ljubljana hervorrufen. Die Hülle setzt sich aus unzähligen rautenförmigen Elementen zusammen, die sich wie Schuppen aneinanderreihen. Je nach Ausrichtung und Funktion im Inneren sind sie als blickdichte Edelstahlschindel oder transparente Glasflächen ausgeführt. Die Paneele sind unterschiedlich gefärbt und geprägt und verleihen der Mall mit ihrer geschwungenen Gestaltung einen dynamischen Charakter. Abhängig von der Witterung und dem Blickwinkel scheint der Bau sein Äußeres immer wieder zu verändern. Während sich bei Tag die Umgebung und vorbeiziehende Wolken in der Fassade spiegeln, sind die Ansichten bei Dunkelheit lediglich sanft mit LEDs beleuchtet. Damit reagieren die Architekten auf ein zunehmendes Problem vieler Städte – der Lichtverschmutzung – und versuchen, den Anteil von ALEJA auf ein Minimum zu reduzieren.
Um den hohen Ansprüchen an die technische Gebäudeausstattung gerecht zu werden, war besonders bei der Umsetzung der charakteristischen Dach- und Fassadenflächen, die Großteils verglast sind, einiges an Optimierung notwendig. Hier setzten die Architekten und Ingenieure auf eine BIM-Methode. Mit deren Hilfe konnte die Shoppingmall modellbasiert und integral umgesetzt werden. Auch die Zusammenarbeit zwischen den externen Partnern und dem Generalunternehmer ATP wurde dadurch extrem erleichtert. Die einzelnen Planungsschritte bis hin zur Montage der Fassade konnten losgelöst voneinander ausgefertigt und schließlich in das gemeinsame Gesamtmodell zurück übertragen werden.
„Handelszentren haben nur dann eine Zukunft, wenn sie Teil der Stadt werden. Mit ALEJA gelingt es uns, hocheffiziente Handelsarchitektur mit den Schönheiten der Stadt zu verweben und im Quartiersgedanken zu einem multifunktionalen Treffpunkt mit größtem Erlebniswert sowie hoher Aufenthaltsqualität zu verschmelzen.“
Philipp Pfister, Head Architect und Gesamtprojektleiter von ATP
Die ausgewählten Sonnenschutzgläser der schuppenartigen Hülle sind wechselweise offen, halboffen oder geschlossen angeordnet. Dadurch wird übermäßige Wärmetransmission ins Innere der Mall verhindert und gleichzeitig dafür gesorgt, dass nicht zu viel Energie nach außen verloren geht. Heiz- und Kühllasten werden so möglichst gering gehalten. Die Gebäudelüftung besteht aus 29 Lüftungsanlagen, die die Frischluft-, Heiz- und Kühlversorgung des Einkaufszentrums regeln. Um stets eine ausreichende Luftmenge und beste Versorgung zu garantieren, überwacht eine Videoanlage die Auslastung der Mall anhand einer Bewegungsanalyse und passt den Energieaufwand entsprechend der Besucherfrequenz automatisch an. Innerhalb der Shops kann die Belüftung zusätzlich individuell geregelt und damit an die persönlichen Bedürfnisse angepasst werden.
Auch die Gestaltung des Activity Roofs ist Teil des Energiekonzepts. Die Begrünung des Dachs soll die verbaute Fläche kompensieren und der Stadt ein wenig Natur zurückgeben. Ein System zur Regenwassernutzung hält den Wasserverbrauch möglichst gering. Es speist die Bewässerung der Pflanzen und trägt auch zur zusätzlichen Kühlung des Retailcenters bei. Mit seinem vielseitigen Angebot lädt das Dach nicht nur zum Dinieren mit Blick über Ljubljana ein, sondern bietet mit Kinderspiel- und Sportplatz sowie Fitness- und Parcours-Areal unterschiedliche Möglichkeiten zur körperlichen Ertüchtigung. Ein Pumptrack vor der Mall komplettiert die Optionen der Freizeitgestaltung.
Im Eingangsbereich öffnet sich die Glashaut in Form einer einladenden Geste und soll laut den Architekten an ein Drachenmaul erinnern. Das Innere des Shoppingcenters ist ebenfalls geprägt von der intelligenten Fassade. Sie sorgt mit ihren wechselnden Feldern nicht nur für die nötige Privatsphäre in den rund 80 Shops, Bars und Restaurants, sondern ergibt – in Kombination mit Sonneneinstrahlung oder vorbeiziehenden Wolken – außerdem spannende Licht-Schatten-Spiele. Zentrale Atrien lockern ALEJA an mehreren Stellen auf. Sie werden von Rolltreppen und umlaufenden Galerien strukturiert. Durch sogenannte Lichtinseln fällt das Tageslicht hier durch die Fassade bis ganz nach unten. Die Innenräume wirken hell und freundlich. Sie sind mit schlichten Materialien ausgestattet und ergeben – in Wechselwirkung mit dem fließenden Design, das sich auch hier fortsetzt – eine angenehme Atmosphäre. Hochwertiger Naturstein, Holzakzente und weiße Oberflächen erwecken einen edlen Eindruck. Zwischen grüner Bepflanzung, Wasser- und Brunnenanlagen werden die Besucher von großzügigen Sitzgelegenheiten und Ruhebereichen immer wieder zum Entspannen eingeladen.
Ihre Prämisse, dass ein gelungenes Handelszentrum zum integrierten Teil der Stadt werden muss, setzen die Planer perfekt in die Praxis um. Sie machen ALEJA zu einem dynamischen Ort der Begegnung. Es bietet dank seiner integralen Konzeption alle Voraussetzungen für entspanntes Einkaufen mit Mehrwert. Das Erlebnisdach und die umfassenden Freizeitangebote werten nicht nur das Shoppingcenter selbst, sondern das gesamte Stadtviertel auf und bildet einen neuen Treffpunkt für die Bewohner. Neben der intelligenten, drachenpanzerartigen Fassade zeigen ATP Architekten vor allem durch die erzielten Energieeinsparungen, wie clevere Planung und effizientes Bauen aussehen kann.
Shoppingcenter ALEJA
Ljubljana, Slowenien
Bauherr: SES Spar European Shopping Centers GmbH
Integrale Planung: ATP Innsbruck, D&R Innsbruck, Mint Architecture, ATP sustain
Mitarbeiter: Gesamtprojektleiter: Andrei Florian (bis 2018), Philipp Pfister
Statik: ATP Innsbruck, Elea iC TWP-Subleistungen
Licht: Bartenbach GmbH
Landschaftsgestaltung: Berchtold land.plan
Fassadenplaner: FCG Fassaden Consulting-Group AG; Ruggell
Brunnenplanung: Meiwa GmbH
Gebäudesimulation: IC consulenten Wien
Bauphysik: Kopitsis Bauphysik
Grundstücksfläche: 39.968 m2
Bebaute Fläche: 18.646 m2
Nutzfläche: 102.785 m2
Bauzeit: 09/2017-03/2020
Text: Edina Obermoser
Fotos: ATP/Pierer, Jost Gantar/VELIKA
Kategorie: Projekte, RETAILarchitektur













