Monolithische Ruhe im Bayerischen Wald
Ein Haus aus einem Guss: Mit dem „House with Two Courtyards“ verdichtet BÜRO MÜHLBAUER die regionale Bautradition des monolithischen Bauens zu einer radikal reduzierten Formensprache. Beton, Holz und zwei Gärten strukturieren Räume und Atmosphären und beeinflussen gezielt die Wahrnehmung von Oberflächen.
Am Rande der Kurstadt Bad Kötzting im Bayerischen Wald hat das Ingolstädter Büro Mühlbauer ein Haus realisiert, das kaum etwas mit dem touristisch geprägten Bild des Ortes zu tun hat. Bad Kötzting gilt als das jüngste Kneippheilbad Bayerns und verbindet heute traditionelle Heilmethoden mit moderner Medizin. Zwischen Gesundheitstourismus, Kurpark und Spielbank trifft hier Ursprünglichkeit auf Stadtleben.
Vor diesem Hintergrund wirkt das „House with Two Courtyards” wie ein Gegenentwurf: Es ist radikal reduziert, konsequent monolithisch und hat keine äußeren Anknüpfungspunkte. Das Gebäude verschließt sich nach außen, öffnet sich im Inneren jedoch durch zwei Höfe, die Licht, Natur und Atmosphäre ins Haus holen. Während der Kurort auf sichtbare Erholung setzt, hat Alexander Mühlbauer ein introvertiertes Refugium entworfen, das seine Kraft aus Material und Oberfläche schöpft und so eine stille Form der Regeneration in Architektur übersetzt.
Monolithische Reduktion
Das Gebäude wurde in Ortbeton gegossen, handwerklich geschalt und anschließend unbehandelt belassen. Jede Schaltafel hinterließ dabei ihre individuellen Spuren. Licht und Schatten modellieren die Oberflächen im Tagesverlauf, während Patina und Witterung das Material und seinen Ausdruck mit der Zeit verändern. Diese radikale Monolithik knüpft an historische Bautraditionen an, ohne diese zu imitieren. Beton bleibt der alleinige Baustoff und wird lediglich durch unbehandeltes Lärchenholz aus der Umgebung ergänzt. Beide Materialien dürfen und sollen sichtbar altern und so die Haltung der „Materialehrlichkeit“ und des „Minimum Intervention, Maximum Effect“ verkörpern, wie die Architekten sagen.
Inszenierte Landschaftsbilder
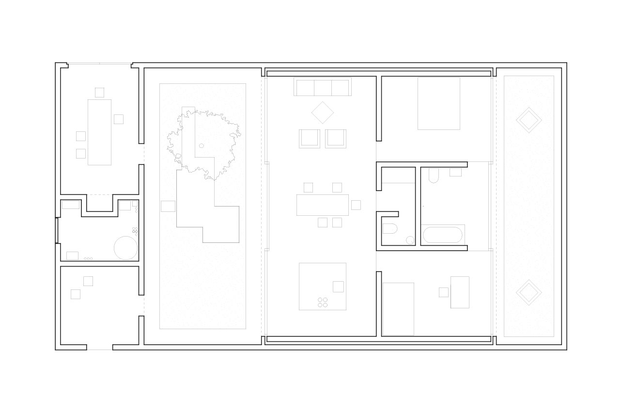
Die beiden Gärten – ein Moosgarten und ein Nachtgarten – sind mehr als nur Freiräume. Sie fungieren als „inszenierte Landschaftsbilder“ und eröffnen eine stille Dimension, in der Natur, Architektur und Zeit miteinander verschmelzen. Sie prägen aber auch Klima, Akustik und Atmosphäre, speichern Wärme, kanalisieren Wind und rhythmisieren den Alltag.
Nachhaltigkeit zeigt sich hier nicht in applizierten Technologien, sondern in der Materiallogik: Sortenreiner Stahlbeton, Kerndämmung und eine trennbare Schichtung eröffnen Potenziale für die Wiederverwendung beim Rückbau. Zugleich sichern die thermischen Eigenschaften Langlebigkeit und energetische Effizienz.
Im Kontext von Material und Oberfläche steht das „House with Two Courtyards” für eine radikale Reduktion auf das Wesentliche. Beton als bestimmender Faktor prägt Raum und Wahrnehmung; die Oberfläche wird zur Chronik von Licht, Nutzung und Zeit. Was bleibt, ist ein Haus, das mit seiner spröden Schönheit einen Resonanzraum für Natur und Mensch eröffnet und somit eine leise, aber präzise Antwort auf die Frage nach einem zeitgemäßen Materialverständnis gibt.
5 Fragen an Alexander Mühlbauer
Wie prägt die monolithische Verwendung von Beton Atmosphäre und Oberflächenwahrnehmung?
Unser Gebäude folgt einem klaren Code: Beton. Das rein handwerklich geschalte und unbehandelte Material bestimmt die Charakteristik von Raum und Oberfläche. Die Schaltafeln formen das Zusammenspiel von Licht und Schatten an Decken und Wänden, wobei Bewohner und Witterung im Laufe der Zeit innen wie außen ihre Spuren und Patina hinterlassen.
Wie vermittelt das Materialkonzept den Dialog zwischen historischer und zeitgenössischer Bauweise?
Das „House with two courtyards” setzt die regionale Bau-Tradition des monolithischen Bauens fort. Beton bleibt alleiniger Baustoff, die Übergänge von innen nach außen ergänzt unbehandeltes Lärchenholz aus der Umgebung – beide Materialien altern wie die historischen Bauten und verkörpern „Materialehrlichkeit” und „Minimum Intervention, Maximum Effect” in jedem Detail.
Welche Rolle spielen die Innenhöfe für Materialität und Raumerlebnis?
Die beiden Höfe organisieren das Haus, stiften Intimität und holen Licht, Jahreszeiten und den natürlichen Kreislauf ins Innere. Umgeben von Mauern entstehen sonnige wie schattige Plätze; nachts geben die Betonwände gespeicherte Wärme ab und Wind belebt die Pflanzen – so beeinflussen sie Klima, Akustik, Offenheit und Privatheit.
Welche Nachhaltigkeitsaspekte ergeben sich aus Materialwahl und Bearbeitung?
Sortenreiner Stahlbeton und Kerndämmung erlauben eine klare, trennbare Materialschichtung mit Wiederverwendungspotenzial im Rückbau. Die lange Lebensdauer und thermischen Eigenschaften des Gebäudes sichern Ressourcen, erhalten Substanz und verbessern die energetische Wirkung nachhaltig.
Wie werden die Gärten als integrale Bestandteile gestaltet und inszeniert?
Die Gärten sind inszenierte Landschaftsbilder, verbinden das Haus mit Tages- und Jahreszeiten und öffnen einen Resonanzraum für Natur und Architektur. Reduzierte Materialien wie Moos- und Nachtgarten markieren den Rhythmus von Licht, Wind und Pflanzenwandel – als optische und temporale Geräte, die die Gesamtkomposition um eine stille, wesentliche Dimension erweitern.
House with two courtyards
Bad Kötzting, Deutschland
Bauherr: privat
Planung: BÜRO MÜHLBAUER
Team: Alexander Mühlbauer, Andreas Mühlbauer, Andreas Josef Mühlbauer, Lukas Westner
Landschaftsarchitektur: Prof. Maurus Schifferli
Grundstücksfläche: 472 m²
Bebaute Fläche: 136 m²
Nutzfläche: 112 m²
Planungsbeginn: 2018
Bauzeit: 2021 – 2025
Fertigstellung: 2025
Baukosten: 343.000 EUR
Kategorie: Projekte












