Waldspaziergang
Das SCION Timber Research Institute, das in Kollaboration von RTA Studio und Irving Smith Architects entstanden ist, lädt seine Besucher zu „einem Spaziergang durch den Wald“ ein, bei dem sich neue und nachhaltige Wege der Beschaffung und des Bauens mit Holz kennenlernen lassen. Die Struktur des Diagrid zeigt dabei deutlich, dass Holzbauten nicht wie Stahl- und Betonbauten konstruiert werden müssen, sondern eher wie Bäume wirken können, deren Festigkeit der kontinuierlichen Maserung des Holzes folgt.
„Te Whare Nui o Tuteata“ – so lautet der maorische Name des hochmodernen Vorzeigeprojekts für Holzwerkstoffe, SCION Timber Innovation Hub, von RTA Studio und Irving Smith Architects in Rotorua in Neuseeland. Das Projekt entstand in enger Zusammenarbeit mit den Māori-Stammesgruppen der Iwi und war letztlich ein Geschenk der Ngā Hapū e Toru, die die Interessen der Mana Whenua, also der indigenen Bevölkerung Aucklands, vertreten und deren historischen und territorialen Rechte über das Land in Tāmaki Makaurau verwalten.
Der Wald und die Natur haben für die Ureinwohner Neuseelands bis heute eine große wirtschaftliche und spirituelle Bedeutung. Die Neugestaltung des Hauptsitzes von SCION, einem Crown Research Institute, das sich auf die Entwicklung von Technologien für die Forstindustrie spezialisiert hat, darf also durchaus auch symbolisch verstanden werden. Der maorische Name des direkt am Rande des Redwood-Waldes im Whakarewarewa Forest Park gelegenen Solitärs würdigt den Unterstamm des Urahnen Tuteata, von dem die Ngā Hapū e Toru abstammen. Die Maori-Muster, die die Überdachung des Eingangs und verschiedene Glaselemente im Gebäude zieren, stammen – dem Respekt zollend – aus der Feder des ortsansässigen Designers Grant Marunui.
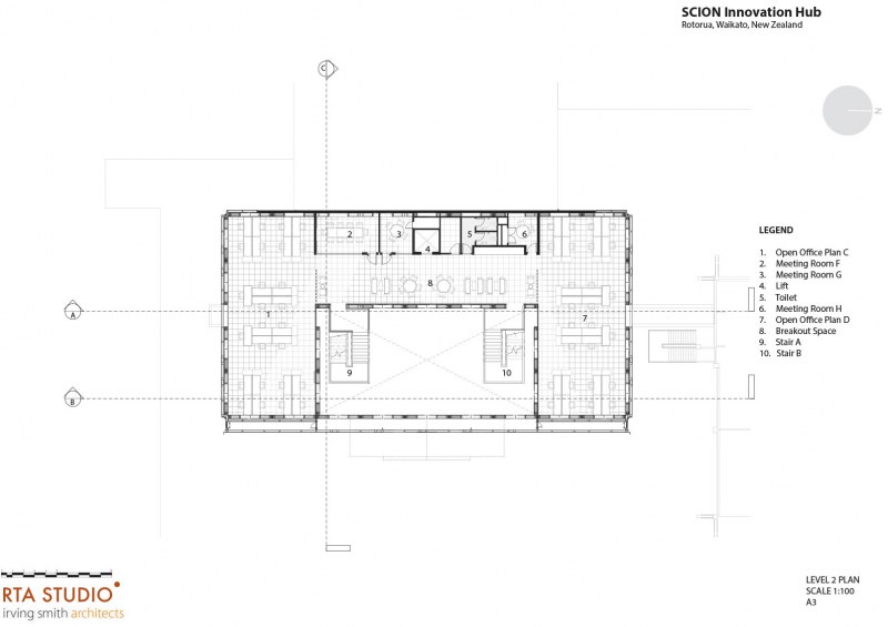
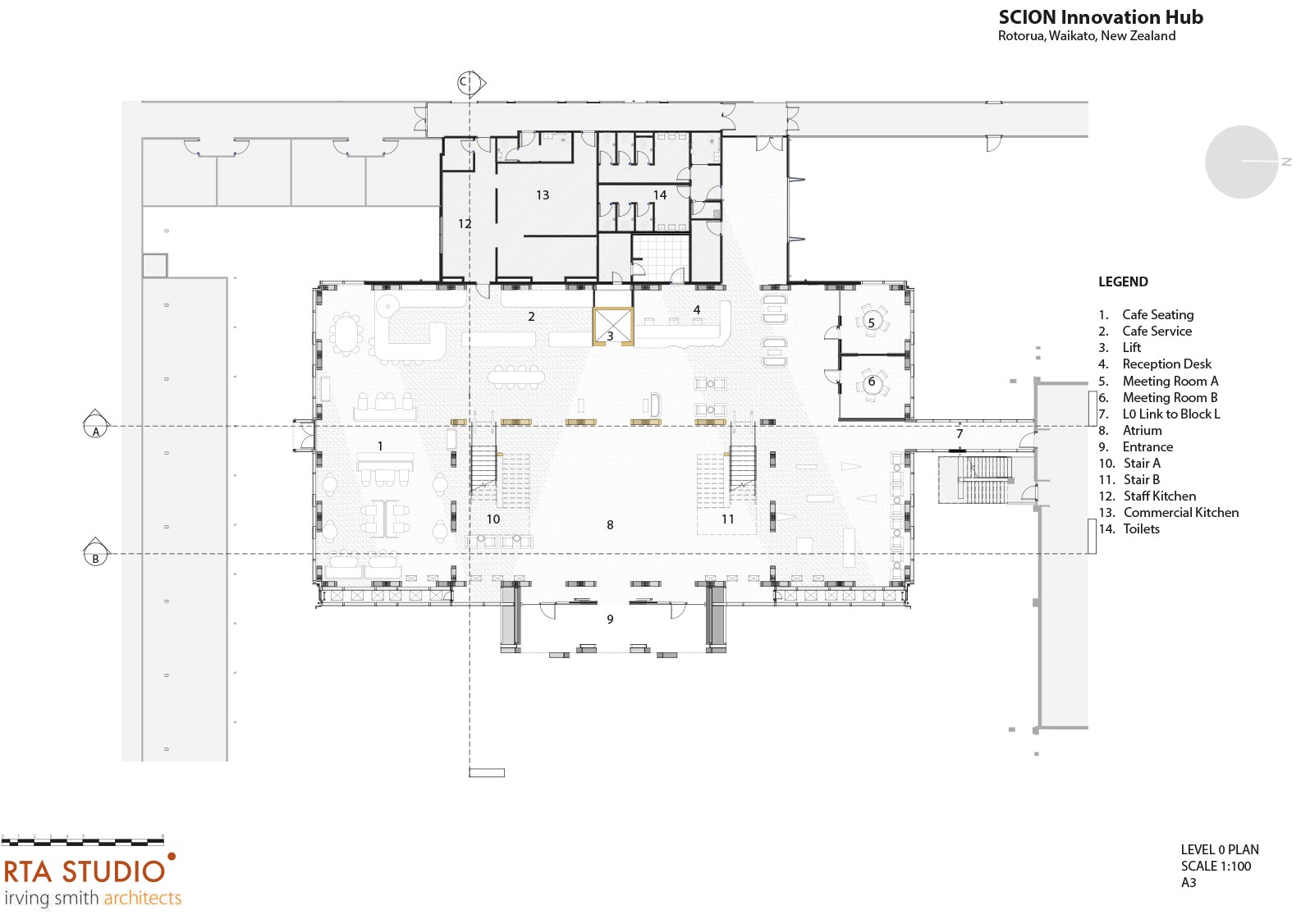
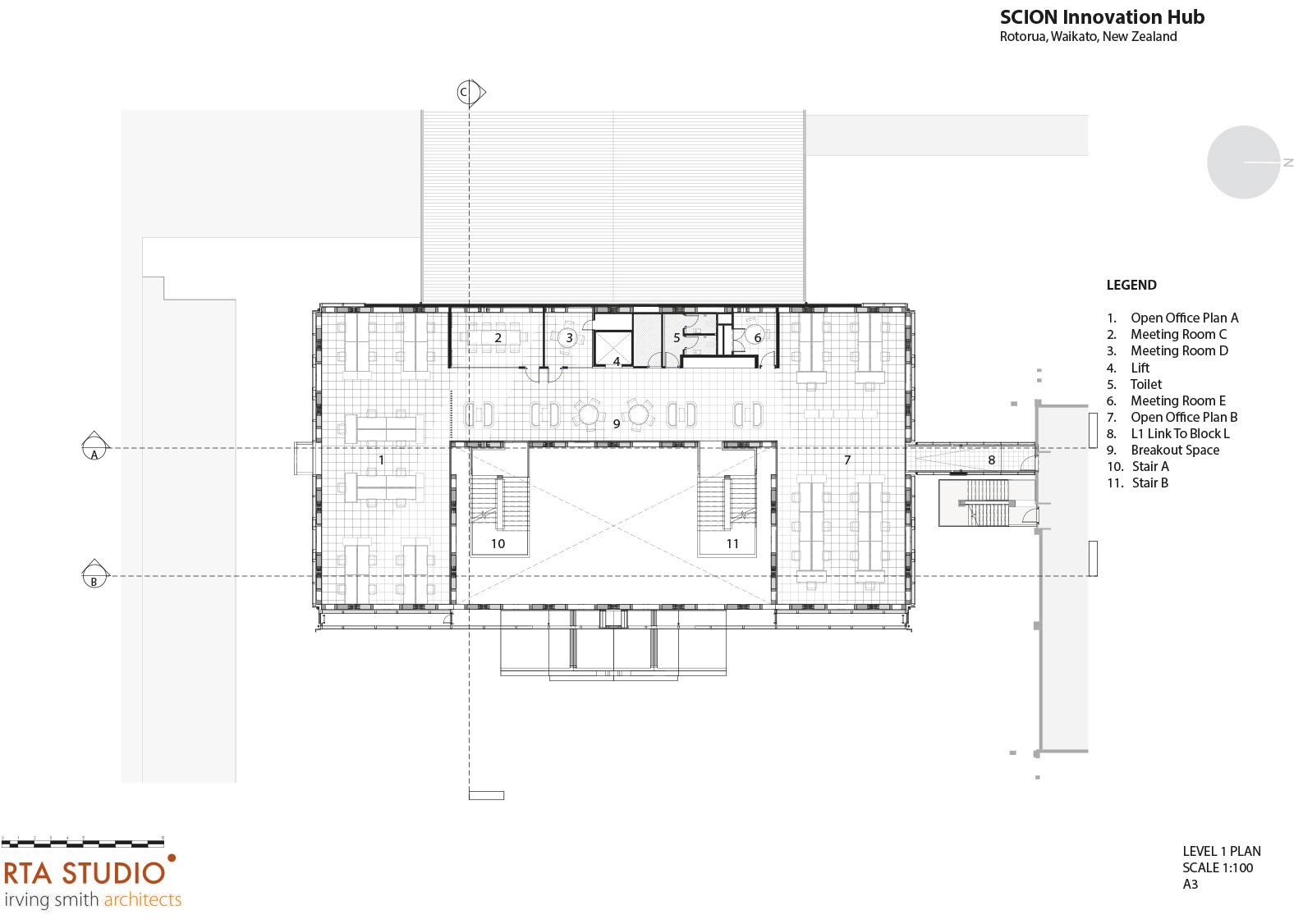
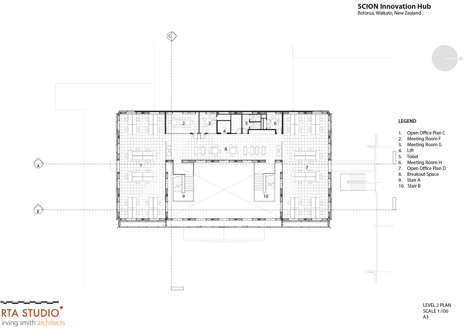
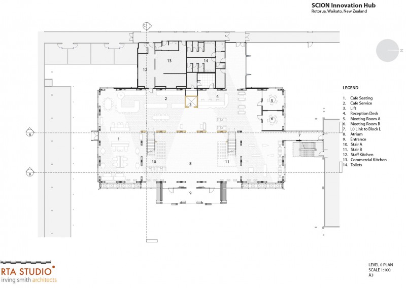
Bei ihrer Ankunft werden die Besucher von einem Dreigestirn an „Gipfeln“ empfangen, welche die drei Hapū der Region symbolisieren. An das Portal schließt ein dreifach überhöhter Atriumraum mit sichtbarem Tragwerksskelett aus hochleistungsfähigem Furnierschichtholz an, der eine Ausstellung über die Holzfasertechnologie sowie ein öffentliches Café und den organisch geformten Empfangstresen aus CNC-gefrästes Kiefer-Sperrholzplatten beherbergt. Daran angeschlossen befindet sich auf drei Ebenen ein zentrales Innovationszentrum mit Großraumbüros und Besprechungsräumen für die Mitarbeiter, die zuvor in kleineren, über den Campus verteilten Gebäuden untergebracht waren. Das Ensemble umfasst auch wissenschaftliche Labors, Werkstätten und einen Kindergarten.
Das gesamte Gebäude wurde nicht nur technisch ausgeklügelt, sondern vor allem ästhetisch spirituell gedacht, wobei die Details an keiner Stelle dominieren, sondern sich zu einem großen Ganzen fügen. Das Briefing des Bauherren: die Einbindung in den Wald, die Würdigung der kulturellen Bedeutung der Region und das Anliegen, die Öffentlichkeit für die Thematik zu begeistern und die Besucher zu sensibilisieren, Holz nachhaltig und im Einklang mit der Natur zu nutzen. „Te Whare Nui o Tuteata“ darf als Einladung verstanden werden, gemeinsam „durch den Wald“ zu spazieren. Wer sich auf diese Gedankenreise einlässt, der erblickt hoch oben im „Blätterdach“ eine speziell angefertigte Holzdecke, die von der Struktur des Genoms einer Radiata-Kiefer inspiriert ist und deren Beleuchtung den Nachthimmel von Matariki widerspiegelt. Holzlatten und Sperrholzplatten interpretieren in dezenten Farbtönen den Strichcode der Pflanzen-DNA.
Nachhaltigkeit bedeutet nicht mehr, sondern weniger
Da die Holzforschung im Timber Innovation Hub sichtbar stattfindet, spielen Material und Konstruktion auch im Gebäude selbst eine tragende Rolle: In den oberen Stockwerken und innerhalb einer dreigeschossigen Holzbau-Diagridstruktur werden die Stereotypen über Holzbauten in Frage gestellt. Ob Holz-, Stahl- oder Betonbauweise: Ein Diagrid löst Flächen auf und stellt eine besonders materialsparende Bauweise dar. Dieses Beispiel zeigt, dass Holz sich nicht an anderen Baumaterialien orientieren muss, sondern entsprechend seines Ursprungs eher baumhaft wirken kann. Ein innovativer Holzbauknoten trägt die Lasten ab und hält zudem eine seismische Sicherung, die infolge eines Erdbebens nachgibt und ersetzt werden kann. Durch dieses einfache Umdenken ließen sich die Strukturgrößen um etwa drei Viertel verringern. In Kombination mit dem negativen CO2-Wert des verbauten Holzes ergibt sich eine äußerst positive Bewertung des CO2-Fußabdrucks des Gebäudes.
Holz lässt sich an vielen Stellen des Forschungszentrums in verschiedenen Formen finden: als leichtes CLT- und LVL-Verbundbodensystem, als auskragende CLT-Treppenelemente, als Overlay-Akustikböden sowie als doppellagige CLT-Akustik-Trennwände. Dabei stets sichtbar und haptisch ausgeführt – eine regelrechte Einladung, mit dem Bauwerk physisch in Kontakt zu treten. Der natürliche Aspekt des Materials sorgt zudem für eine warme und einladende Atmosphäre, der praktische Nutzen liegt in einer hohen Flexibilität. Der enorme Vorfertigungsgrad sowie die Standardisierung der einzelnen Holzkomponenten bedeutete den Schlüssel zur Realisierung dieses Projekts, da die Montage vor Ort auf diese Weise erheblich erleichtert werden konnte. Das Innovationszentrum ist aber auch Zeichen von mehr als zehn Jahren Fortschritt und Raffinesse betreffend der Art und Weise, wie Holzbauwerke nicht nur zusammengesetzt, sondern auch konzipiert werden können. Im Sinne einer nachhaltig gestalteten gebauten Umwelt.
Die durchdachte Verwendung von Materialien gepaart mit einer intelligenten Haustechnik machen das Timber Innovation Hub zum smarten Vorbild. Die doppelschalige, nach Osten ausgerichtete Glasfassade holt nicht nur viel Tageslicht ins Innere, sondern dient auch im Sinne der Strategie der Mischlüftung der solaren Vorwärmung im Winter sowie als thermische Pufferzone im Sommer. Ein Lamellenmuster erinnert an das weiche, diffuse Licht eines Laubwaldes und zeichnet in Verbindung mit Low-E-Glas für die Wärmestrategie des Gebäudes entscheidend verantwortlich. Eine Niedrigenergie-Beleuchtung und Sanitärarmaturen mit geringem Wasserverbrauch tragen zusätzlich zur Verringerung der betrieblichen Auswirkungen bei.
Dementsprechend erreicht das Gebäude am Ende der Bauphase – nach der Gewinnung der Rohstoffe, der Herstellung, dem Transport und der Installation (und ohne Ausgleich von CO2-Gutschriften) – eine CO2-Bilanz von Null. Der Gesamtkohlenstoffverbrauch über die nächsten 60 Jahre beträgt etwa 2/3 der aktuell geforderten RIBA-Referenzgebäudeziele für 2020. In Zahlen ausgedrückt bindet das Gebäude 530.488 kg oder etwa 300 kg CO2 pro Quadratmeter und speichert allein in seiner primären Holzstruktur während der Lebensdauer des Gebäudes etwa 415 Tonnen Kohlenstoff, was in etwa den Emissionen von 160 Flügen um die Welt entspricht.
SCION Timber Innovation Hub
Rotorua, Neuseeland
Bauherr: SCION, New Zealand Forest Research Institute
Planung: RTA STUDIO & IRVING SMITH ARCHITECTS
Statik: Dunning Thornton
Nutzfläche: 1.800 m2
Fertigstellung: 2021
www.rtastudio.co.nz
www.isarchitects.nz
Text: Linda Pezzei
Fotos: Patrick Reynolds
Kategorie: Projekte













