Konaki Averov Kulturzentrum Larissa
Stroh in Griechenland
Agro-topos / Larissa / Georges Batzios Architects
Bei „Griechenland“ denkt man in Mitteleuropa meist an Urlaub oder aber in letzter Zeit – aus bekannten Gründen – leider auch an Krisen und Schulden. Aus Griechenland kommen zur Zeit aber auch hochinteressante und wegweisende Projekte auf dem Gebiet der Architektur, von denen hier berichtet werden soll.
2014 wurde in der griechischen Stadt Larissa (sie liegt in der mittelgriechischen thessalischen Ebene) ein Wettbewerb zur Rekonstruktion eines alten, aus dem 19. Jahrhundert stammenden, landwirtschaftlich genutzten Bauwerkes ausgeschrieben – das Projektziel war die Schaffung des Konaki Averov Kulturzentrums. Den zweiten Preis errangen die Georges Batzios Architects mit einem außergewöhnlichen Projektvorschlag. Das öffentliche Wettbewerbswesen in Griechenland ermöglicht es der ausschreibenden Stelle (in diesem Fall der Stadt Larissa), aus den ersten drei Plätzen einen für die Realisierung auszuwählen. In diesem Fall war dies der zweite Platz. Aufgrund der wirtschaftlichen Situation (nicht nur in Griechenland) wartet das Projekt jedoch derzeit auf eine Realisierung.
Das alte Konaki Averov Gebäude war das wichtigste, der verstreut liegenden architektonischen Artefakte aus der Zeit der großen Landbesitze in Griechenland. Ein typischer Nutzbau mit dem, in diesen Gegenden üblichen, flachen Satteldach, mitten in der von goldfarbenen Getreidefeldern geprägten Landschaft. Seine Form war eine Beziehung von Architektur und Umraum. Diese Kombination von Gebautem und thessalischer Landwirtschaft schufen in der Zeit des Großgrundbesitzes Orte mit einzigartigen Besitztümern, immer in Beziehung zum Umraum und zur Kultur. Sie waren das Spiegelbild dieser Ära. Somit ist der historische Wert von Konaki Averov nicht nur in der architektonischen Form begründet, sondern ergibt sich auch aus der umgebenden Landschaft.
Eine Renovierung oder Restaurierung der ursprünglichen Gebäude erwies sich aus vielerlei Gründen als nicht zweckmäßig. Die Zersiedlung und Ausbreitung der Stadt Larissa in ihr Umfeld hatte bereits die meisten physischen Merkmale der ehemals goldfarbenen, von riesigen Getreidefeldern dominierten Landschaft Thessaliens und der Architektur verschluckt. Die urbane Entwicklung und der Fluss der Zeit hatten deren Textur und Farbe verändert und entfernt.
Der Vorschlag der Georges Batzios Architects bringt nun nicht nur eine Regeneration des Ortes, nicht nur der Bausubstanz wie eben des historischen Konaki Averov Gebäudes mit sich, sondern stellt einen modernen, strukturellen Kontext her. Das architektonische (Wettbewerbs-)Projekt nimmt an seinen beiden Endpunkten in der Gestaltung Anleihen an der ursprünglichen Architektur und schafft dazwischen einen langgestreckten Verbindungsbau, welcher die nötigen Volumina beherbergt. Die sichtbaren Paneele aus gepresstem Stroh bedeuten eine Wiederverbindung mit der Geschichte des Ortes im 19. Jahrhundert. Diese Gebäudehüllen bestehen aus 40 cm gepresstem Stroh.
Die Außenhaut bildet eine transparente Isolationsschicht aus einer Polykarbonatfolie, dahinter sind die (sichtbaren) Strohballen auf einer Aluminiumkonstruktion befestigt und die Innenseite wird mit Gipskartonplatten abgedeckt.
Diese außergewöhnliche Isolierung schafft es, die Notwendigkeit einer Kühlung im Inneren um 95% zu reduzieren. Das bedeutet die gleiche Energieeffizienz wie ein Passivhaus. Wenn es im Außenraum 35 Grad hat, beträgt die Innenraumtemperatur 22 Grad (ohne zusätzliche Kühlmaßnahmen). Diese maximale Energieeffizienz zusammen mit dem Wiederherstellen des „Abbildes“ der natürlichen Charakteristika könnten ein Modellfall für eine niedrigstpreisige, bioklimatische und nachhaltige Architektur sein. Und die sichtbare Zurschaustellung des (billigen) Baumaterials könnte auch ein Auslöser für eine Rekonstruktionsoffensive in der Ebene von Thessalien – die ja einen Großteil der landwirtschaftlichen Produktion der Gegend beherbergt – sein.
Die Strohkonstruktionsmethode ist eine in Nordeuropa entwickelte Technik. Somit wird in Griechenland eine Bauweise benutzt werden, die bei uns erst in Ansätzen eingesetzt wird. (architektur 07/13) Sie basiert auf den physischen und ökologischen Kriterien des in der Landwirtschaft hergestellten Baumaterials. Dieses Material ist sozusagen ein Derivat Thessaliens: Das Stroh aus dem Getreideanbau. Es wird die gesamte Architektur unter Berücksichtigung des Volumens und der notwendigen Fassadenbestandteile überdecken. Ebenso wird es bei der Gebäudeausstattung und der Gestaltung der Umgebung verwendet. Besucher können zwischen den Strohballen spazieren gehen, darauf sitzen, ein Picknick machen und darin liegen.
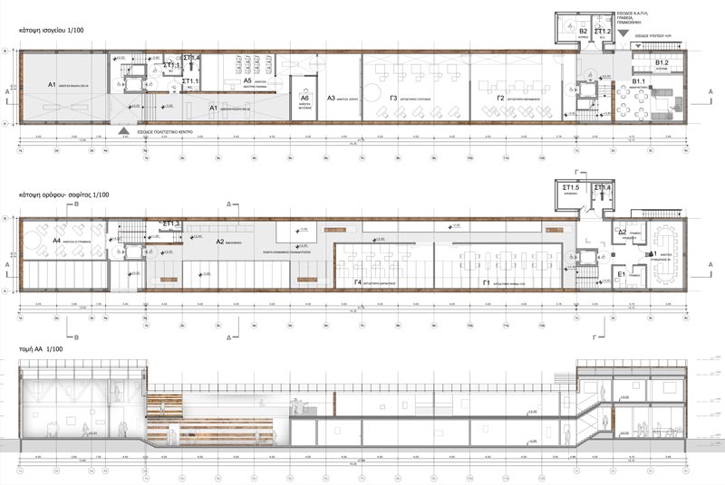
Das Kulturzentrum besteht aus zwei Ebenen: Ein Erdgeschoss und eine Ebene auf Höhe der Attika. Das Erdgeschoss enthält – klar und rationell organisiert – alle Grundfunktionen der Architektur. Die obere Ebene dagegen bietet einen großen Grad an Freiheit in Form von öffentlichen Bereichen. Hier können die Besucher mit den verschiedenen Programmen und Modulen des Bauwerkes interagieren. Am Boden findet der Rationalismus mit den notwendigen Funktionen statt und „oben“, im Bereich der Attika, ergibt sich – sozusagen – ein sozialer Spielplatz.
Renderings: Georges Batzios Architects












