Beton & Zement Jahresrückblick 2023
Flächenschonung mit Beton
Der DC-Tower 3 ‚District Living‘ veranschaulicht, wie mit dem Baustoff Beton Flächenschonung gelingen kann. Der Studentenwohnturm mit 832 Apartments wurde auf einem bis dato ungenutzten Zwickelgrundstück mit 6.400 Quadratmetern Fläche errichtet. Von den Tiefbauarbeiten für die Fundierung des 110 Meter hohen Gebäudes (624 Piloten wurden dafür in vier Monaten betoniert) bis hin zu den vielen Sichtbetonflächen wurde der Baustoff Beton verwendet. Für den Entwurf zeichnen Dietrich|Untertrifaller Architekten verantworlich.
Auch in puncto Ökologie wurde auf Beton gesetzt: Geheizt und gekühlt wird mit Bauteilaktivierung. Durch die Ortbetonbauweise war das Verlegen von Rohren in den Geschossdecken einfach, zusätzliche Heiz- und Kühlsysteme werden für die 832 Apartments nicht benötigt. Höchste Effizienz erreichte das Planerteam auch durch die vorgefertigten Nasszellen: Die Badezimmer aus Betonfertigelementen kamen fix und fertig auf die Baustelle und wurden mit einem Kran eingehoben.
„Der DC Tower 3 ‚District Living‘ ist für mich ein zukunftsgerichtetes Vorzeigebeispiel, wie wir unsere Städte nachverdichten und weiter bauen müssen: weniger Flächenverbrauch – mehr Effizienz. Die Themen Klimaschutz, Nachhaltigkeit, Ressourcenschonung und Flächeneffizienz sind für unsere Branche längst selbstverständliche Schwerpunkte, die wir bei jedem Projekt mitdenken“, so VÖZ-Präsident Berthold Kren.
Fotos: Kurt Hoerbst
Eine sanfte Woge
Das Studio Aleš Fiala platzierte das neue Bauwerk des Weinguts Gurdau unter einem grünen, wellenförmigen Dach, das sich unaufdringlich in die üppige Landschaft an Weinbergen rund um das tschechische Dorf Kurdějov einfügt und gleichzeitig ein respektvolles Zeichen im Sinne der Nachhaltigkeit und des Umgangs mit der Natur setzt.
Erst 2012 wurde das tschechische Weingut Gurdau mit der Anpflanzung der ersten Rebstöcke an den Hängen oberhalb des Dorfes Kurdějov gegründet. Der Name ist eine Reminiszenz an die Historie und das große weinbauliche Erbe der Region, die zu den wichtigsten Weinlieferanten für die Bürger von Mikulov und Brünn sowie für die Adelshöfe in Mähren zählte. Was im 16. Jahrhundert mit dem Eintreffen vinophiler deutscher Siedler seinen Anfang nahm, führt das Weingut heute beharrlich fort. Natürliche und nachhaltige Praktiken und eine gesunde Demut gegenüber der Natur zeichnen die Arbeit der Weinbauern in dem geschlossenen Mikroklima der sehr steilen Hänge in bester Lage aus. Für den Bauherren war es daher eine Selbstverständlichkeit, dass sich auch das neue Gebäude zwar zurückhaltend, aber dennoch selbstbewusst in die Landschaft fügen sollte.
Eine wogende Welle aus Beton
Das Studio Aleš Fiala eruierte für den neuen Standort des Weingutes einerseits dessen betriebswirtschaftliche Effizienz und andererseits eine gewisse Poetik, was eine vom Dorf abgerückte und der Umgebung zugewandte Positionierung inmitten der Weinberge ergab. Den landschaftlichen Kontext griffen die Architekten in Gestalt einer sanften Wölbung auf, die sich zurückhaltend in die umgebenden Hügel einfügt. Um das Gebäude in das Gelände und seine Verbindung zum kulturellen und natürlichen Grün einzubinden, konzipierten die Planer das geschwungene Dach als extensive Grünfläche und ließen die Umgebung des Gebäudes mit 150 Sträuchern und alten Bäumen bepflanzen, die an mehreren Stellen durch das perforierte Dach hindurchwachsen dürfen.
Das zweistöckige Gebäude besteht in seiner Konstruktion aus Stahlbeton, wobei der unterirdische Teil für die Herstellung und Lagerung des Weines genutzt wird. Im Erdgeschoss finden Verkostungen statt und es gibt Sitzgelegenheiten sowie Verkaufsflächen für Besucher. Zudem stehen Gästen zwei Apartments für gelegentliche Übernachtungen zur Verfügung. Mit dem teilweisen Eingraben des Bauwerks in die Erde folgte das Studio Aleš Fiala einem für Weinkellereien traditionellen Konzept, das der Architekt in Folge jedoch zeitgemäß und zeitlos interpretierte: „Die Atmosphäre des Ortes basiert auf der Erfahrung von Schönheit, Raffinesse und absolutem Komfort.“ Materialien wie Sichtbeton, Glas, Metall, Eiche und Akazienholz kamen unverfälscht zum Einsatz, um dank handwerklicher Präzision und durchdachter Details die organische Form des Gebäudes noch zu stärken.
Blick in die Landschaft
Großzügig dimensionierte Glasflächen, weitläufige Terrassen und ein Schrägdach schaffen eine direkte Verbindung zur Außenwelt, wobei die Stimmung und das Licht im Raum mit den Jahreszeiten changieren dürfen. „Das Einbetten des Gebäudes in das Gelände schafft das Gefühl eines einladenden Hintergrunds und ein natürliches Verschmelzen mit dem Ort, aus dem der Wein stammt“, sagt Fiala. So bieten sich von dem künstlich geschaffenen Hügel nicht nur Ausblicke auf die sich in der Ferne abzeichnenden Pollauer Berge und die sich nach Österreich ausdehnenden Ebenen, die Räume lassen sich je nach der gewünschten Atmosphäre in eine Bühne für gesellige und romantische Momente wie für ruhige Kontemplation bei einem Glas Wein wandeln. „Wir glauben, dass das Konzept der Weinkellerei Gurdau einen bedeutenden Beitrag zur schnell wachsenden und zunehmenden Wein- und Weintourismuskultur in der Tschechischen Republik leisten und das Wachstum einer neuen charmanten Tradition der kultivierten Begegnungen und Verbindungen zwischen Mensch, Wein und Landschaft unterstützen wird“, erklärt Fiala die Intention des Entwurfs.
Die Natur respektieren
Die natürliche Umgebung dient dem Weingut als wichtige Ressource und schützenswertes Gut. Durch die Verortung und Gestaltung tritt das für die Arbeit nötige Bauwerk aus der Ferne betrachtet in den Hintergrund, scheint mit der Vegetation zu verschmelzen. Aus der Nähe aber offenbart sich eine einladende, offene und starke Geste, die die Besucher magisch anzuziehen scheint. Auf einen Blick wird deutlich, warum die Architektur an dieser Stelle in dieser Form existiert: Die Lage des Gebäudes direkt im Weinberg minimiert die Transportwege von Rohstoffen und Arbeitskräften innerhalb des Weinguts. Während sich die Produktionsbereiche bei relativ konstanten Temperaturen unter dem Gelände befinden, öffnen sich die Besucherbereiche durch eine Glasfassade zur Sonne hin, sodass die passive Energie durch den Wärmeeintrag optimal genutzt werden kann. Um eine Überhitzung in den heißesten Sommermonaten zu vermeiden, entschied sich Fiala für eine wärmeisolierende Dreifachverglasung in Kombination mit Holzlatten aus Eichenholz vor den Fenstern, einem ausreichenden Überhang des gewölbten Daches und einer Beschattung der Pergola vor der Fassade mittels Planen. Geheizt wird mit einer Luft-Wasser-Wärmepumpe. Das Regenwasser wird in einem Speichertank aufgefangen und für die Bewässerung des Weinbergs verwendet.
Gurdau Winery
Brünn – Žabovřesky, Tschechische Republik
Bauherr: Gurdau Winery
Planung: Aleš Fiala
Bauingenieure: Tomáš Bílek, Bronislav Bureš
Statik: OK ateliér
Haustechnik: Projekce TZB Prokeš
Elektroplanung: CATEGORY
Landschaftsplanung: Zdeněk Sendler
Innenausstattung: Daniela Hradilová
Grundstücksfläche: 43.099 m2
Bebaute Fläche: 1.260 m2
BGF: 1.141 m2
Nutzfläche: 997 m2
Planungsbeginn: 2016
Fertigstellung: 2022
Text: Linda Pezzei Fotos: BoysPlayNice
Nachhaltiger Beton
Beton ist zu 100 Prozent für die Kreislaufwirtschaft geeignet. Derzeit werden in Österreich bereits mehr als 90 Prozent des Altbetonaufkommens recycelt, zerkleinert und hauptsächlich als Schüttgut in ungebundenen Anwendungen verwertet.
Wopfinger Transportbeton arbeitet bereits seit 10 Jahren an der Weiterentwicklung von Betonen mit Anteilen an rezyklierten Gesteinskörnungen und bereitet Baurestmassen inklusive Ziegel und andere mineralische Baustoffe, die beim Abbruch alter Gebäude anfallen, in einem speziellen Verfahren auf. Mit dem selbst entwickelten Verfahren zur Wiederaufbereitung von Gesteinskörnungen können dadurch der Recyclinganteil im Transportbeton erhöht und natürliche Ressourcen und Deponieflächen geschont werden. Hinzu kommt, dass die CO2-Aufnahmefähigkeit von Betonbruch beachtlich ist und bis zu 41 Prozent des CO2 betragen kann, die bei der Zementherstellung durch die Entsäuerung des Kalksteins entsteht.
Durch den Einsatz modernster Technik ist es nun möglich, beide Umweltziele besser zu erreichen: den Einsatz von Recyclingmaterial im Transportbeton weiter zu erhöhen, Zement und Zusatzstoffe selektiv zu mischen und exakt an die betontechnologischen Anforderungen auszurichten und somit eine möglichst hohe CO2-Reduktion zu erreichen.
Mit der Errichtung der beiden technologisch fortschrittlichsten ÖKOBETON-Werke Österreichs hat die Wopfinger Transportbeton in Seibersdorf und Bergland die technischen Möglichkeiten dafür geschaffen. Die nachhaltige Produktlinie ÖKOBETON mit rezyklierten Gesteinskörnungsanteil und CO2-reduzierten Beton-Rezepturen wird in den neuen ÖKOBETON-Werken ständig weiterentwickelt und auf alle anderen Transportbetonwerke der Wopfinger Transportbeton ausgerollt.
Neue Leichtigkeit
Stahlbeton steht global gesehen an der Spitze der meistverwendeten Baumaterialien. Und das, obwohl sich die Klimabilanz des Werkstoffs leider alles andere als positiv zeigt. Ein Team der Technischen Universität Dresden machte es sich zur Aufgabe, das zu ändern. Im Zuge einer materialwissenschaftlichen Forschung entstand daraus in Kooperation mit dem Architekturbüro HENN das weltweit erste Gebäude aus Carbonbeton: CUBE.
Der pavillonartige Baukörper befindet sich im Herzen des Universitätscampus auf dem Fritz-Foerter-Platz. Er beinhaltet auf 243 Quadratmetern ein Labor, Büro und Veranstaltungsbereiche der TU Dresden und ist als Modellprojekt Teil des – vom Bundesministerium für Bildung und Forschung geförderten – Projekts „C3 – Carbon Concrete Composite“. Als erstes Carbonbeton-Gebäude soll CUBE potenzielle Anwendungsbereiche des innovativen Werkstoffs und positive Auswirkungen für den Bausektor aufzeigen.
Anstelle der klassischen Stahlbewehrung kommen beim Carbonbeton Matten bzw. Stäbe aus Kohlenstofffasern zum Einsatz. Diese bieten gegenüber Stahl den Vorteil, dass sie nicht nur korrosionsbeständig und deutlich leichter sind, sondern auch eine 4- bis 6-fach höhere Zugfestigkeit aufweisen. Gleichzeitig benötigt das innovative Material weniger Beton und reduziert so das Gesamtgewicht im Vergleich zu Stahlbeton auf bis zu ein Viertel. Auf diese Weise führt Carbonbeton zu CO2-Einsparungen und erleichtert außerdem sowohl Transport als auch Einbau.
Der experimentelle Bau wurde in Zusammenarbeit zwischen dem Institut für Massivbau an der TU Dresden unter der Leitung von Professor Manfred Curbach und einem Expertenteam aus verschiedenen Fachbereichen von HENN entwickelt. Parallel arbeiteten die Projektbeteiligten dabei am Entwurf und testeten die Gestaltungsoptionen auf ihre technische Realisierbarkeit. Das Ergebnis ist mit CUBE ein kompaktes Volumen mit einem zentralen Twist. Es wurde mithilfe von Halbfertigteilen und Spritzbeton umgesetzt und rückt die Materialeigenschaften in den Mittelpunkt. Dach und Wände des Baus gehen dank der textilen Struktur der Carbonfasern fließend und fugenlos ineinander über. Auf eindrucksvolle Weise demonstrieren die elegant gekrümmten Betonschalen die formale Flexibilität und Gestaltungsfreiheit des Werkstoffs.
Im Gegensatz zu den Doppelwandsystemen herkömmlicher Stahlbetonkonstruktionen mit durchschnittlich 40 bis 44 cm konnte man die Wandstärken auf effiziente 27 cm minimieren. Trotz des dünnen, materialschonenden Aufbaus beinhalten die Wände außerdem einen besonderen Clou: In Form von integrierten, elektrischen Heizungen und Steuerungstechnik nutzte man mit der Leitfähigkeit der Carbongitter eine weitere Qualität des Materials. Großflächige Verglasungen sowie ein langgezogenes Oberlicht in der geschwungenen Decke komplettieren den zukunftsweisenden Baukörper. Sie bringen reichlich Tageslicht ins Innere, setzen die auffällige Geometrie von CUBE gekonnt in Szene und machen Lust auf mehr Carbonbeton-Architektur.
Text: Edina Obermoser
Fotos: Stefan Müller, Stefan Gröschel
Saubere Luft & saubere Steine
Mit der reduNOx Technologie bietet der burgenländische Pflastersteinhersteller Friedl Steinwerke eine Lösung an, mit Pflastersteinen Schadstoffe aus der Luft abzubauen. Das dafür eingesetzte Prinzip ist rasch erklärt: Dem Betonstein wird Titandioxid zugesetzt, das mithilfe von Sonneneinstrahlung Stickoxide, darunter das gesundheitsschädliche NO2, an der Steinoberfläche in Nitrat umwandelt.

Ludwig-Zatzka-Park, Wien © Markus Kaiser, Graz
Dieser Prozess wird Photokatalyse genannt. Das leicht wasserlösliche Nitrat wird dann mit dem nächsten Regen, Kondenswasser oder Reinigungswasser abtransportiert und in der Bodenzone mikrobiell zersetzt. Die Menge an Nitrat, die so in den Kanal, den Rasen oder in Blumenbeete gelangt, ist unbedenklich.
Titandioxid ist ein vielseitig eingesetzter Stoff und kommt als Weißpigment in allen Arten von Anstrichen, in Kunststoffen, Sonnenschutzmitteln sowie Kosmetika und Medikamenten vor. Die photokatalytische Wirkung der Friedl Steine hat das Institut für Technische Chemie D-TOX in Hannover nachgewiesen: Es wurde eine Abbaurate unter Laborbedingungen von 20,04 mg NO/m2h erzielt und dem geprüften Stein damit eine exzellente Aktivität für den photokatalytischen Abbau in der Gasphase bestätigt. Die Wirkung des Titandioxids bleibt über die gesamte Lebensdauer des Steins erhalten, d. h. es baut sich nicht ab. Die beste Schadstoffreduktion erzielen diese Pflastersteine unter voller Sonneneinstrahlung, aber bereits bei diffusem Licht setzt die Photokatalyse – und damit der Schadstoffabbau und der Selbstreinigungseffekt der Steine – ein.
In Wien wurde bereits der Ludwig-Zatzka-Park mit Pflastersteinen mit reduNOx-Technologie gestaltet.
Die Schule als Pädagogin
Dass das Colegio Reggio kein 0815-Bildungsbau ist, wird auf den ersten Blick klar. Mit dieser neuen Schule realisierte das spanische Büro Office for Political Innovation in Madrid einmal mehr nicht nur ein Gebäude, sondern ein architektonisches Statement. Das Team entwickelte einen verspielten, ökologischen Lernort, der die Kinder zum Entdecken und Experimentieren anregen soll und setzte dabei unter anderem auf die Verwendung von wenigen und natürlichen Materialien.
Andrés Jaque ist der Gründer des Planungsbüros und bekannt für seine unkonventionellen Entwürfe. In Encinar de los Reyes, einem Viertel im wohlhabenden Norden der spanischen Hauptstadt, machte er seinem Ruf mit der Umsetzung dieser Schule einmal mehr alle Ehre. Anstelle eines schlichten Gebäudes entstand hier ein extravaganter Baukörper mit Bullaugen, Bögen und gezackten Dächern.
Als Basis für das auffällige Design dienten die Grundsätze der Reggio-Pädagogik. Diese geht auf Loris Malaguzzi zurück, der die Erziehungsphilosophie in den 1970er-Jahren in der italienischen Stadt Reggio nell‘Emilia begründete, und verleiht dem Bildungsbau seinen Namen. Offene Raumkonzepte und flexible Strukturen sollen in Reggio-Schulen Kreativität und Entdeckerdrang der Kinder fördern und diese somit beim eigenständigen Lernen unterstützen. Angepasst an diese Idee baute man nun ein Gebäude mit einem komplexen Ökosystem, welches die Architekten selbst als Multiversum bezeichnen.
Das Planerteam suchte in vielerlei Hinsicht gezielte Alternativen zur herkömmlichen Bildungsarchitektur. Mithilfe einer Reihe von Gestaltungsprinzipien erarbeitete es eine Low-Budget-Strategie, um den ökologischen Fußabdruck des Projekts weitestgehend zu optimieren: Während Bildungsbauten als flache Ensemble oft eine große horizontale Ausdehnung aufweisen, konzentrierte man sich auf die Vertikale und stapelte die unterschiedlichen Funktionen in einem kompakten Volumen mit sechs Geschossen. Auf diese Weise konnte nicht nur die Grundfläche, sondern auch der Anteil von Fundamenten und Fassadenflächen minimiert werden. Auch sonst folgte man der Prämisse der radikalen Reduktion und senkte so den gesamten Materialeinsatz um 48 %. Bei Fassaden und Dächern wurde ebenfalls gänzlich auf komplexe Lösungen verzichtet und stattdessen die rohe Ästhetik des Schulhauses gezielt in den Fokus gerückt. Die Konstruktion analysierte und dimensionierte man in Zusammenarbeit mit dem Statik-Experten Iago González Quelle. Daraus entstand ein effizientes Tragwerk, welches bei den Aufbaustärken im Vergleich zu herkömmlichen Stahlbetonkonstruktionen durchschnittlich mehr als 15 cm und damit 33 % an grauer Energie einspart. Auch im Inneren gibt es keine unnötigen Wandverkleidungen oder abgehängten Decken. Die Gebäudetechnik wird nicht versteckt, sondern Rohre, Leitungen, Gitter und andere Installationen sichtbar in die Räume integriert. So möchte man den Schülern ungehinderten Einblick in mechanische Systeme wie Wasser- und Stromversorgung sowie Belüftung geben.
Zum zentralen Element des nachhaltigen Konzepts wird die senfgelbe Gebäudehülle. Diese besteht mit Kork zu 80 % aus einem nachwachsenden Rohstoff und vereint Außenverkleidung und Wärmedämmung in einem. Mit einer Stärke von 14,2 cm und einer Dichte von 9.700 kg/m3 trägt das natürliche Material – in der Metropole mit ihren extremen Temperaturunterschieden zwischen Sommer und Winter – sowohl zur passiven Regulierung des Raumklimas als auch zur Senkung des Energiebedarfs bei. Darüber hinaus soll die organische Oberfläche mit ihren Vor- und Rücksprüngen künftig zum urbanen Lebensraum für Pilze, Pflanzen und Mikroorganismen werden.
Neben der besonderen Farbe und Haptik prägen die Ansichten des Bildungsbaus verschiedenste geometrische Formen und Öffnungen: Hohe Rundbögen aus Stahlbeton geben aus der Schulbibliothek den Blick in den Garten frei. Recht- und dreieckige Verglasungen wechseln sich mit runden Bullaugenfenstern ab. Den krönenden Abschluss bildet das zickzackförmige Dach.
Das Innere steht ganz im Zeichen der vertikalen Progression. Wie in einem kleinen Dorf verteilen sich die einzelnen Lerneinheiten für die 0- bis 18-Jährigen hier auf die sechs Etagen. Sowohl das Unter- als auch das Erdgeschoss sind teils in den Boden integriert und lassen das Gebäude mit seiner Umgebung verschmelzen. Als unterste Niveaus beinhalten sie die Räumlichkeiten der jüngeren Kinder und öffnen sich vielerorts in Form von raumhohen Fensterflächen zum Außenraum. Mit zunehmendem Alter und Entwicklungsstand steigen die Lernenden über die Jahre hinweg in die darüberliegenden Ebenen auf. Im dritten und vierten Stockwerk befindet sich das Herzstück der Schule: eine große Halle bzw. Agora. Diese dient mit 500 m2 Fläche und 8 m Höhe als zentraler Versammlungsort. Die Klassenräume in den obersten beiden Geschossen sind rund um ein üppig bepflanztes, atriumartiges Gewächshaus angeordnet. Als Teil der spielerischen Wissensvermittlung werden die Indoor-Gärten von den älteren Schülern selbst gepflegt. Sämtliche Lernräume sind offen und flexibel nutzbar gestaltet und bieten ebenso großzügige Freiflächen für gemeinschaftliches Lernen und Lehren wie auch geschützte Rückzugsorte. Nebenräume wie Lager und Abfall sowie den Tank für die Bewässerung der Grünflächen verbirgt man – dem pädagogischen Konzept entsprechend – nicht hinter Wänden und Türen, sondern verleiht ihnen in der gesamten Schule bewusst Sichtbarkeit.
Mit dem Colegio Reggio heben Office for Political Innovation das Paradigma Nachhaltigkeit in Madrid auf ein völlig neues Niveau. Sie berücksichtigten den gesamten Lebenszyklus von Entwurf und Errichtung bis hin zum Betrieb, schufen einen einzigartigen, interaktiven Lernort und machten das Gebäude damit gleichzeitig selbst zum Pädagogen. In diesem Bildungsbau werden den jungen Nutzern mehr als nur klassische Inhalte vermittelt. Tag für Tag haben die Kinder die Möglichkeit, das vielseitige Schulhaus mit all seinen Einzelteilen, Materialien, Oberflächen und Farben intuitiv weiter zu erforschen und so ein Verständnis für den komplexen Organismus zu entwickeln. Natürliche Korkfassade, hauseigener Bewässerungstank, grünes Gewächshausatrium, freiliegende Installationen und mehr – bei all der Fülle von Eindrücken des vielschichtigen Ökosystems läuft man als Betrachter lediglich Gefahr, auf die eigentliche Message des Planerteams zu vergessen: „Weniger (Material) ist mehr.“
Colegio Reggio
Encinar de los Reyes, Madrid
Bauherr: Colegio Reggio Madrid
Planung: Andrés Jaque / Office for Political Innovation
Projektleitung: Ángel David Moreno Casero, Carlos Peñalver Álvarez, Almudena Antón Vélez
Statik: Qube Ingeniería de Estructuras (Iago González Quelle, Víctor García Rabadán)
Landschaftsplanung: Mingobasarrate (Jorge Basarrate, Álvaro Mingo)
Gebäudetechnik: JG Ingenieros (Juan Antonio Posadas)
Nutzfläche: 5.496 m2
Planungsbeginn: 2018
Bauzeit: 2020 – 2022
www.officeforpoliticalinnovation.com
Text: Edina Obermoser
Fotos: José Hevia
Smarter Beton-Deckendruck
Erstmalig wurde in Österreich durch Verwendung von 3D gedruckten Aussparungskörpern eine deutlich gewichtsreduzierte Decke umgesetzt, welche alle Kriterien zur Erreichung der Klimaziele 2030 erfüllt. Mit einer Gesamtfläche von 717m², ist die Konstruktion am Bludenzer Bauhof, die in Zusammenarbeit von Baumit, Concrete 3D und der TU Graz entstand, zudem die weltweit größte Decke dieser Art.
Bauherr Werit, Architekt Marcus Ender und nicht zuletzt die Stadt Bludenz als Nutzerin waren vom Vorschlag einer klimafreundlichen Kassettendecke angetan. Die Idee ist so einfach wie genial: Durch den Einbau verlorener Schalungen aus dem 3D-Drucker werden Material und Emissionen gespart. Mit einer speziellen Software berechnete man für das Flachdach insgesammt 792 Verdrängungskörper – jeder ein Unikat. Concrete 3D druckte diese mit mehr als 60 Tonnen Beton und einer insgesamt 210 Kilometer langen Druckbahn. Die bis zu 80 Kilogramm schweren Elemente wurden nummeriert, auf die Baustelle geliefert, dort mittels Totalstation auf der Schalung positioniert, dazwischen Bewehrungsstahl verlegt und das Ganze mit Beton aufgefüllt. Das Ergebnis: Eine um ein Drittel leichtere Decke, deren Herstellung etwa 25 Prozent weniger Treibhausgase emittierte. Der Mehraufwand für Handling und Logistik wird durch die Materialeinsparung und die erweiterten statischen Möglichkeiten kompensiert. Für die betonsparende Konstruktion sorgten die Dornbirner Tragwerksplaner:innen von gbd in Zusammenarbeit mit dem ITE. Des Weiteren wird in Ausblick auf die ferne Zukunft auf diesem Weg auch eine einfache Rückbaubarkeit gewährleistet. Die Konstruktion besteht lediglich aus Beton und Stahl und kann damit nach Ende der Nutzungsdauer zu 100 Prozent wiederverwertet werden.
Bei den Emissionen sehen die Verantwortlichen aber noch Luft nach oben: Mit dem Einsatz von CO2-reduziertem Beton können weitere Treibhausgase gespart werden und auch beim Prozess besteht Potenzial. Früher oder später soll direkt auf der Baustelle gedruckt werden.
Fertigteil Iglu
Die Norman Foster Foundation hat bei der Eröffnung der diesjährigen Architekturbiennale in Venedig ihr Forschungsprojekt „Essential Homes“ vorgestellt. Im Rahmen einer Partnerschaft mit Holcim entwickelten sie ein besonderes Fertigteilhaus, das vertriebenen Menschen, die über viele Jahre in temporären Siedlungen wohnen, Sicherheit, Komfort sowie Wohlbefinden bieten soll.
Das Fertighaus wurde von den spanischen Architekten Alberto Cendoya und Diego López von der Norman Foster Foundation entworfen, während Holcim sein technisches Know-how beisteuerte. Im Vergleich zu herkömmlichen Bauten der selben Größe weist das Haus einen um 70 Prozent geringeren CO2-Fußabdruck auf und erfordert weder ein Fundament noch Ausschachtungen. Es wurde mit einer Vielzahl nachhaltiger Bautechniken von Holcim konzipiert, um es kohlenstoffarm, energieeffizient und zirkulär zu machen. Das Dach des Hauses besteht aus aufrollbaren Betonplatten, für die eine speziell entwickelte Zementmischung verwendet wurde, die einen um 20 Prozent geringeren CO2-Ausstoß aufweist. Dieser filigran wirkende rollbare Beton ist eine leicht zu verarbeitende Lösung, die im Vergleich zu herkömmlichen Anwendungen deutlich weniger Material verbraucht. Er muss vor Ort einfach mit Wasser bespritzt werden und härtet innerhalb weniger Stunden aus.
Um die Kreislaufwirtschaft zu fördern, setzt Holcim zudem recycelte Abbruchmaterialien ein, die als ECOCycle® bekannt sind, um die Basis des wetterbeständigen Essential Home zu verstärken. Das zirkuläre Design mit modularen Einheiten bewirkt, dass alle Komponenten der „Essential Homes“ am Ende der Nutzungsdauer wiederverwendbar oder wiederverwertbar sind. Energieeffiziente Dämmsysteme, von Elevate-Platten bis zum CO2-armen Airium-Schaum, sorgen darüber hinaus für thermischen und akustischen Komfort sowie eine verbesserte Energieeffizienz. Der Prototyp besteht ausschließlich aus Produkten, die bereits verfügbar sind. Er ist also mittelfristig zu 100 Prozent realisierbar wobei die geschätzten Kosten bei unter 20.000 Euro liegen.
Lernhaus der Zukunft
Die Anforderungen an den Neubau der Willy-Brandt-Gesamtschule in München sind hoch: Modern sollte er sein, räumlich überschaubar, aber groß genug, um zwei Schulen unterzubringen. Im Sommer 2024 sollen die Baumaßnahmen dazu abgeschlossen sein. Ein Bauvorhaben dieser Größe erfordert Betonplatten von großer Spannweite mit einer entsprechenden Dicke. Die hohen Querkräfte zwischen den großen Betonbauteilen nimmt dabei der neue Schwerlastdorn Stacon von Schöck auf.

Der Eingang zum Schulgelände ist der Straßenseite zugewandt. Visualisierung: HASCHER JEHLE Architektur
Der Bauproduktehersteller aus Baden-Baden hatte das innovative Produkt als Weiterentwicklung seines bereits bestehenden Querkraftdorns erst kurz vor Baubeginn auf den Markt gebracht. Die neue Generation des einbaufertigen Schwerlastdorn Stacon Typ SLD ist kompakter und ermöglicht den Einbau höherer Tragstufen in dünneren Decken und Wänden. Bei einem Eigengewicht von circa 35 Kilogramm kann ein einzelner Dorn
30 Tonnen Lasten übertragen. Die statisch und thermisch einwandfreie Befestigung der fast drei Kilometer langen Fluchtbalkone rund um das Gebäude sichert das tragende Wärmedämmelement Isokorb.

Als Teil der Bewehrung wird der Querkraftdorn Stacon in die Dehnfugen eingesetzt. Foto: Schöck Bauteile GmbH
Grenzgänger
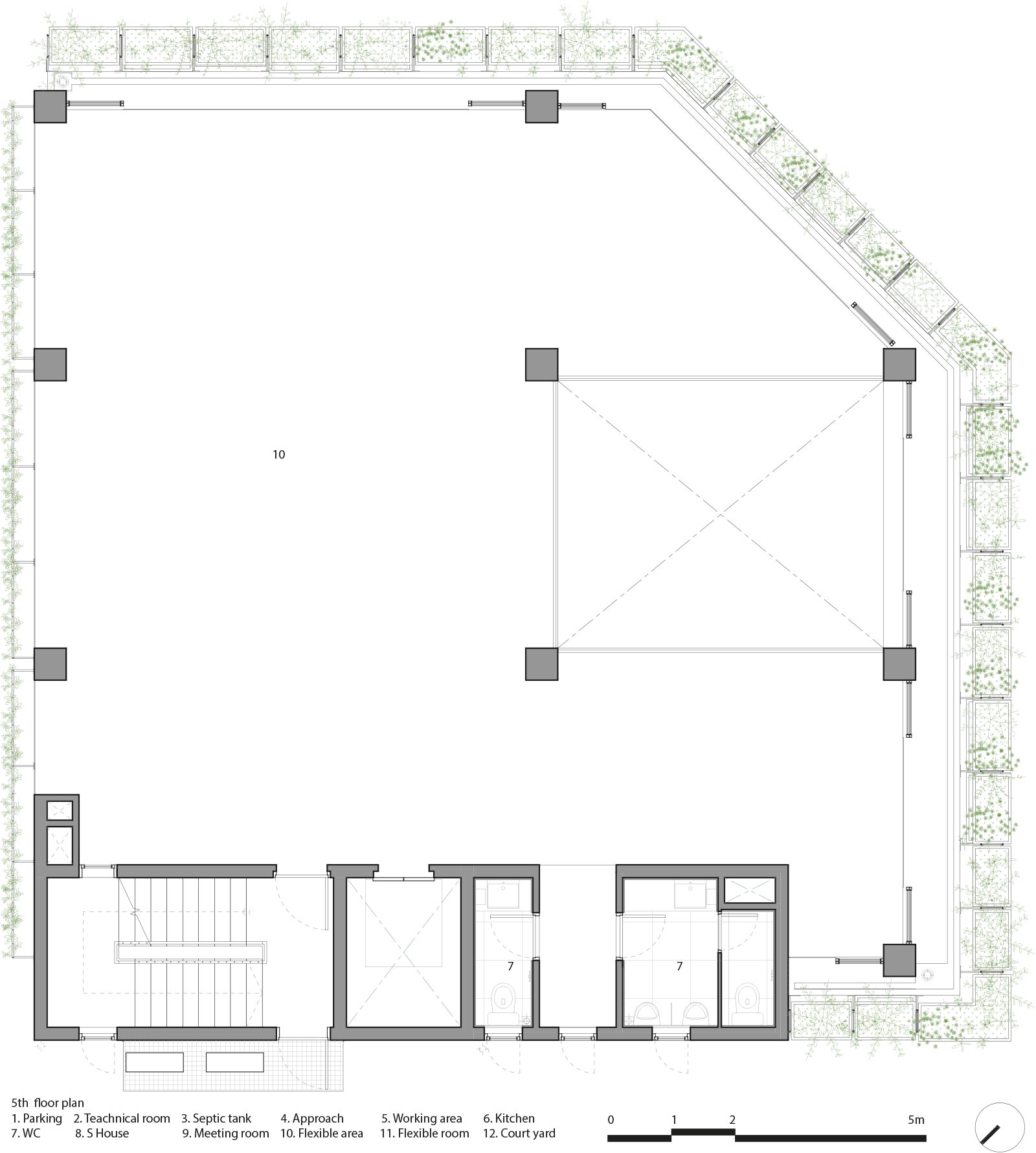
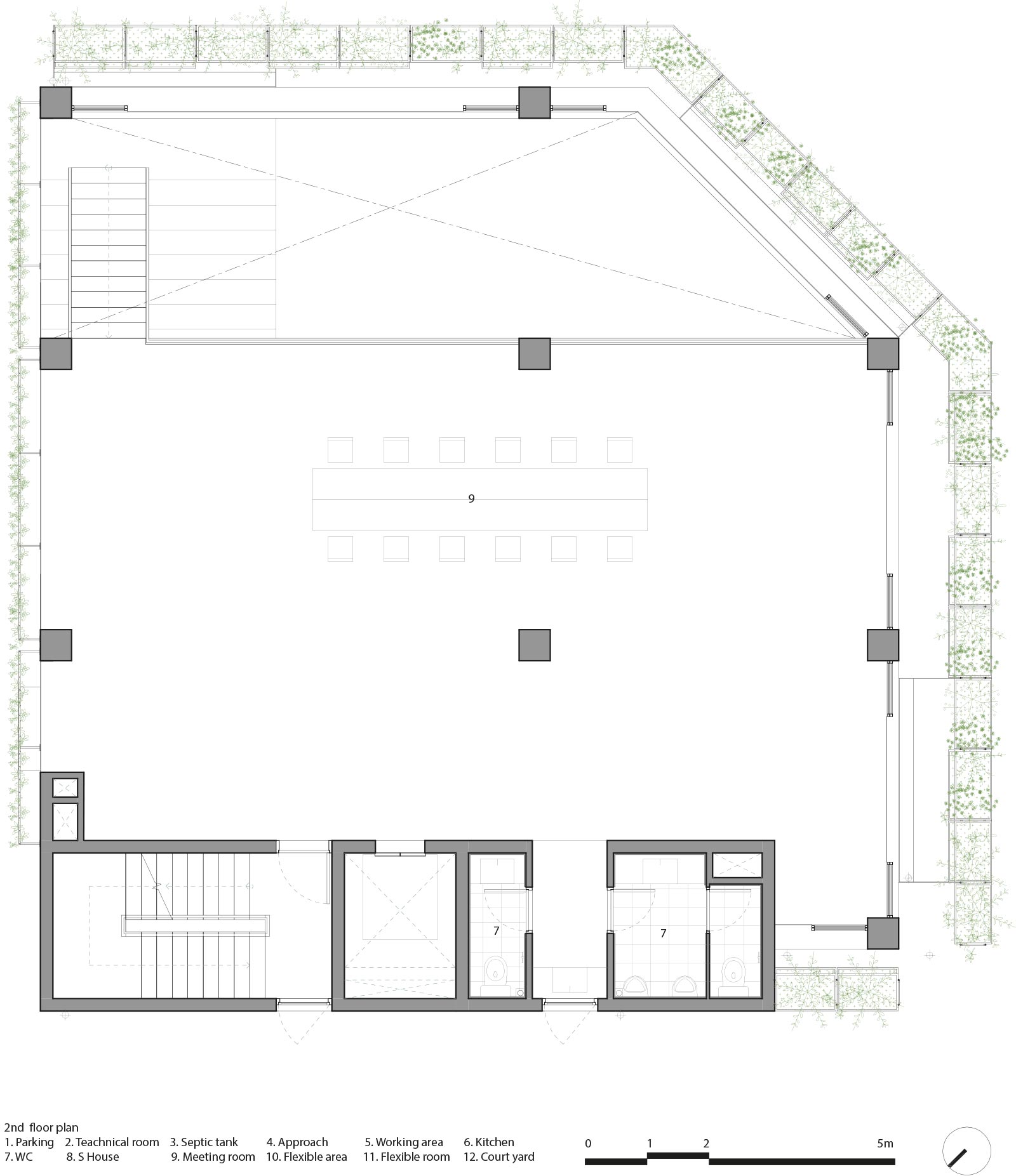
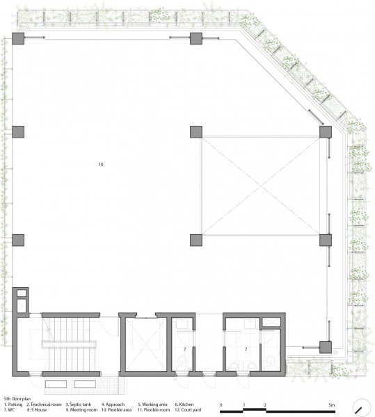
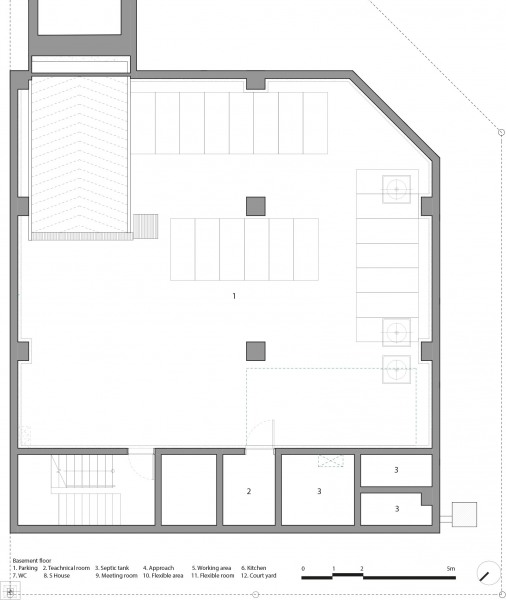
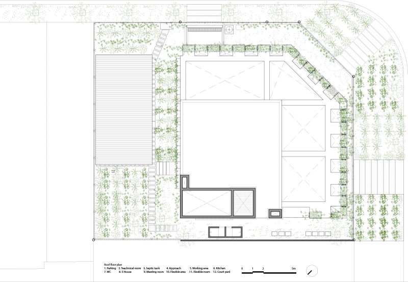
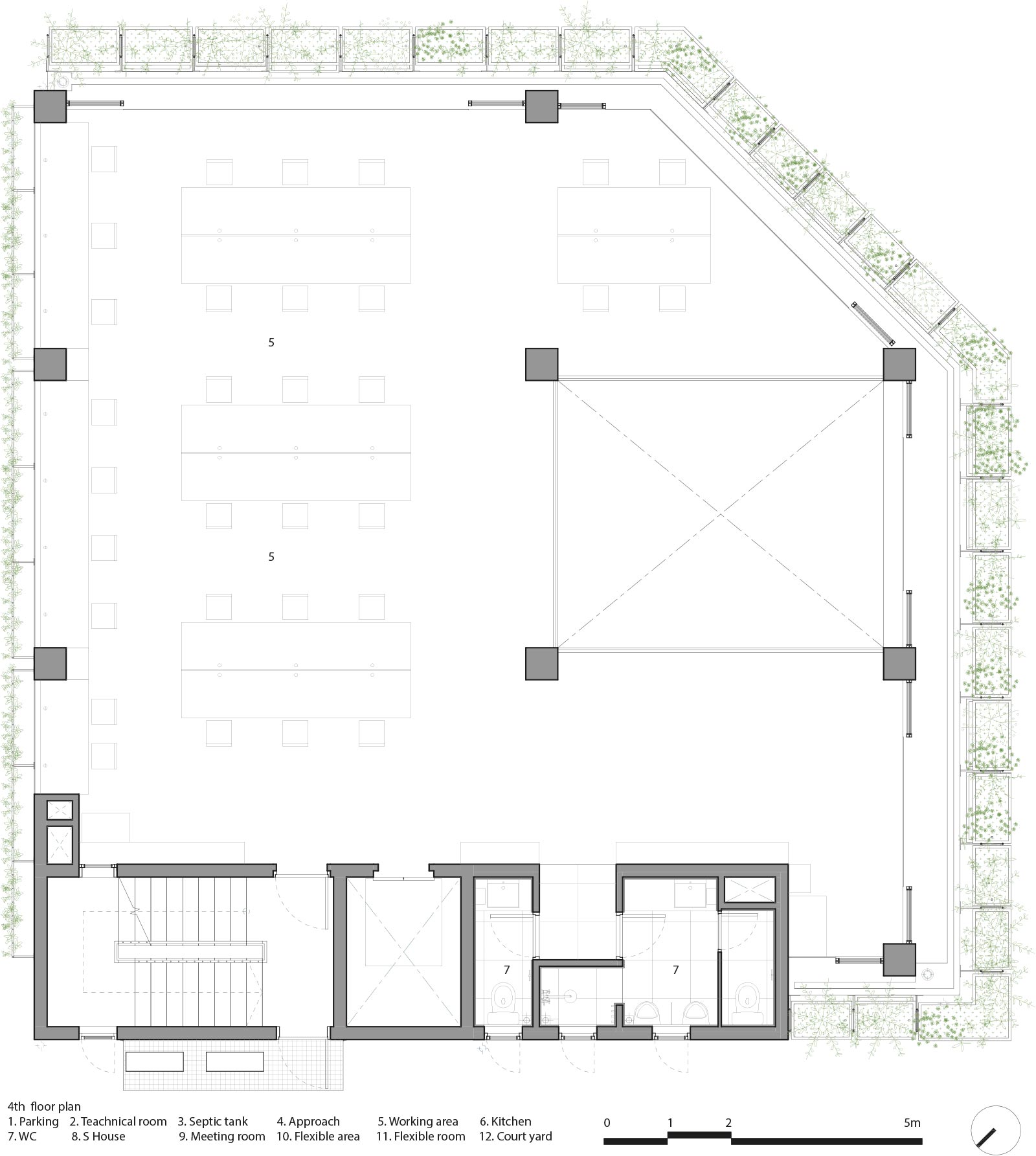
In den flirrenden Grenzbereich des Prager Stadtraums – eben dort, wo der urbane und natürliche Raum nahtlos ineinanderfließen scheinen – haben die in Brünn ansässigen RO_AR Szymon Rozwalka architects für einen privaten Bauherren ein Einfamilienhaus gesetzt. Ein Volumen, einerseits schlicht und klar und andererseits verspielt und einladend für jeden, der einen Moment verweilen mag.
Unweit des Nationalparks Prokopské údolí und nur einen Katzensprung entfernt von den berühmten Filmstudios Barrandov befindet sich, malerisch in einem Tal gelegen, der gutbürgerliche Prager Stadtteil Hlubočepy. Aus jedem Winkel eröffnen sich hier eindrucksvolle Ausblicke auf die Bögen eines Viadukts und den 310 Meter hohen Hügel Děvín sowie dazwischen eine beinahe wilde Naturlandschaft, die im Laufe der Jahreszeiten nicht mit ihren Reizen geizt. Auf der Grenze dieser beiden Welten – der urbanen Metropole Prag und der unberührten Natur – haben RO_AR Szymon Rozwalka architects für einen privaten Bauherren ein Einfamilienhaus geplant, das mit dieser Gegensätzlichkeit virtuos zu spielen vermag.
Während sich an der nordwestlichen Seite des Grundstücks entlang des Bachs Dalejský ein Biokorridor erstreckt, der durch die markante Lage der Felsformationen von Hlubočepy noch verstärkt wird, ist der Baugrund im Süden und Osten an den städtischen Raum angeschlossen. Dabei handelt sich um eine chaotische und zufällige räumliche Stadtentwicklung. Während dieser Umstand andernorts den Wert eines Baugrunds beeinträchtigen würde, haben die Architekten mit der Form und der räumlichen Gliederung des Volumens eine direkte Antwort auf diesen herausfordernden Kontext gefunden.
Das Konzept der Planer bestand darin, nicht das Grundstück den eigenen Vorstellungen anzupassen, sondern die gewachsene Umgebung in die Baufläche und das Haus hinein zu verlängern. „Auf diese Weise erfährt das Bauwerk eine Abkapselung von der städtischen Welt, für die es zu einem abstrakten Körper wird, der durch seine Form und seinen Maßstab mit den umgebenden Felsen im Hintergrund korrespondiert“, sagen die Architekten. Gleichzeitig geht die Form des Gebäudes auf die Notwendigkeit einer angemessenen natürlichen Belichtung der Räume, auf die Herausforderung eines recht engen Zugangsbereiches und auf die problematische Lage des Nachbargebäudes an der südlichen Grundstücksgrenze ein.
„In den ersten Schritten haben wir ein Gebäude entworfen, dessen Gestalt durch die Methode der Geländeverformung bestimmt wurde. Die Landschaft sollte von der Nordwestseite her fließend in einen künstlichen Hügel übergehen, in den das Haus hineingestellt werden sollte. An der Südostseite sollte der so entstehende «Hügel» unterhöhlt werden, um die Situation eines Eingangshofs unter dem Gebäude zu ermöglichen, der in diesem Teil durch eine weitere rechteckige Geometrie entstehen würde“, erklärt Architekt Szymon Rozwalka das ursprüngliche Konzept.
Letztlich zwang das zu eng gewordene Budgetkorsett Rozwalka dazu, das zuerst vorgeschlagene Gebäudevolumen erheblich zu verkleinern. „Man entschied sich für die riskante Methode des direkten Wegschneidens „unnötiger“ Elemente, die das Endergebnis erheblich beeinflussen mussten. Eine solche bewusst primitive und direkte Einsparung hat an einigen Stellen letztlich jedoch zu überraschend guten, an anderen Stellen zu eher schlechteren Ergebnissen geführt. Die Veränderungen betrafen dabei fast ausschließlich den organischen, hinteren Teil des Gebäudes und hatten kaum Auswirkungen auf die Innenräume, die nach dem ursprünglichen Konzept durch das Aufeinandertreffen von organischen und rechteckigen Geometrien entstanden sind“, legt Rozwalka weiter dar.
Betrachtet man das Einfamilienhaus Hlubocepy als zufällig vorbei spazierender Besucher einzig und unbedarft im Nachhinein, so wirkt das Bauwerk trotz einer gewissen vorherrschenden Chaotik durchaus harmonisch und in sich ruhend. Die einzelnen, eher kantigen Kuben sind zur Straßenseite hin gefasst durch eine semitransparente Lamellenstruktur aus Thermoholz, die das Ineinanderfließen von Außen und Innen perfekt in Szene setzt und den Ecken einiges an Schärfe nimmt. Ganz getreu dem Motto des Kontrasts wurden die Wände an anderer Stelle wieder offen belassen und bieten mit den großflächigen Glasfassaden und der schwungvollen räumlichen Entwicklung in Richtung Himmel ein Bild so wild wie die umgebende Landschaft.
Im Inneren hingegen wirkt alles ruhig und balanciert. Eine elegant geschwungene Decke aus Sichtbeton öffnet den Raum und fängt zusammen mit den orthogonal gebauten Wänden und Decken – ebenso ausgeführt in Sichtbeton – die warmen Sonnenstrahlen ein. Die skulptural ausformulierte Treppe wurde ebenso wie ein Teil des Bodens in lebhaftem Eichenholz ausgeführt, wobei an anderer Stelle ruhige Keramikfliesen dominieren, die sich auch an den Wänden wiederfinden. Eigens entworfene Einbaumöbel aus Beton und Eiche runden den Raumeindruck gelungen ab und setzen dezent platzierte Möbelstücke bewusst in Szene.
Von außen in seiner Gesamtheit betrachtet, sorgt das begrünte Dach in Kombination mit der Holzstruktur und der durchdachten Landschaftsgestaltung des Grundstücks optisch für ein Verschwimmen von Nah und Fern, wobei man nicht mehr sicher sein kann, was noch zum Garten und was schon zum Horizont gehört. Ein Grenzgänger auf allen Ebenen.
Einfamilienhaus Hlubocepy
Prag, Tschechien
Bauherr: Privat
Planung: RO_AR Szymon Rozwalka architects
Design Team: Szymon Rozwalka, Adéla Kyselová, Ada Rypl-Žabčíková, Jakub Staník, Jan Vojtíšek
Statik: STATIKA Olomouc
Haustechnik: Projekce TZB Prokeš
Landschaftsarchitekt: Flera
GU: Bursik Holding
Grundstücksfläche: 2.495 m2
Bebaute Fläche: 268 m2
BGF: 331 m2
Nutzfläche: 260 m2
Planungsbeginn: 2015
Fertigstellung: 2021
Text: Linda Pezzei
Fotos: Viola Hertelová
Herausforderungen gemeinsam meistern
Die österreichische Zementindustrie nimmt Themen wie Dekarbonisierung und Klimaschutz bereits seit Jahrzehnten ernst und befasst sich intensiv mit Transformationsprojekten. Auch in der 2022 veröffentlichten Roadmap sind die Schwerpunkte, Visionen und Ziele der Branche hin zu einer CO2-Neutralität klar dargelegt: „Die aktuellen Herausforderungen meistern wir gemeinsam – mit unseren Mitgliedern, mit der ausführenden Bauwirtschaft und mit den Planern. Dass Bauen mittlerweile ,neu gedacht` wird, belegen die hochqualitativen 56 Projekte, die beim Österreichischen Betonpreis eingereicht wurden – und natürlich die Siegerprojekte“, so Sebastian Spaun, Geschäftsführer der Vereinigung der Österreichischen Zementindustrie, VÖZ. 2022 war ein sehr intensives Jahr – geprägt von den Ausläufern der Corona-bedingten Lieferengpässe bis zu erhöhtem Kostendruck – nicht zuletzt durch die Energiekrise aufgrund des Angriffskrieges in der Ukraine.

Sebastian Spaun und Berthold Kren, Vereinigung der Österreichischen Zementindustrie. © Michaela Obermair
Eine überaus positive und optimistische Bilanz zieht der nun seit einem Jahr tätige VÖZ-Präsident Berthold Kren: „Die Themen Klimaschutz, Nachhaltigkeit, Ressourcenschonung und Flächeneffizienz sind für unsere Branche längst selbstverständliche Schwerpunkte, die wir bei jedem Projekt mitdenken. Der DC Tower 3 ‚District Living‘ ist für mich ein zukunftsgerichtetes Vorzeigebeispiel, wie wir unsere Städte nachverdichten und weiter bauen müssen: weniger Flächenverbrauch – mehr Effizienz.“
Spaun betont ebenso, dass das Thema Bodenschutz der Zementbranche ein wichtiges Anliegen ist: „District Living zeigt perfekt auf, dass Beton der einzige Baustoff ist, mit dem man bodenschonend in die Tiefe wie auch in die Höhe bauen kann. Wir werden weiterhin neu bauen, aber entscheidend ist das Wie – hier liefern unsere Mitglieder beeindruckende Lösungen.“ Ein erfolgreiches Praxisbeispiel für die Multifunktionalität von Beton sind Holzbeton-Lärmschutzwände, die von Smart Minerals hinsichtlich der Wiederaufnahme von CO2 untersucht wurden. Fazit: Mehr als 50 Prozent des bei der Zementherstellung verursachten CO2 wurden aus der Atmosphäre wieder aufgenommen. „Zukunftsweisend ist auch die neue Generation von CO2-reduzierten CEM II/C-Zementen, die im letzten Jahr bereits von drei Mitgliedsunternehmen auf den Markt gebracht worden sind“, spricht Spaun ein weiteres Beispiel an.
Spannendes Jahr 2022
2022 erwirtschaftete die österreichische Zementindustrie einen Umsatz von 599 Mio. Euro – um 15,7 Prozent mehr als 2021. Insgesamt produzierten die acht Zementwerke 2022 an die 5,2 Mio. Tonnen Zement – 6,3 Prozent weniger als im Vorjahr. Bezüglich Brennstoffe erweist sich die Branche als Musterschüler: Der Einsatz konventioneller Brennstoffe (Kohle, Heizöl etc.) wurde um fast 30 Prozent reduziert. Hingegen stieg die Ersatzbrennstoffrate auf 81,5 Prozent.
Die CO2-Emissionen sanken um 5,2 Prozent auf absolut 2,7 Mio. Tonnen, auch die CO2-Intensität, also das emittierte CO2 pro hergestellter Tonne Zement, konnte um mehr als 2 Prozent gesenkt werden und betrug 521 kg CO2 pro Tonne Zement.
Dass die Zementwerke die Maßnahmen für Klima- und Umweltschutz intensiviert haben, zeigen die Umweltschutzinvestitionen der Werke: 2022 wurden 22,6 Millionen Euro in Anlagen investiert (2021 waren es 17,2 Mio. Euro). Weiter hoch im Kurs steht auch die Kreislaufwirtschaft: 478 kg Sekundärstoffe (Ersatzrohstoffe und -brennstoffe) wurden bei der Herstellung pro Tonne Zement eingesetzt – im Jahr 2022 insgesamt 2,49 Mio. Tonnen – gegenüber dem Vorjahr ein Plus von 6,8 Prozent beim sogenannten „Ressourcenschonungsfaktor“.
Höchste Materialeffizienz
„Weniger ist mehr“ war die Devise im vergangenen Jahr. „Wir müssen gemeinsam an allen möglichen Schrauben drehen, um eine klimafitte Umwelt zu gestalten, das bedeutet nicht nur die Reduktion von CO2, sondern ebenso höchste Materialeffizienz“, ist Berthold Kren überzeugt. Es ist vor allem die österreichische Zementindustrie, die sich mit voller Kraft den Herausforderungen stellt. Ein Beispiel sind die deutlich Material-reduzierten Betondecken, die mittlerweile in Österreich wie auch in Deutschland – unterstützt durch das Know-how der TU Graz, Institut für Tragwerkslehre unter Stefan Peters – realisiert wurden. Über diese Erfolge konnte Spaun anlässlich einer Veranstaltung des Forschungsprojekts ReConstruct in Brüssel berichten. Die EU-Ambitionen in puncto Klimaschutz „Fit for 55“ zielen darauf ab, die Netto-Treibhausgasemissionen bis 2030 um mindestens 55 Prozent zu senken. Ein Ziel, zu dem sich alle Staaten der EU bekannt haben und das nur im Zusammenschluss mit allen Akteuren, auch der Bauwirtschaft, erreicht werden kann. „Deshalb schätzen wir auch den Austausch mit unseren Kollegen in Brüssel sehr, denn dort werden die Weichen für eine klimaneutrale Zukunft gestellt. Wir sind uns unserer Verantwortung bewusst: Weniger ist mehr – wir müssen das Bauen neu denken“, so Spaun. Die EU-Industriestrategie forciert die Transformation in Richtung Klimaneutralität. Der Austausch in Brüssel ist der Auftakt einer Reihe, in der innovative Ansätze für Gebäude, das Bauwesen und ganze Stadtquartiere erörtert werden und politische Änderungen analysiert werden, um sicherzustellen, dass das CO2-Reduktions-Potenzial ausgeschöpft werden können. Wie sich auch in der Diskussion zeigte, nimmt die österreichische Zementindustrie europaweit eine Vorreiterrolle bei beiden Themen ein.

Der DC-Tower-3, District living, ist ein Vorzeigebeispiel für Flächenschonung, Kreislaufwirtschaft und Nachhaltigkeit – und Ort der Bilanz-Pressekonferenz der Vereinigung der Österreichischen Zementindustrie. © Kurt Hoerbst
Flächenschonung am Beispiel des DC Tower 3
Im Anschluss an die Bilanz-Pressekonferenz führte Architekt Vinzenz Dreher, Dietrich|Untertrifaller Architekten, durch den Studentenwohnturm District Living, der auf einem bis dato ungenutzten Zwickelgrundstück mit 6.400 Quadratmeter Fläche errichtet wurde. Kleine Räume, dafür zahlreiche Gemeinschaftsräume ermöglichen in dem Gebäude das Miteinander und den sozialen Austausch. Beton ist hier der Alles-Könner-Baustoff, von den Tiefbauarbeiten für die Fundierung des 110 Meter hohen Gebäudes (624 Piloten wurden dafür in vier Monaten betoniert) bis hin zu den vielen Sichtbetonflächen. Die Untergeschoße wurden in Deckelbauweise – üblich im Tunnelbau – errichtet. Aber auch in puncto Ökologie wurde auf den Baustoff Beton gesetzt: Geheizt und gekühlt wird mit Bauteilaktivierung. Durch die Ortbetonbauweise war das Verlegen von Rohren in den Geschoßdecken einfach, zusätzliche Heiz- und Kühlsysteme werden für die 832 Apartments nicht benötigt. Höchste Effizienz erreichte das Planerteam auch durch die vorgefertigten Nasszellen: Die Badezimmer aus Betonfertigelementen kamen fix und fertig auf die Baustelle und wurden mit einem Kran eingehoben.
Zum Nachlesen: Die Kennzahlen 2022 www.zement.at/kennzahlen2022
Rückeroberung des Stadtraums
Das „Urban Farming Office“ von VTN Architects stellt einen Versuch dar, der Verstädterung von Vietnams Metropolen – wie auch am Standort in Ho-Chi-Minh-Stadt – sowie dem Verlust der Tropenwälder entgegenzuwirken. Ziel des Projekts ist es, der Stadt Grünflächen zurückzugeben und die autarke Lebensmittelproduktion zu fördern.
Das ehemalige Saigon ist mit seinen knapp neun Millionen Einwohnern nicht nur die größte Stadt Vietnams, sondern auch das wirtschaftliche Zentrum des Landes. Heute unter dem Namen Ho-Chi-Minh-Stadt bekannt, verfügt die Metropole – abgesehen von der Kernstadt – über kein zusammenhängendes Stadtgebiet und wird eher von ländlichen Siedlungsstrukturen dominiert. Trotz dieser etwas provinziellen Anmutung – wir reden hier immer noch von einem sehr dicht besiedelten Gebiet – leidet auch die als Verkehrsknoten und Kulturzentrum fungierende Industriestadt nördlich des Mekong-Deltas unter einem zunehmenden Verlust an unberührten Naturlandschaften.
Ein Problem, das auch die ortsansässigen VTN Architekten erkannt haben. Denn der Mangel an Grünflächen führt zu Luftverschmutzung, Smog, Überschwemmungen und Wärmeinseln. Den jüngeren Generationen, welche die städtischen Gebiete bewohnen, fehlt in Folge die Verbindung zur Natur. Darüber hinaus sieht sich das Land im Zuge einer wirtschaftlichen Neuausrichtung mit tiefgreifenden Veränderungen konfrontiert, denen letztlich die Umwelt Tribut zollen wird. Zunehmende Dürreperioden, Überschwemmungen und Versalzung gefährden außerdem die Nahrungsmittelversorgung.
Unter diesen Prämissen beschäftigt sich das Team von VTN Architects bereits seit 2006 mit innovativen Lösungsansätzen, setzt dabei auf üppig bepflanzte Mauern, hängende Gärten oder natürliche raumbildende Elemente wie Bäume, Steine und versunkene Landschaften. Traditionelle vietnamesische Bautechniken und lokale Materialien verweben die Architekten im Sinne einer „grünen Architektur“ mit modernen Materialien und Methoden zu einer zeitgenössischen und zukunftsgewandten Designsprache.
Wenig verwunderlich, dass das neue Headquarter von VTN Architekten daher den Mitarbeitern nicht nur ein inspirierendes und angenehmes Arbeitsumfeld bieten sollte, sondern unter dem Motto „Urban Farming Office“ einen Versuch wagt, die bestehende Situation bewusst zu ändern. Das Bürogebäude befindet sich in einem neu erschlossenen Gebiet in Ho-Chi-Minh-Stadt nahe des Song Sai Gon Flusses, der sich durch die Stadt schlängelt. Das Bauwerk dient als eindrucksvolle Demonstration, wie das vertikale Urban Farming der Zukunft aussehen kann: Die Fassade besteht aus hängenden Pflanzkästen, die verschiedenen lokalen Pflanzen einen Lebensraum mit ausreichend Sonnenlicht bieten. Neben der Möglichkeit, mitten in der Stadt Nutzpflanzen zu kultivieren, trägt die grüne Fassade bei minimalem Energieverbrauch zu einer positiven Einflussnahme auf die Umgebung bei. Hitzeinseln können dadurch reguliert, Feinstaub gebunden und angenehme innerstädtische Aufenthaltsräume geschaffen werden.
Ökologische Strategien
Die „vertikale Farm“ schafft aber auch ein angenehmes Mikroklima innerhalb des gesamten Gebäudes. In Verbindung mit der Verglasung filtert die Vegetation das direkte Sonnenlicht und reinigt die Luft, die durch die Verdunstung von gespeichertem Regenwasser abgekühlt wird. Um spätere Erweiterungsmöglichkeiten offen zu lassen, wurde die Nordwand relativ massiv ausgeführt und weist nur kleine Öffnungen zur Verbesserung der Querlüftung auf. Konzipiert als zweischichtiges Ziegelmauerwerk sorgt eine Luftschicht im Inneren der Wand für eine Verbesserung der Isolierung. All diese Maßnahmen tragen in ihrer Gesamtheit dazu bei, den erforderlichen Einsatz von Klimaanlagen zu reduzieren.
Landwirtschaftliches System
Die vertikale Vegetation fußt auf einer einfachen Konstruktionsmethodik und besteht aus einer Betonstruktur, Stahlträgern und modularisierten Pflanzkästen, die individuell eingehängt und je nach Höhe und Wuchsbedingungen der Pflanzen flexibel angeordnet werden können. Gemeinsam mit dem Dachgarten und den geerdeten Grünflächen sorgt das System für einen Grünanteil von knapp 190 Prozent gemessen an der Grundstücksfläche. Dies entspricht wiederum einer Ernte von ca. 1,1 Tonnen an Erträgen. Verschiedene einheimische essbare Pflanzen wie Gemüse, Kräuter und Obstgewächse spiegeln dabei die Artenvielfalt der Region wider und tragen zu einer Wertschätzung der produzierten Nahrungsmittel bei. Der Anbau erfolgt – selbstverständlich – rein biologisch.
Urban Farming Office
Ho-Chi-Minh-Stadt, Vietnam
Bauherr: VTN Architects
Planung: VTN Architects (Vo Trong Nghia Architects)
Mitarbeiter: Vo Trong Nghia, Nobuhiro Inudo, Tran Vo Kien, Le Viet Minh Quoc, Nguyen Tat Dat
Grundstücksfläche: 300 m2
BGF: 1.386 m2
Fertigstellung: 08/2022
Text: Linda Pezzei
Fotos: Hiroyuki Oki
Weniger ist mehr: Bauen neu denken
Weniger Energie, weniger CO2-Emissionen, mehr Kreislaufwirtschaft, weniger Ressourcenverbrauch – mehr resilientes Bauen: Das sind die Stichworte, die für die Vereinigung der Österreichischen Zementindustrie, VÖZ, entlang der Leitlinien ihrer Roadmap oberste Priorität haben.
„Welche Baustoffe sind solche Alleskönner wie Zement und Beton? Wir können mehr mit weniger bauen, mit unserem Baustoff können Flächen geschont werden und unsere Gebäude halten länger als 100 Jahre, wie die Gründerzeit- und Eisenbetonbauten unter Beweis stellen“, so Sebastian Spaun, Geschäftsführer VÖZ, anlässlich einer hochkarätig besetzten Podiumsdiskussion unter der Leitung von Christian Egenhofer vom Center for European Politics, CEPS, der Initiative ReConstruct und dem Wifo in Brüssel. CEPS ist ein europäisch ausgerichteter Think Tank, der vor allem Vorschläge und Klimaschutzbemühungen auf EU-Ebene diskutiert und unterstützt. Katharina Knapton-Vierlich, Leiterin der Abteilung Nachhaltiges Bauen, GD Grow, Europäische Kommission, plädierte in ihrer Keynote für die intensive Zusammenarbeit aller Entscheidungsträger für ein kohlenstoffarmes, digitales und resilientes Bauen.
Die EU-Ambitionen in puncto Klimaschutz „Fit for 55“ zielen darauf ab, die Netto-Treibhausgasemissionen bis 2030, um mindestens 55 Prozent zu senken. Ein Ziel, zu dem sich alle Länder der EU bekannt haben und das nur im Zusammenschluss mit allen Akteuren der Bauwirtschaft erreicht werden. „Deshalb schätzen wir auch den Austausch mit unseren Kollegen in Brüssel sehr, denn dort werden die Weichen für eine klimaneutrale Zukunft gestellt. Wir sind uns unserer Verantwortung bewusst: Weniger ist mehr – wir müssen das Bauen neu denken“, so Spaun. Die EU-Industriestrategie forciert die Transformation in Richtung Klimaneutralität. Der Austausch in Brüssel ist der Auftakt einer Reihe, in der innovative Ansätze für Gebäude, das Bauwesen und ganze Stadtquartiere erörtert werden und politische Änderungen analysiert werden, um sicherzustellen, dass das CO2-Reduktions-Potenzial wie auch die Optionen durch Kreislaufwirtschaft ausgeschöpft werden können. Wie sich auch in der Diskussion zeigte, nimmt die österreichische Zementindustrie europaweit eine Vorreiterrolle bei beiden Themen ein.
Materialeffizienz als Ziel
Im Zentrum der Gespräche stand der Weg zum klimaneutralen Bauen, der, so ist auch Stefan Schleicher, Wegener Center Universität Graz, Wifo und Initiator von ReConstruct, überzeugt, sowohl Energie- und Materialeffizienz als auch eine gänzlich neue Form des Carbon-Managements zum Ziel haben muss. Marcella Saade, stellvertretende Direktorin, Graz Center für Nachhaltiges Bauen, Technische Universität Graz präsentierte eindrucksvolle Praxisbeispiele materialeffizienter Deckenkonstruktionen, welche mit 3D-gedruckten Verdrängungskörpern schon heute bis zu 40 Prozent CO2-Einsparung möglich machen. Die materialoptimierten und bauteilaktivierten Betondecken zeigen, was alles heut schon Realität ist – und da muss noch mehr gehen, wenn wir die Mobilität, Wohnen und Arbeiten gemeinsam denken“, meint Schleicher. Betondecken, die aus statisch optimierten Fertigteilen errichtet werden, eignen sich ebenso für die Sanierung, wie das Praxisbeispiel, das Bürogebäude Francis im Althan Quartier in Wien Alsergrund zeigt, wie auch die Decke beim neugebauten Wirtschaftshof Bludenz.
Die ressourcenschonende Umnutzung des Bestandes bei der Projektentwicklung des Althan Quartiers spart laut einer Nachhaltigkeitsstudie der Werner Sobek AG rund 67 Prozent an CO2-Emissionen ein. Der Bauherr 6B47 setzt auf Nachhaltigkeit, das Stahlbetonskelett des Gebäudes bleibt erhalten, aber eine neue Decke für die drei zusätzlichen Geschosse – mit Bauteilaktivierung – wird errichtet. Die rund 8.500 Quadratmeter große, vorgefertigte Kastendecke vom Typ Ceiltec®-B wurde von dem deutschen Unternehmen Innogration geplant und realisiert, das sich auf Deckensysteme mit Bauteilaktivierung und mit komplett integrierter Gebäudetechnik in einem schlanken, flexiblen System aus Beton spezialisiert hat. Mit der Sandwich-Konstruktion erreichte Innogration 1.600 Tonnen CO2-Reduktion. Die schlanke Betonkonstruktion büßt nichts an Tragfähigkeit ein, trägt aber maßgeblich zum Klimaschutz bei.
Bauteilaktivierung löst Abhängigkeit von fossiler Energie
Die Bauteilaktivierung – in Kombination mit erneuerbaren Energien – ist eines der Highlights sektorenübergreifender Innovationen, welches Betontechnologie, Energie- und Gebäudetechnik zusammenführt, wie Sebastian Spaun in der Diskussion betonte: „Wir nützen dabei die Speicherfähigkeit von Beton, simpel und ohne komplizierter Technologie und machen das Gebäude zur Energiedrehscheibe in nachhaltigen, sich selbst versorgenden Stadtquartieren. Dass die Innovation bereits im geförderten Wohnbau angekommen ist – ein aktuelles Beispiel ist die Wohnhausanlage Käthe-Dorsch-Gasse 17 im 14. Bezirk, stellt einmal mehr unter Beweis, dass das fossilfreie Heizen und Kühlen keine Luxuslösung ist.“
Weitere hoch spannende Einblicke lieferten Peter Flotzinger, CEO Senftenbacher, Zsolt Toth, Teamleiter, Buildings Performance Institute Europe (BPIE), und Rebecca Lamas, Sustainability & Innovation Manager, Goodman Continental Europe & Associate, School of Transnational Governance, EUI, Florenz.
Die Diskussion in Brüssel kann nachgehört werden: https://www.youtube.com/c/CEPSThinkTank
Verbundstofffrei & rückbaubar
Im Berliner Süden entwarfen Praeger Richter Architekten mit dem Ausbauhaus Südkreuz ein Gebäude in Holz-Beton-Hybridbauweise und berücksichtigten dabei den gesamten Lebenszyklus der eingesetzten Materialien. Auf sieben Geschossen kombiniert der Bau qualitativen und gleichzeitig erschwinglichen Wohn- und Gemeinschaftsraum und lässt sich dank verbundstofffreiem Innenausbau zukünftig einfach um- oder zurückbauen.
Das Projekt entstand in der sogenannten Schöneberger Linse, dem Gelände zwischen Bahnhof Südkreuz und S-Bahnhof Schöneberg, das sukzessive in ein vielfältiges, urbanes Stadtquartier transformiert wird. Eingefasst von den Nachbarbauten der Blockrandstruktur wächst das Ausbauhaus über sieben Geschosse in die Höhe. Es umfasst 13 Eigentums- und drei förderfähige Wohnungen mit zwischen 38 und 130 Quadratmetern Fläche. Im 4,5 Meter hohen Eingangsniveau sind Gewerbeflächen für Start-ups aus dem Kiez und den kulturellen und sozialen Austausch sowie ein kollektiver Garten untergebracht. Ein gemeinschaftliches Gästeappartement mit Terrasse im Dachgeschoss komplettiert das Raumprogramm. An beiden Fassaden erstrecken sich über die gesamte Breite Balkone und Loggien mit bodentiefen Fenstern. Sie erweitern den Wohnraum nach draußen und verbessern die Wohnqualität. Für einen Farbklecks sorgen rote Sonnenschutzvorhänge aus landwirtschaftlichem Lowtech-Textil. Diese laufen auf externen Schienen, lassen sich von den Bewohnern bei Bedarf auf- und zuziehen und verleihen dem Gebäude lebendige Außenansichten.
Das Planerteam agierte mit Weitblick und bedachte mit seinem nachhaltigen Konzept für das Wohn- und Gemeinschaftshaus nicht nur heutige, sondern auch zukünftige Bedürfnisse. Neben der kosteneffizienten Umsetzung des Neubaus lag der Fokus vor allem auf der Möglichkeit zur späteren Umgestaltung. Dafür wurde das Gebäude als Materiallager konzipiert. Die Baumaterialien wählte man anhand ihrer Rückbaubarkeit und Wiederverwendung aus und erfasste alle verwendeten Einzelteile mittels BIM-Technologie. So können die Produktdaten der einzelnen Komponenten selbst Jahrzehnte später schnell abgerufen werden.
Brandwände, Geschossplatten und der zentrale Erschließungskern sind als langlebige Stahlbeton-Tragstruktur ausgeführt. Diese bildet die Grundlage für den flexiblen Kern und bleibt in den Nutzflächen teils in Form von rohen Oberflächen sichtbar. Bei der Fassade handelt es sich um eine nicht-tragende, komplett rückbaubare Holzkonstruktion. Sie besteht aus hinterlüfteten, recyclefähigen Ständerwänden mit Holzfaserdämmung und einer vorvergrauten Lärchenschalung. Im Inneren setzte man weitgehend auf verbundstofffreie, 100 % rückbaubare Materialien, die künftig eine sortenreiche Trennung möglich machen. Deshalb wurde auch ausschließlich geschraubt, gelegt und gesteckt. Die trocken montierten Zwischenwände errichtete man auf der Rohdecke, bevor man den schwimmend verlegten Fußbodenaufbau mit Eichenparkett fertigstellte. Wo nötig, ergänzte man die leimfreien Module um nachwachsende Baustoffe. Das Ergebnis ist eine günstigere Alternative zu herkömmlichen Verbundkonstruktionen, mit der das Ausbauhaus am Südkreuz Berlin gleichzeitig den Grundstein für eine einfache – partielle oder gänzliche – Nutzungsänderung in der Zukunft legt.
Text: Edina Obermoser
Fotos: Andreas Friedel
Glasfaserbeton prägt Skyline
Im Zentrum von New York City erhebt sich ein beeindruckendes Wohngebäude mit 55 Stockwerken und rund 205 Metern Höhe: In der 5th Avenue punktet das Hochhaus mit einem aufregenden Panoramablick auf die Skyline von Manhattan und einer effektvollen Fassade aus Glas und dunklen Betonlisenen. Die großzügigen Glasflächen werden durch Längsrippen strukturiert und eingerahmt. Die ausgeprägte Vertikalität setzt gekonnt Akzente an der Außenhaut.
Zum Einsatz kamen bei diesem Projekt die Glasfaserbeton-Platten vom österreichischen Fassadenspezialisten Rieder. Nicht nur die Optik macht diese Platten zur optimalen Lösung für Gebäudehüllen mit derart hohen Ansprüchen, auch die technischen Details überzeugen: Der geringe Wartungsaufwand, die Langlebigkeit, das vergleichsweise geringe Gewicht, die einfache Installation sowie der Faktor Nachhaltigkeit konnten den international anerkannten Architekten Rafael Viñoly von den 13 mm dünnen Fassadenplatten überzeugen. Und so zieren nun über 13.000 m2 concrete skin Elemente von Rieder den Wohn-Wolkenkratzer an der 5th Avenue.
Rieder hat es sich zur Aufgabe gemacht, die Welt des Betons auf ganz andere Art und Weise erlebbar zu machen. Mit den filigranen Betonlösungen für die Gebäudehülle steht der Werkstoff für vielerlei Anwendungsformen zur Verfügung. Die Elemente bieten eine Vielzahl unterschiedlicher Farben, Formen, Oberflächen und Texturen für die flexible Umsetzung unzähliger Designs und eröffnen neue Möglichkeiten im Umgang mit Beton.
Auf zu neuen Ufern
Lafarge Österreich und Perlmooser Beton werden ab Mai 2023 unter dem Firmennamen “Holcim Österreich” auftreten. Beide Unternehmen gehören seit 2015 zur Holcim-Familie, die auf Nachhaltigkeit als integrierten Bestandteil der operativen Tätigkeit setzt. Als weltweit führender Anbieter von innovativen und nachhaltigen Baulösungen hat sich Holcim dazu verpflichtet, eine wesentliche Rolle im Übergang in eine Netto-Null-Zukunft zu spielen. Teil dieser Zukunft ist ein einheitlicher Markenauftritt, der ab Mai 2023 unter dem Namen “Holcim Österreich” umgesetzt wird.
CEO Berthold Kren: „Der heutige Tag markiert einen Meilenstein für unser Unternehmen in unserer Transformation zum österreichischen Innovationsführer für nachhaltige Baulösungen. Wir sind entschlossen, CO2-neutrales und zirkuläres Bauen zu beschleunigen und damit einen wesentlichen Beitrag zur Netto-Null-Zukunft zu leisten.” “Mit unserer neuen Identität signalisieren wir, dass wir uns dem Fortschritt für die Menschen und den Planeten verschrieben haben,“ so Kren weiter.
Das Unternehmen setzte diesbezüglich bereits starke Zeichen: so wurde mit dem Launch des neuen grünen Produktportfolios unter der internationalen Holcim-Marke “ECOPlanet” bereits eine neue Ära in der CO2-ärmeren Zementproduktion eingeleitet. Gleichwohl hat Perlmooser Beton die ebenso internationale Holcim-Marke “ECOPact” erfolgreich am Markt lanciert.
Zirkuläres Dekarbonisierungsmodell
Mit der Einführung der neuen Identität unterstreicht das Unternehmen den Fokus auf sein zirkuläres Dekarbonisierungsmodell, das aus folgenden vier Säulen besteht:
Grüne Werke (Dekarbonisierung der operativen Einheiten)
Besser mit weniger bauen (Dekarbonisierung der Bauwirtschaft)
Kreislaufwirtschaft (Urban mining)
Gebäude nachhaltig gestalten (Dekarbonisierung von Städten)
Auf dem Weg zu Netto-Null wird “Holcim Österreich” intensiv daran arbeiten, sämtliche Prozesse entlang der Wertschöpfungskette nachhaltiger zu gestalten. Den Hauptfokus setzt das Unternehmen dabei auf die Reduktion von CO2 in der Produktion. Gleichzeitig wird die Energieeffizienz der Anlagen optimiert, der Ersatz fossiler Energieträger ist nahezu abgeschlossen und die Arbeiten an neuen innovativen Technologien zur Reduktion der CO2-Emissionen durch CO2-Abscheidung werden aktiv vorangetrieben.
Berthold Kren erläutert: “Diese Technologien bieten vielversprechende Möglichkeiten zur Bekämpfung des Klimawandels, etwa in dem CO2 in industriellen Prozessen abgeschieden und danach als Rohstoff zu synthetischen Kraftstoffen oder Kunststoffen verarbeitet oder für die Rekarbonatisierung des Betons genutzt wird.”
Bei der Rekarbonatisierung des Betons arbeitet “Holcim Österreich” an einem neuen Verfahren und bringt noch im zweiten Quartal dieses Jahres eine Innovation auf den Markt, die das zirkuläre Bauen wesentlich vorantreiben wird.
Kategorie: Beton, Kolumnen, Produktnews, Sonderthema






















































