Austausch, Aktivitäten, Andacht & Arbeit
Mit dem Greyfriars Charteris Centre revitalisierten, sanierten und erweiterten Konishi Gaffney Architects einen zusammengewürfelten, historischen Gebäudekomplex im Zentrum von Edinburgh. Sie verwandelten die einstige Kirche und einen angrenzenden Bau in ein neues Gemeindezentrum mit Veranstaltungsbereichen sowie flexiblen Büro- und Arbeitsflächen und einen Anlaufpunkt für Gläubige.
Wie viele andere Bauwerke in der Metropole erinnert das Projekt an den namensgebenden Theologen Archibald Charteris und blickt auf eine bewegte Vergangenheit zurück. Das kleinteilige Ensemble besteht aus der 1891 errichteten Krankenpflegeschule St. Ninians Centre und der Charteris Memorial Church aus 1912 (später auch als Kirk o‘Field Church und Kirk o‘Field Centre bezeichnet). Das benachbarte Deaconess Hospital – welches inzwischen vom Krankenhaus zum Studentenwohnheim umfunktioniert wurde – geht ebenso auf Charteris zurück. Gotteshaus und Schule entwickelten sich über die Jahre hinweg zu einer der größten, sakralen Gemeinden der schottischen Kirche. Seit 2016 nutzte man die beiden Bauten schließlich als Gemeinschaftszentrum für unterschiedlichste Glaubensgruppen. Im Zuge dessen sollten sie saniert, modernisiert und an ihre neue Funktion angepasst werden. Das in Edinburgh ansässige Büro Konishi Gaffney Architects konnte den 2017 ausgerufenen Wettbewerb für sich entscheiden.
Unauffällig ins Stadtgefüge integriert und über mehrere Ebenen fast unsichtbar erschlossen, sollten die neogotischen Kirchengebäude durch den Umbau einen einheitlichen und vor allem barrierefreien Hauptzugang erhalten. Dafür entwarfen die Planer einen neuen Verbindungsbau, der sich zwischen die Straßenansichten der beiden Bestandsgebäude einfügt und das Zentrum nach außen hin repräsentiert. Der neue Trakt ist als Holzkonstruktion umgesetzt. Eingefasst von der Kirche mit ihrem charakteristischen Turm und St. Ninians, hebt er sich mit weißen Terrazzopaneelen deutlich von den alten Backsteinmauern seiner Nachbarn ab. Schmale Lamellen in zwei verschiedenen Abständen legen sich vor die Ansicht und verleihen ihr Struktur und Rhythmus. Aus acetyliertem Accoya-Holz gefertigt, sind die Lisene sowohl langlebig und robust als auch nachhaltig. Im unteren Drittel springt die Fassade im Bereich des Zugangs leicht zurück und schafft eine geschützte Eingangssituation. Links und rechts ziert hier ein Relief mit skulpturalem Charakter die Straßenfront. Es stammt vom Künstler Steven Blench von Chalk Plaster, der damit traditionelle Merkmale der georgianische Architektur aufgreift. Mit seinem skulpturalen Charakter soll das texturierte Muster eine moderne Interpretation der rustikalen Steinsockel im historischen Stadtzentrum darstellen.
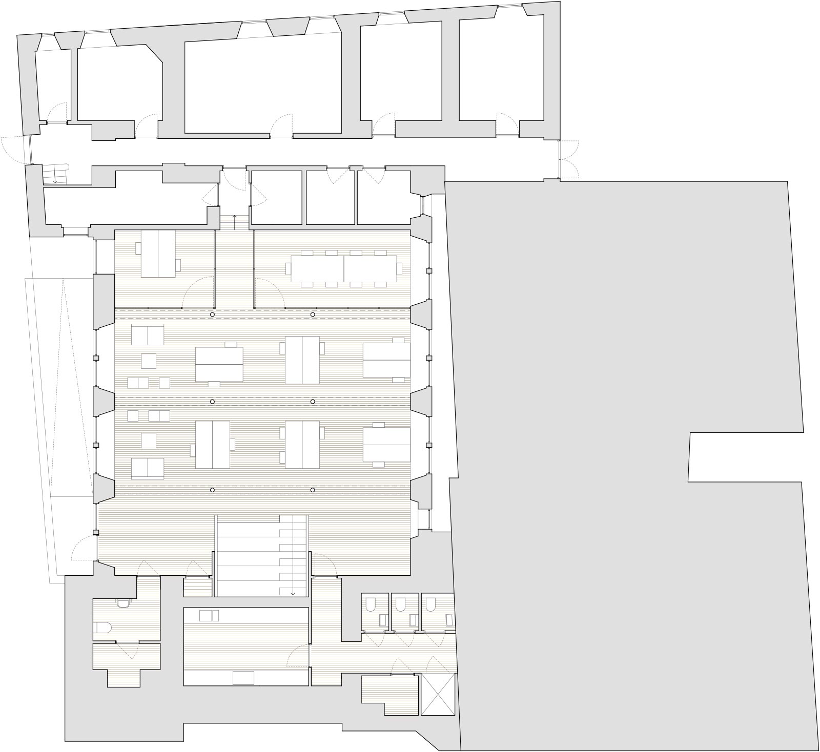
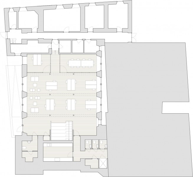
Der kompakte Neubau beinhaltet ein dreigeschossiges Atrium, welches von oben belichtet wird und mit einem Lift in alle Etagen führt. Eine Eingangshalle empfängt Besucher und verknüpft die einzelnen Bestandteile des Komplexes, die sich in horizontaler und vertikaler Richtung zur Lobby hin öffnen. Während außen die Spitzbogenfenster teils nach unten hin verlängert wurden, versuchte man drinnen die kleinteiligen Strukturen aufzubrechen und zur Straße hin transparenter zu gestalten. Tiefe Ein- und Ausblicke sollen die Aufmerksamkeit von Passanten wecken und neugierig machen. Im Bereich der ehemaligen Kirche entstanden auf drei Stockwerken ein Coworking-Space, ein großer Veranstaltungssaal sowie ein Andachtsraum. Linker Hand schließt in Form einer breiten Treppe das neue Herzstück des Greyfriars Charteris Centre direkt an das Entree an. Sie gibt bereits von außen den Blick in die untere Etage frei und verbindet die Arbeitsbereiche im Untergeschoss mit den darüberliegenden Funktionen. Der Treppenraum aus Holz dient mit Sitzstufen nicht nur der Zirkulation, sondern auch als sozialer Treffpunkt des Gemeindezentrums. Multifunktionale Gemeinschaftsflächen in den übrigen Gebäudeteilen komplettieren das bunte Raumprogramm.
Den Innenausbau realisierte das Planerteam in enger Zusammenarbeit mit den lokalen Tischlermeistern von Old School Fabrications weitgehend in Holz. Sämtliche neu ergänzten Elemente – wie die zentrale Treppe, Wand- und Deckenverkleidungen sowie Einbauten und Möbel – wurden in dem Werkstoff umgesetzt. Amerikanischer Ahorn, Nussbaum, Birkensperrholz und schlichtes Weiß prägen die natürliche Materialpalette und bilden einen hellen Kontrast zur historischen Bausubstanz. Auch die gewölbte Kieferndecke des presbyterianischen Kirchenschiffs befreite man von ihrer dunklen Beize. In Kombination mit großflächigen Verglasungen und gezielter Beleuchtung zeigt sich der fast 11 m hohe Veranstaltungssaal nun freundlich und einladend. Über dem Eingang trennt in der Empore ein leichter, lamellenartiger Holzvorhang den intimen, nicht-konfessionellen Gebetsraum vom Saal ab. Er lässt subtile Blickbezüge zu und sorgt gleichzeitig für die nötige Privatsphäre der Betenden. Der lichtdurchflutete Coworking-Space im Souterrain lässt sich über Holztrennwände vom Erschließungsbereich abgrenzen und flexibel bespielen. Schmale, gelbe Säulen aus Gusseisen zonieren den Raum. Mit den schwarzen Sprossen der Glaswände, die im hinteren Teil zwei Büros einfassen, vermitteln sie ein industrielles Flair.
Neben der umweltfreundlichen Materialwahl achtete man auch auf die Energieeffizienz des Projekts: In den Bestandstrakten des ehemaligen Kirchenkomplexes wurden die Fenster ersetzt und das Ensemble an aktuelle thermische und akustische Anforderungen angepasst. Fußböden und Dachraum dämmte man komplett neu und senkte somit den energetischen Bedarf deutlich. Ein neues Heizungssystem sowie sparsame LED-Beleuchtung und eine 24 kW-Solaranlage auf dem südlichen Dach runden das nachhaltige Sanierungskonzept ab.
Konishi Gaffney Architects vereinten mit ihrem Entwurf für das Greyfriars Charteris Centre nicht nur Alt und Neu, sondern auch Innen und Außen zu einer harmonischen Gesamtkomposition. Sie ergänzten den einstigen Kirchenkomplex um einige Layer, ohne dabei seine Geschichte zu überdecken. Stattdessen setzen hinzugefügte Elemente bewusste Akzente, welche den Bestand respektvoll unterstreichen. Die einzelnen Funktionen wurden innerhalb der historischen Gebäude schlüssig neu organisiert und mit einem ästhetischen Design einheitlich zusammengefasst. Besonders hervorzuheben ist die Liebe zum Detail: Von perfekt auf die alten Mauern abgestimmten Sitzbänken bis hin zu den behutsam ausgetauschten Fenstern, erregen kleine Finessen die Aufmerksamkeit. Daraus ergibt sich ein raffinierter Ort, der – gemäß den Angaben auf der Website des Gemeindezentrums – Menschen unabhängig von Kultur, Herkunft oder Glaubensbekenntnis einlädt und Platz für gemeinsamen Austausch, Aktivitäten, Andacht und Arbeit bietet.
Greyfriars Charteris Centre
Edinburgh, Schottland
Bauherr: Greyfriars Charteris Centre
Planung: Konishi Gaffney Architects
Statik: Entuitive, Forshaw Gauld
TGA-Planung: Irons Foulner Consulting Engineers
Tischlerarbeiten: Old School Fabrications
Skulpturale Fassade: Chalk Plaster (Steven Blench)
Nutzfläche: 740 m2
Planungsbeginn: Nov. 2017
Fertigstellung: Dez. 2021
Baukosten: £1.7 Mio.
Text: Edina Obermoser
Fotos: Nanne Springer
Kategorie: Projekte










