(De- und Re-)Montiert in die Zukunft
Rohstoff-, Energie- und Wasserverbrauch, Abfall und CO2-Ausstoß – sie alle sind Teil des Bauwesens. Die Niederlande gehen in Sachen Progressivität in der Branche mit bestem Beispiel voran: Bis 2050 wollen sie den Sektor nachhaltiger gestalten und sämtliche Gebäude in eine Kreislaufwirtschaft einbinden. Das Building D(emountable) ist die Antwort der Delfter Architekten cepezed. Es lässt sich vollständig zerlegen und ebenso einfach an anderer Stelle bei Bedarf wieder aufbauen.
Das modulare Projekt entstand auf dem ehemaligen Areal der Technischen Universität Delft. 2012 erwarb das holländische Planerbüro cepezed das Grundstück mit den historischen Laborgebäuden und transformierte es Schritt für Schritt in einen Kreativcluster und Anlaufpunkt für verschiedene Firmen. Fast der ganze Komplex konnten im Zuge der Revitalisierung erhalten werden, lediglich ein desolater Bau musste weichen. An seiner Stelle realisieren die Architekten den Neubau, der als Wegweiser für die Umsetzung der nachhaltigen Ziele für die Bauszene des Landes dienen soll und gleichzeitig zu ihrem neuen Arbeitsplatz wird.
Das Building D(emountable) fügt sich behutsam in die Bestandsstruktur ein. Seine Außenmaße gleichen mit 11 auf 21.5 Metern denen seines Vorgängers. cepezed beschäftigt sich seit Jahren mit der Planung modularer, demontierbarer Gebäude und kann daher auf einiges an Erfahrung zurückgreifen. Die Architekten legen großen Wert auf einfache Geometrien und minimalen Materialaufwand und entwickeln den Baukörper als modularen Leichtbau. Bis auf die Betonbodenplatte sind alle Elemente vorgefertigt und müssen vor Ort nur noch montiert werden.
Das feingliedrige Haupttragwerk aus Stahl ergänzen Zwischendecken und ein Dach aus Furnierschichtholz, in deren schlankem Aufbau sich die Gebäudeinstallationen verbergen. Trockenestrichplatten ermöglichen die geringe Höhe der vorgefertigten Einzelteile. Sie bilden die oberste Schicht der Geschossplatten und sind aus zum Teil recyceltem PVC hergestellt. Da die Glashülle, die den Bau rundum abschließt, rahmenfrei ausgeführt ist, mussten Stahl- und Fassadenbauer besonders eng zusammenarbeiten. Die Doppelverglasung schließt direkt an die Stahlstruktur an und erlaubte nur sehr geringe Bautoleranzen.
cepezed ist nicht nur für das Aussehen des Gebäudes verantwortlich. Zum Büro gehören mit Architektur, Projektentwicklung und Innenraumgestaltung mehrere verschiedene Abteilungen. Sie alle vereinten die Planung unter einem Dach und deckten sie bis hin zur Ausführung komplett ab. Konstruktion und Design wurden Hand in Hand entwickelt und optimiert. Bei den externen Beauftragten handelte es sich um langjährige Partner. In Kombination mit der vorgefertigten Trockenbauweise dauerte der Bauprozess deshalb nicht länger als ein halbes Jahr. Die tragende Struktur des innovativen Gebäudes war mit dem Stahlskelett und den Holzböden sogar innerhalb von nur drei Wochen fertiggestellt.
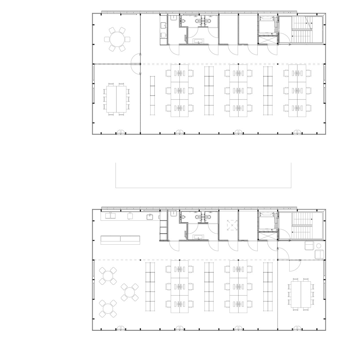
Jedes der vier Geschosse im Building D(emountable) bietet ca. 200 m2 Fläche, die flexibel genutzt werden kann. Sie ist als großer Open-Space-Bereich gestaltet und kann mit raumhohen Vorhängen optisch und akustisch in privatere Zonen abgetrennt werden. Die Architekten teilen sich die Arbeitsplätze derzeit mit dem Web- und App-Entwickler 9to5 Software und Triumph Studios, einem Spieleentwickler.
Mit der nach Nordosten orientierten Längsfassade dockt das Gebäude an den Bestand an. Neben dem Erschließungsturm an der nördlichen Gebäudeecke befinden sich hier, entlang der geschlossen gehaltenen Ansicht, die administrativen Räume. Der schwarze Einbau erstreckt sich über alle Stockwerke und schützt vor ungewollten Einblicken. Im Inneren wird die Konstruktion des Baus gleichzeitig zum gestalterischen Element und verleiht ihm seinen Charme. So zeichnet sich zum Beispiel entlang der Untersicht der Zwischendecken die gerippte Holzstruktur der vorgefertigten Module ab. Die Glasvorhangfassade sorgt nicht nur für spannende Blickbeziehungen zwischen Innen- und Außenraum, sondern sorgt außerdem für eine helle, freundliche Arbeitsatmosphäre in den Büroräumen. Während vertikale Lüftungselemente manuelle Lüftung ermöglichen, dienen die an den Stahlprofilen befestigten Rollläden bei Bedarf als Sonnenschutz.
Um Material und damit Gewicht einzusparen, wurde das Gebäude als ein einziger Brandabschnitt konzipiert. Lediglich das Treppenhaus ist abgetrennt und feuerfest. In die Decken integrierte Klimaanlagen sorgen in den einzelnen Geschossen für ein angenehmes Raumklima. Sie sind außerdem für die Beheizung des Bürohauses zuständig. Ein Wärmetauscher komplettiert die Gebäudetechnik.
Langlebigkeit, Sanierung, Umnutzung und Recycling, das sind die Kernpunkte des „Circular Netherlands“-Plans. Sie bieten spannende Herausforderungen für die Architektur und hätten auch in anderen Ländern durchwegs positive Auswirkungen auf die Bautätigkeiten. Sollte Building D(emountable) eines Tages ausgedient haben, kann es dem Cradle-to-Cradle-Prinzip entsprechend zur Gänze rückgebaut und recycelt, oder an einem neuen Ort wieder montiert werden. Projekte wie dieses machen Hoffnung auf mehr zukunftsweisende, nachhaltige Konzepte. Sie erfordern zwar auf kurze Sicht größere Investitionen, wirken sich aber vor allem auf lange Sicht sowohl auf die Geldbörse als auch auf das Klimabudget positiv aus.
Building D(emountable)
Delft, Niederlande
Bauherr: Jan Pesman
Planung: cepezed
Statik: IMd Raadgevende Ingenieurs
Bauingenieur: Nelissen ingenieursbureau
Grundstücksfläche: 242 m2
Nutzfläche: 968 m2
Planungsbeginn: September 2016
Bauzeit: 6.5 Monate
Fertigstellung: Dezember 2019
Text: Edina Obermoser
Fotos: Lucas van der Wee | cepezed
Kategorie: Projekte






















