Kultur unterm Satteldach
Durch den Rückbau eines bestehenden Hotelgebäudes konnte der so entstandene wertvolle innerstädtische Bereich im oberpfälzischen Berching für den Bau einer neuen Kulturhalle genutzt werden. Die Planer des ortsansässigen Büros Kühnlein Architektur interpretierten die traditionellen Merkmale der historischen Scheunen neu und schufen einen modernen Ort der Kultur unter einem ästhetisch ansprechenden Satteldach.
Berching ist eine bayerische Stadt im Landkreis Neumarkt in der Oberpfalz, die sich selbst als „Kleinod des Mittelalters“ bezeichnet. Tatsächlich ist der 9.000-Seelen-Ort – auch dank seiner Lage am Main-Donau-Kanal – ein beliebtes Ausflugsziel für Touristen. Mit der neuen Kulturhalle „Christoph Willibald Gluck” lohnt sich ein Besuch nun auch für Architekturinteressierte moderner Bauten.
Als es darum ging, für die Kulturfabrik Berching einen Standort für den Ersatzneubau zu finden, griff die Stadt bei einer innerstädtischen Fläche mit leerstehender Gebäudesubstanz zu. Ein Glücksgriff. Denn dank des Rückbaus der dort bestehenden Hotelgebäude aus den 1980er Jahren, konnte der wertvolle innerstädtische Bereich an der Sulz nun neu geordnet werden. Die ortsansässigen Architekten des Büros Kühnlein nahmen sich dieser Aufgabe an.
Das neue Gebäude dient als öffentlicher Kulturraum und Treffpunkt, in dem Theater, Konzerte, Empfänge und andere kulturelle Anlässe stattfinden können. Auch für Tagungen, Produktpräsentationen und Ausstellungen lassen sich die Räumlichkeiten von externer Seite mieten. Zwischen der Halle, dem mittelalterlichen Spitalsgebäude und dem Biergarten des Hotels Post, entstand zugleich ein belebter Vorplatz, der sich im Zuge der Neugestaltung des tieferliegenden Sulzufers mittlerweile zu einem äußerst attraktiven Außenraum für Bürger und Besucher entwickelt hat. So strahlt der Neubau der Kulturhalle als zentrales städtebauliches Element auf die gesamte Umgebung aus – und lädt seine Besucher mit seinem großzügigen Vordach als eine Geste des Willkommens zum Nähertreten ein.
Bei der architektonischen Umsetzung orientierten sich die Gestalter an den traditionellen Merkmalen der historischen Scheunen der Region. Das markant ausgebildete, ziegelgedeckte Satteldach fügt sich aber nicht nur harmonisch in die bestehenden Strukturen ein, es ermöglicht auch ein überraschendes Gefühl von Großzügigkeit im Inneren. Bei der Materialwahl setzte man – wo möglich – auf naturbelassene Hölzer. Das Bauholz stammt folgerichtig ausschließlich aus dem eigenen städtischen Wald. Für Dach- und Giebelflächen wurde Fichte als Konstruktionsholz gewählt, bei der auffallenden Fassadenverkleidung des Giebels entschieden sich die Planer für die Schwarzkiefer, die in Gitterform angebracht wurde – wiederum eine Reminiszenz an die alten Bauernhöfe vor Ort. Die Hölzer wurden mit einem traditionellen, giftfreien Quark-Kaseinanstrich behandelt.

“Hier ist es der Stadt Berching gelungen, den historischen Ortskern mit dem Neubau der Kulturhalle zu beleben und aufzuwerten. Trotz der stattlichen Kubatur fügt sich der Neubau in die Altstadt und positioniert sich mit zeitgenössischen Architekturdetails.”
Michael Kühnlein jun.
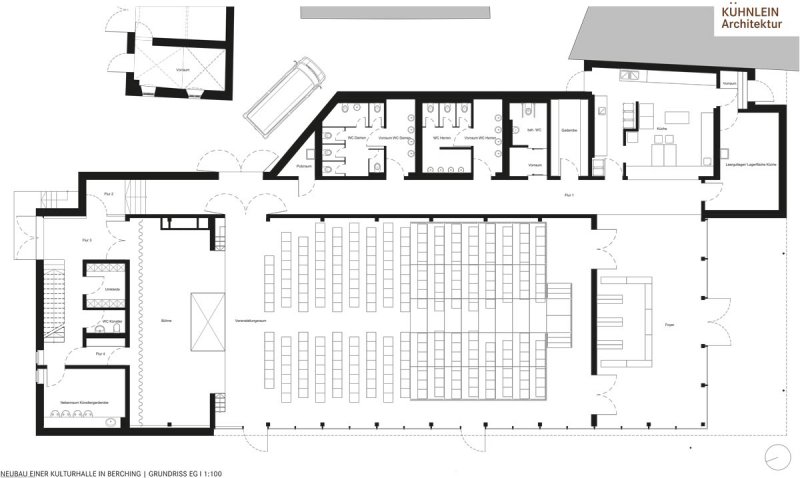
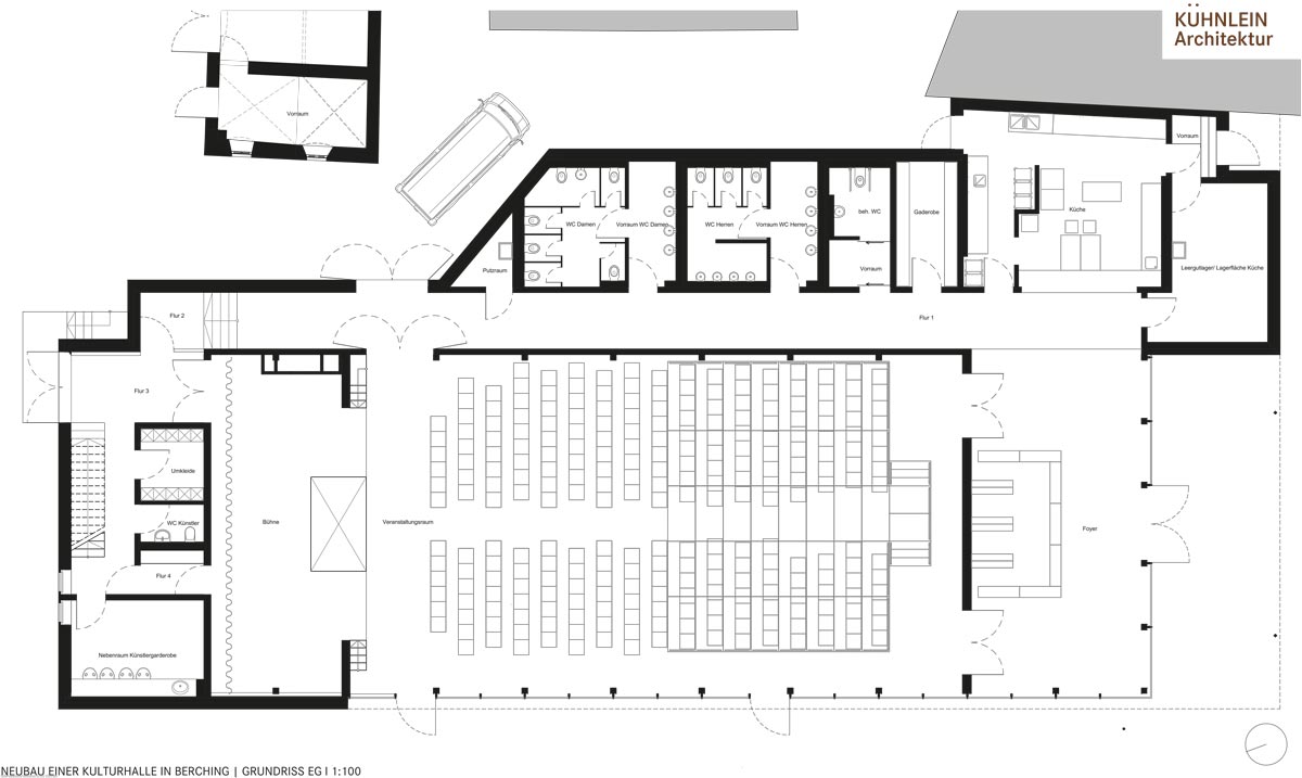
Unter dem großzügigen Satteldach befinden sich ein 260 m2 großer Saal, dazu ein 80 m2 umfassendes Foyer sowie 60 m2 Bühnenfläche plus ergänzende Nebenräume. Bei Reihenbestuhlung bietet der Saal Platz für 260 Personen. Der im Naturton belassene technisch nutzbar gemachte Holzboden harmoniert hervorragend mit den weiß getünchten Holzelementen von Dach und Tragwerk. Die Struktur der im Fischgrät-Stil gehaltenen Schalung verleiht dem Raum trotz seiner Schlichtheit das gewisse Etwas. Aufgrund eigens eingeplanter unterschiedlicher Fugenanteile dient sie zudem der Raumakustik und reguliert die Nachhallzeit. Gleichzeitig unterstützt sie die Aussteifung der Dach- und Wandflächen. Die Technik scheint dabei nahezu zu verschwinden, obwohl die Lüftungsrohre und Kabeltrassen nicht eigens eingefärbt wurden. Die gesamte Innenarchitektur wurde bewusst reduziert, einfach und mithilfe günstiger Materialien gestaltet. Ein Highlight: die dimmbaren Kronleuchter mit Industrie-Leuchtröhren, die von Kühnlein eigens für das Projekt entworfen wurden.
Der flankierende Nebentrakt mit Flachdach schließt zurückhaltend an das Hauptgebäude an und schafft eine gelungene Verbindung zum benachbarten Bestandsgebäude. Aus Brandschutzgründen musste dieser Gebäudeteil in Beton ausgeführt werden. Die Flächen in Sichtbeton und die Deckenverkleidungen aus farblich abgestimmten Holzwolleleichtbauplatten bilden einen markanten Kontrast zur restlichen, eher verspielt wirkenden Holzoptik. Die Gestaltung der Sanitärräume mit deren cool anmutenden Edelstahlobjekten, schlanken Spiegeln sowie einfachen Leuchtmitteln wirkt in Kombination auf eine lässige Art karg und nüchtern und weckt dabei Assoziationen an einen Club in London oder Berlin. Dadurch entsteht aber keinesfalls ein Bruch, vielmehr unterstützt diese Form der Reduktion noch den atmosphärischen Gesamteindruck des Ensembles an sich.
Der Nebentrakt umfasst nicht nur die Nebenräume wie Sanitäranlagen, Catering-Küche und Lagerräume, er bildet als schützendes Vordach, getragen von zwei schlanken Stützen, auch die Klammer zwischen Bestand und neuem Saal. Das Vordach lässt die Satteldachkonstruktion optisch zurücktreten, sodass der Giebel einer hölzernen Pyramide gleich über dem verglasten Foyerbereich zu schweben scheint. Die Nur-Glas-Fassade bringt mit ihren schmalen Profilen – in ihrer Lage abgestimmt auf das Säulenraster – zum einen viel Tageslicht ins Innere und senkt zum anderen das Gefühl der Schwellenangst deutlich herab. Die in Holz gehaltene Eingangstüre wiederum markiert ganz klar, wo der Zugang zu finden ist. Das Resultat: eine sympathische Geste der Öffnung zum Außenraum hin.
Betritt der Besucher schließlich die Kulturhalle, gelangt er über das Foyer rechterhand an der Garderobe vorbei in den luftigen Saal, der gleich beim Betreten den Blick auf die stirnseitig positionierte Bühne freigibt. Diese ist mit einer Hubplattform mit dem Niveau des Saals und Kellers verbunden, der sich in seiner Ausdehnung nur unter dem hinteren Bühnenbereich befindet und Platz für Technik- und Lagerflächen bietet. Zum Wasser hin öffnet sich der Saal mit einer Glasfassade, die sowohl durch Lamellen als auch Vorhänge abgedunkelt werden kann.
Die Kulturhalle Berching zeigt, wie moderne Architektur städtebaulich positiv und belebend ausstrahlen kann, ohne dabei wie ein Fremdkörper in einem gewachsenen Gefüge zu wirken. Gleichzeitig stellt die Lösung von Kühnlein Architektur ein gelungenes Landmark dar, ein identitätsstiftendes Kulturgebäude für alle, das sich nicht anbiedert, sondern Vorhandenes und gelebte Traditionen neu interpretiert und auf charmante Weise in die Zukunft transportiert. Dass dabei sogar Großstadtgefühle aufkommen können, mag nur derjenige zu erkennen, der selbst schon einmal dort war. So oder so kann sich Berching glücklich schätzen, einen so warmen und einladenden Ort in ihrer Dorfmitte geschenkt bekommen zu haben.
Kulturhalle Berching
Berching, Deutschland
Bauherr: Stadt Berching
Planung: Kühnlein Architektur
Mitarbeiter: Ute Fladerer
Statik: Dr. Gollwitzer – Dr. Linse Ingenieure
Grundstücksfläche: 1.500 m2
Bebaute Fläche: 763 m2
Nutzfläche: 800 m2
Planungsbeginn: 2016
Bauzeit: 2 Jahre
Fertigstellung: 10/2020
Baukosten: 2.7 Mio. €
Text: Linda Pezzei
Fotos: Erich Spahn
Kategorie: Projekte













