Passiver Klimapuffer
47 Wohnungen, semi-private Zwischenräume und ein bioklimatisches Atrium – aus diesen drei Elementen setzt sich der soziale Wohnungsbau von dataAE, narch und maira arquitectes zusammen. Mit ihm entwickelten die drei lokalen Architekturbüros in Torre Baró – einem Viertel im Norden von Barcelona – dringend benötigten, leistbaren Wohnraum. Zum Herzstück des Hauses wird der zentrale Innenhof. Er trägt ganzjährig zur passiven Regulierung des Raumklimas und somit maßgeblich zur Energieeffizienz des Gebäudes bei.
Leistbarer Wohnraum für alle
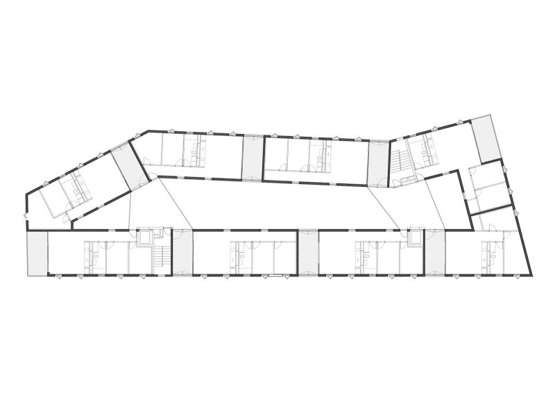
Das Quartier am Rande der spanischen Küstenstadt liegt direkt an der nördlichen Hauptverkehrsachse und zeichnet sich – wie so viele Gegenden Barcelonas – durch seine bewegte Topografie aus. Viele Grundstücke und Bauten wurden hier in Terrassenbauweise angelegt, um die teils steilen Hänge optimal zu nutzen. Großzügige Außenbereiche verstärken auf allen terrassierten Ebenen den Bezug zur Natur und dem angrenzenden Parc de Collserola. Auch der Neubau sollte eine intensive Beziehung zu der gebirgigen Umgebung herstellen und zugleich erschwinglichen Wohnraum für Familien in dem Stadtteil schaffen. Um sämtliche Vorgaben zu erfüllen, entschieden sich die ortsansässigen Planer für eine Art Blockrandbebauung in Holzbauweise. Wo sich zuvor ein Parkplatz befand, legt sich diese rund um ein bioklimatisches Atrium, welches sowohl als Empfangs- bzw. Erschließungsraum als auch als Begegnungsort fungiert. Dabei scheint sich die mäandernde Form des Wohnungsbaus den Höhenschichtenlinien anzupassen. Die vertikal strukturierten Außenansichten sind in dunkelgrünem Wellblech mit 8 mm Stärke ausgeführt und betten den Baukörper stimmig in die Nachbarschaft ein. Neben raumhohen Fenstern (mit passenden Fensterläden im Stil der funktionalen Gebäudehaut) werden die Fassaden von Loggien – die sich bis zum überdachten Innenhof erstrecken – und weißen Brüstungsgittern geprägt.
Effizienz durch passive Planung
Auf sechs Geschossen umfasst der soziale Wohnungsbau 47 subventionierte Einheiten. Die Grundrisse der kompakten Wohnungen unterscheiden sich zwar je nach Position und Ausrichtung, beruhen jedoch stets auf derselben Raumaufteilung. Küche und Wohnzimmer sind in sämtlichen Appartements offen als Gemeinschaftsbereiche gestaltet. Ein Gang erschließt Bad und zwei separate Zimmer mit je 10 m2, die entweder als Schlaf- oder Arbeitszimmer genutzt werden. Zusätzlich ist jeder Einheit ein 13 m2 großer, überdachter Freibereich zugeordnet, der die Wohnfläche nach außen erweitert. Dieser ist über Glasschiebetüren mit dem Appartement verbunden und erstreckt sich – wo möglich – über die gesamte Gebäudetiefe von der Fassade bis hin zum Atrium. Bei manchen Wohnungen stellt dieser Zwischenraum zugleich den Eingangsbereich dar und grenzt die privaten sanft von den kollektiven Funktionen ab, in anderen befindet er sich am Ende und wird zum Abschluss des Zuhauses. Als Übergangszone zwischen Innen- und Außenraum dienen die Loggien zugleich auch als Klimapuffer. Sie bilden die Basis für das passive Energiesystem des sozialen Wohnungsbaus: Während sie im Sommer im geöffneten Zustand mittels Querlüftung eine kühlende Wirkung haben, bleiben sie im Winter geschlossen und verhindern das Entweichen der erwärmten Luft. Die Sonne steht in der dunklen Jahreszeit so tief, dass die Wohnräume sogar ganz ohne zusätzliche Heizung auskommen sollen.
Gemeinsame Mitte mit Mehrwert
Zum gemeinschaftlichen und energetischen Herzstück des Neubaus wird der zentrale Innenhof. Dieser ist mit einem Glasdach ausgestattet, das sich flexibel öffnen bzw. schließen lässt. Innenfassaden aus Fichtenholz (15 mm Dreischichtplatten) schaffen hier eine wohnliche Atmosphäre und zwei Treppen sowie Brücken führen zu den einzelnen Wohneinheiten. In den Sommermonaten schützt das Dach vor der heißen spanischen Sonne und leitet die warme Luft nach oben ab. Die Loggien in den unteren Bereichen stellen eine konstante Frischluftzufuhr sicher, Luken unter dem Oberlicht lenken die Abluft nach draußen und garantieren eine natürliche Zirkulation. In der kühlen Jahreszeit dient das geschlossene Atrium hingegen als Glashaus und beugt Wärmeverlusten vor. Auf diese Weise möchte man bewirken, dass die Bewohner die großzügig dimensionierten Erschließungsflächen 365 Tage im Jahr gemeinsam nutzen und sich im Zentrum des Hauses treffen und austauschen. Außerdem gelang es den drei Büros dataAE, narch und maira arquitectes mit diesen passiven Planungsmaßnahmen – in Kombination mit einer Photovoltaikanlage auf dem Gebäudedach – die erforderliche Haustechnik in der hügeligen Nachbarschaft von Torre Baró auf ein Minimum zu senken. Ein klimatischer Ansatz, von dem nicht nur die Nutzer des sozialen Wohnungsbaus profitieren, sondern der in Spanien auch in den nächsten Jahren auf Grund von steigenden Temperaturen immer wichtiger werden dürfte.
47 Sozialwohnungen in Torre Baró
Nou Barris, Barcelona
Bauherr: IMHAB (Institut Municipal de l‘Habitatge i Rehabilitació de Barcelona)
Planung: dataAE, narch & maira arquitectes
Statik: MVA
Nachhaltigkeitsplanung: Societat Orgànica +10
Bebaute Fläche: 957 m2
Nutzfläche: 4.713 m2
Planungsbeginn: 2017
Baubeginn: 2020
Fertigstellung: 2022
Baukosten: 5.554.078 €
Text: Edina Obermoser
Fotos: Adrià Goula
Kategorie: Newsletter, Projekte










