Neu aufgesetzt
Das Bibliotheksgebäude der Karl-Franzens-Universität Graz bekam vom Atelier Thomas Pucher eine gläserne Krone in Form eines gewaltigen flachen Kubus mit Stahlkonstruktion aufgesetzt − doch nicht nur das. Hinzu kommen auch tief greifendere Überlegungen und Entscheidungen. So wurde die historische Fassade des Bestandsgebäudes freigelegt, ein verbindendes Atrium und ein neuer Bibliotheksvorplatz geschaffen. Der resultierende Mehrwert ist groß.
Das Bauen mit und im Bestand wirft verschiedene Fragen auf: Was verträgt der Ort? Womit kann man weiterarbeiten? Wovon muss man sich trennen? Architekt Thomas Pucher findet durch seine sensible und klare Vorgehensweise für die Grazer Universitätsbibliothek passende Antworten darauf. Die Entscheidungen dafür, wie diese in Zukunft funktionieren soll, sind schon im Zuge des Wettbewerbes 2015 gefallen und führten zu einem siegreichen ersten Platz. Im September 2019 wurde die Bibliothek der Karl-Franzens-Universität nun fertiggestellt und dabei nicht nur restauriert und erweitert, sondern auch neu strukturiert.
Die Universitätsbibliothek war ein Konglomerat von einem historischen Gebäude aus dem Ende des 19. Jahrhunderts und einigen Erweiterungen. Ein Ergänzungsbau aus den 1970er Jahren verdeckte die klassizistische Fassade des Bestandsbaus und wurde deshalb entfernt.
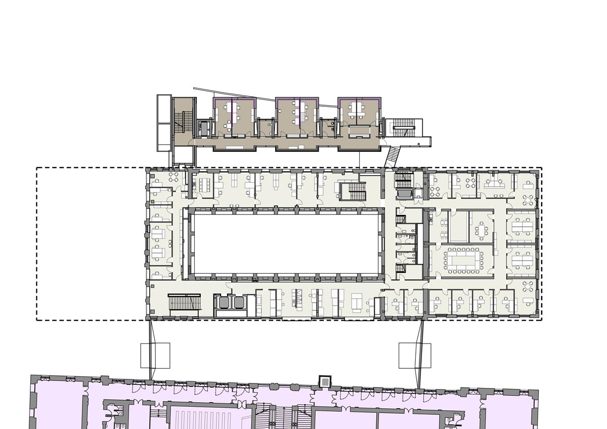
Der Architekt entschloss sich auch dazu, die alte Struktur mit einer neuen zu überlagern. Das nicht nur in dem Sinne, dass ein neuer kubischer und verglaster Baukörper auf den Bestandsbau aufgesetzt wurde. Auch die Gebäudefunktionen und den Zugang organisierte man generell neu. Das führte zur Entscheidung, ein zentrales Atrium und einen neuen Vorplatz zu gestalten.
Der Bibliotheksplatz ist als neuer Umschlagsort für die Studierenden gedacht. Er bündelt die wichtigsten Verbindungsachsen und stellt einen attraktiven Aufenthaltsbereich im Außenraum dar. Damit der Platz nicht komplett der Witterung ausgesetzt ist, zieht sich der auskragende Glaskubus als überdeckendes Vordach über ihn. Auf dieser Platzdecke brachte die Wiener Künstlerin Anna Artaker den vergrößerten Kupferstich einer Buchillustration aus dem 17. Jahrhundert an. Sie verweist dadurch konkret auf die Bibliothek im Gebäudeinneren. Mit der gewählten zentralperspektivischen Darstellung setzt sie auch einen Bezug zur Universitätsgründung Ende des
16. Jahrhunderts, wo die Zentralperspektive gerade den neuesten Kenntnisstand darstellte.
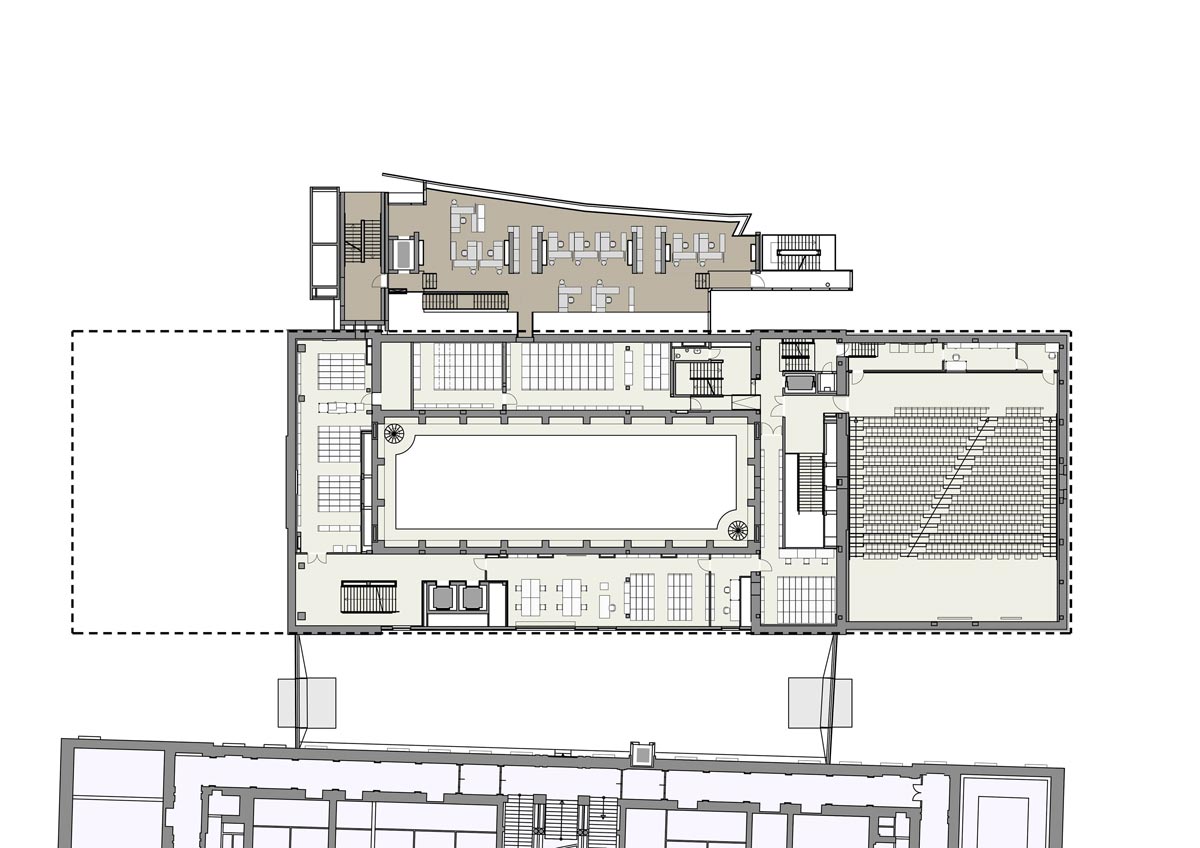
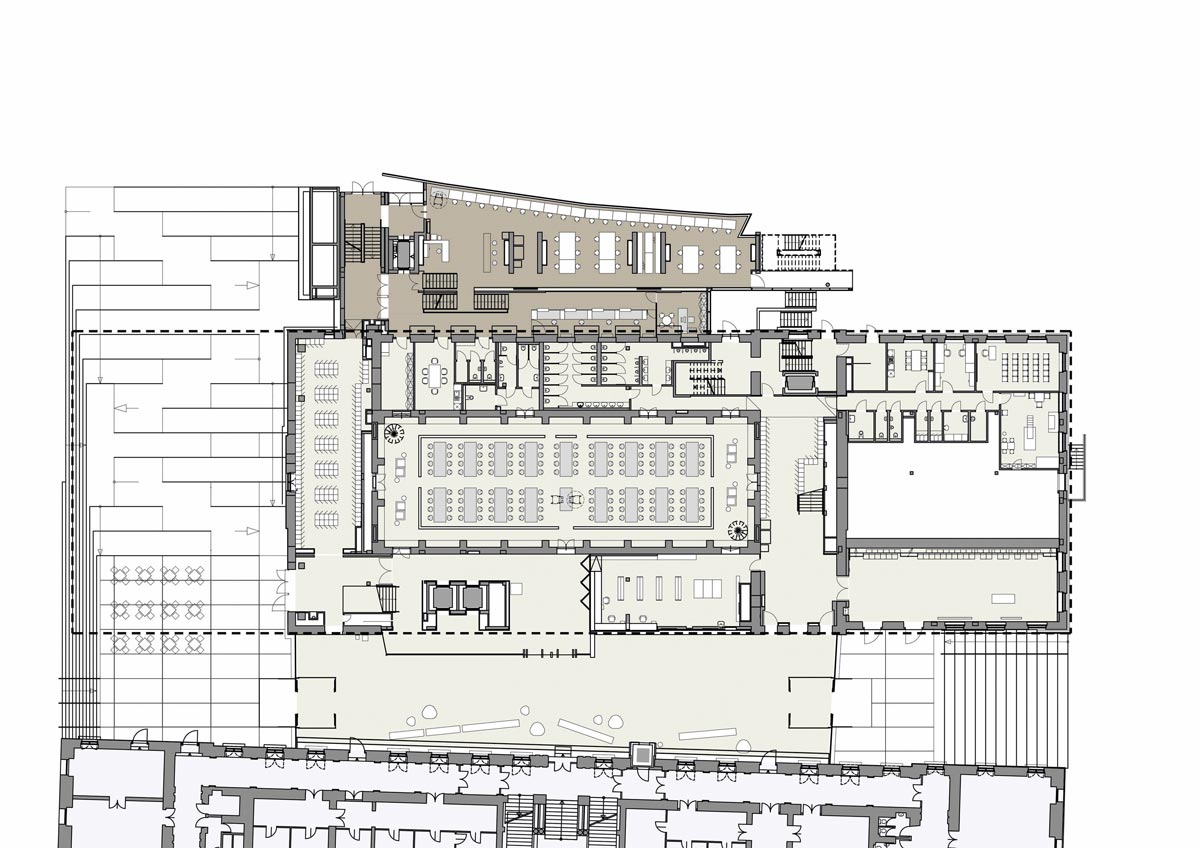
Ein neues verglastes Atrium füllt den Raum zwischen dem Bibliotheks- und dem Hauptgebäude und schafft so eine Verbindung. Es dient auch als neuer Eingangsbereich und bietet durch seine Nutzungsmöglichkeit als Event- und Veranstaltungsbereich einen Mehrwert für die gesamte Universität. Nachdem man die Zugangskontrolle im Atrium passiert hat, gelangt man in das eigentliche Bibliotheksgebäude. Dort hat jeder Studierende die Wahl: Lesen und Lernen im historischen Lesesaal oder in einem der neuen Lesebereiche.
Der historische Bibliothekslesesaal wurde im Zuge der Erweiterung einer Restaurierung unterzogen und erstrahlt wieder in seinem alten Glanz. Durch seine Glasdecke wird er natürlich belichtet und schafft so eine angenehme Arbeitsatmosphäre. Um diese beizubehalten, schnitt man den darüber positionierten flachen Kubus an dieser Stelle ein und gibt durch Galerien den Blick auf das Glasdach des historischen Lesesaales frei. Um dieses herum sind auf zwei Ebenen neue Lesebereiche angeordnet, die insgesamt stärker zoniert sind und so den Studierenden abwechslungsreiche Räume bieten, die mal leiser und lauter oder größer und kleiner sind.
Auch andere Bereich, die für das studentische Leben wertvoll sind, finden im Bibliotheksgebäude Platz. Es gibt einige loungeartige Aufenthaltsräume, einen neuen Vortragssaal, Räumlichkeiten für die Universitätsadministration und eine Dachterrasse.
Der neue aufgestülpte Körper wird liebevoll „flying reading carpet“ genannt, Bezug nehmend auf die weite Auskragung und den roten Teppich, der als Bodenbelag im Inneren gewählt wurde. Kombiniert mit der weiß gestrichenen Stahlkonstruktion, der weißen Deckenverkleidung, den Glaselementen und der weißen Möblierung wirkt er sehr edel und schafft für die Studierenden eine angenehme Arbeitsatmosphäre.
Mit seiner Erweiterung der Universitätsbibliothek Graz findet Architekt Thomas Pucher adäquate Antworten auf die eingangs gestellten Fragen. Die Umgestaltung kommt nicht nur dem Universitätscampus zugute, sondern vor allem auch den Studierenden. Er gibt dem Bibliotheksgebäude sein altes Gesicht mit einem neuen beeindruckenden Kopfschmuck zurück.
Universitätsbibliothek Karl-Franzens-Universität
Universitätsplatz 3a, 8010 Graz
Bauherr: Bundesimmobiliengesellschaft mbH (BIG)
Architekt: DI Thomas Pucher
Projektleitung: DI Magnus Griesbeck
Mitarbeiter: DI Roman Krajger, DI Pia Lackner, DI Hannes Stöffler, DI Matteo Saya, DI Dorota Nagowska, Josef Ebner, DI Dominik Zach, DI Gabriele Steinmann,
DI Peter Rous, DI Alexander Ernst, Maximillian Michl, DI Philip Vossen, DI Joanna Czernicka
Statik: Bollinger und Grohmann ZT GmbH
Bebaute Fläche: 3.518m² (neuer Überbau)
Nutzfläche: 9.547m²
Planungsbeginn: 11/2015
Fertigstellung: 09/2019
Bauzeit: 33 Monate
Baukosten: 28 Mio. Euro
Text: Alexndra Ullmann
Fotos: Crystal O‘Brien-Kupfner und Anna Artaker; David Schreyer
Kategorie: Projekte












