Alles aus Beton im Akitsu House
Alles aus Beton
Akitsu House / Hiroshima / Kazunori Fujimoto Architect & Associates
Eine Architektur, wie sie nur in Japan stehen kann und möglich ist: komplett aus feinstem Sichtbeton. Auf einer schmalen Landzunge situiert, blickt das Haus direkt auf die wunderbare Szenerie des Seto-Binnenmeeres, das die japanischen Inseln Honshū, Shikoku und Kyūshū voneinander trennt. Das Briefing für die Architekten enthielt den Auftrag, dass eine „komfortable Stille“ gewünscht war, gepaart mit einer offenen Atmosphäre.
Ganz in der Tradition einer totalen Reduktion auf Form, Raum und Minimalismus ist dieses Wohnhaus in der Nähe von Hiroshima von den Kazunori Fujimoto Architect & Associates gestaltet worden. Es zeigt, wie reduziert Wohnen in Japan stattfinden kann.
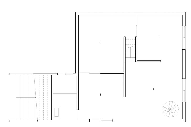
Architekt Kazunori Fujimoto setzte bei seinem Entwurf für das Wohnhaus in der Nähe von Hiroshima im Grundriss zwei Quadrate nebeneinander, die sich über Eck leicht verschneiden. Auch in der Höhe sind sie leicht versetzt angeordnet, sodass sich nicht nur ein kleiner Stiegenlauf als Verbindung ergibt, sondern auch interessante räumliche Verschneidungen und Durchblicke zwischen den beiden Kuben. Die Ausgewogenheit zwischen Öffnungen, Wandbereichen und Proportionen ist bemerkenswert. Er bewegt sich mit dieser Arbeit auf den Spuren und in der Tradition des großen japanischen Architekten Tadao Andō, dem Meister des Sichtbetons.
Der Zugang zum Haus führt vom Garten über eine breite Außenstiege. Eine schmälere Verlängerung dieser Treppe in Gestalt von frei auskragenden Betonbrettern führt als Stiege auf die Dachterrasse. Kein Geländer, kein Handlauf stört die pure Form und Ästhetik. Im Grundriss betrachtet, sitzen die beiden Kuben wiederum auf einem Quadrat, das die umhüllenden Grenzen der Architektur definiert. Das Auge des Betrachters ergänzt automatisch die fehlenden Teile des Körpers und so erscheint das Einfamilienhaus als eher kompakte, kubische Gesamtform. Alles ist aus Beton, sauber geschalt, der Ankerraster und die Rödellöcher werden außen wie innen als ein gewolltes Gestaltungselement der Betonflächen verwendet und wirken wie eine grafische, zweite Oberfläche. Auch die Fußböden sind aus Beton, glatt versiegelt und strahlen den japanischen Minimalismus aus. Das Haus wirkt ausgesprochen kühl und nüchtern, fast wie eine Garage. Wandöffnungen zur Natur haben eigentlich nicht mehr den Charakter von Fenstern, sondern eher den, einer davor gestellten Glasscheibe. Es sind die, von der Architektur Tadao Andōs inspirierten „Bildfenster zur Außenwelt“.
Die Gehlinien im Inneren sind dank der ebenen, fugenlosen Böden und der kurzen Stiegenläufe flüssig und verbinden den Wohnbereich mit den restlichen Zonen. Die polierte Oberfläche des Betonestrichs im Wohnraum ist für die Lichtverstärkung des Außenlichtes notwendig und wichtig. So wirken die Räume trotz der Betonatmosphäre etwas heller. Die Einrichtung ist ebenfalls sehr spärlich, ganz im Sinne des Minimalismus. Erst im bewohnten Zustand wird der unterkühlt anmutenden Atmosphäre der Kuben wohl Leben und Wärme eingehaucht werden.
Der höher liegende der beiden Räume hat eine leicht gedrückte Raumhöhe, um den Nutzern ein Gefühl der Privat- und Geborgenheit zu geben. In einem Eck des Wohnbereiches befindet sich eine Wendeltreppe aus Beton, die in das Untergeschoss führt. Sie ist sicherlich ein Meisterwerk der Schalkunst und Technik. Die sphärische Untersicht der Stiege läuft an den Schnittstellen von Setz- und Trittstufe bis auf wenige Millimeter zusammen. So wurde eine Mittelsäule vermieden und die Achse der Treppe ist nur auf eine einzige, geometrische Linie reduziert. Die Ansicht dieses Betonobjektes erweckt Schwindelgefühle: Ob man auf ihr gehen kann oder soll?
Akitsu House
Hiroshima, Japan
Bauherr: privat
Planung: Kazunori Fujimoto Architect & Associates
Statik: Nishi Structural Consultants
Grundstücksfläche: 122,75 m2
Bebaute Fläche: 81.81 m2
Nutzfläche: 92.69 m2
Planungsbeginn: 2015
Bauzeit: 7 Monate
Fertigstellung: 09/2016
Baukosten: 222.193 Euro
Fotos: © Kazunori Fujimoto
Text: Peter Reischer









