Fast wie im Urzustand – Casa do Rosário
Fast wie im Urzustand
Casa do Rosário / Porto / depA + Margarida Leitão
Im sogenannten „Künstlerviertel“ von Porto, einem der zentralsten und dynamischsten Punkte der Stadt, befinden sich viele, zwischen den engen Straßen eingepferchte, schmal in die Tiefe reichende Grundstücke. Die Straßenfront wird von mehr oder minder interessanten Fassaden gebildet, im hinteren Teil der Grundstücke jedoch sind kleine Paradiese, Höfe und Gärten situiert. Die Häuser, die einst von einzelnen Familien bewohnt waren, sind mit der Zeit aufgeteilt worden und nun wohnen hier, meist auf verschiedenen Geschossen, die unterschiedlichsten Parteien. In diesen Stadthäusern bildet sich die Diversität der kosmopolitischen Stadtbewohner Porto´s ab. So wohnen auch verschiedene Familien auf den Ebenen des Hauses Rosario Street 307, das wie viele andere in Porto zu einem Mehrfamilienhaus geworden ist. Gestaltet wurde das Objekt durch das Büro von depA aus Porto. Es treffen dort nun eine Familie, die seit 63 Jahren hier wohnt, und zwei Architekten, welche sich in die Stadt verliebt haben, zusammen.
Ein sehr schönes Beispiel einer behutsamen Transformation alter Substanz in einen zeitgemäßen Wohnstil ist die Casa do Rosário in Porto, Portugal. depA + Margarida Leitão haben die Architektur zu einem Domizil für drei Parteien gestaltet. Trotz der Kleinheit des Objektes eine großzügige Lösung mit viel Charme.
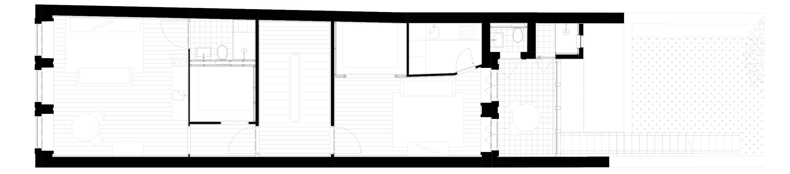
Das Gebäude aus dem 19. Jahrhundert ist in zwei Appartements und drei Studios aufgeteilt. Es ist dermaßen gestaltet, dass alle Familien, Gruppen oder Freunde bequem in einer familiären und kreativen Atmosphäre leben können. Die Casa do Rosário ist eigentlich „perfekt“. Ein angenehmer Maßstab, eine ansprechende Raumaufteilung und eine bezaubernde Atmosphäre machen ihre Eigenheiten aus. Die Herausforderung für die Gestalter war, diesen häuslichen Geist und die Raumatmosphäre zu erhalten und sich einem außergewöhnlichen Design oder großen Eingriffen zu verweigern. Unter diesen Gesichtspunkten war der wichtigste Punkt des Projektes die Erhaltung des Zustandes, die ursprünglichen, originalen Referenzen wieder aufzunehmen und die schlimmsten Eingriffe der vergangenen Jahre rückzubauen.
Die Eingangs/Hauptfassade restaurierten die Architekten vorbildlich und dort, wo die ursprünglichen gelben Fliesen fehlten, wurden Sie ersetzt. Die rückwärtige Fassade wurde komplett neu gestaltet, da hier in der Vergangenheit Räume ohne jegliche konstruktive Qualität angehängt worden waren. Der Strategie folgend, die beim gesamten Gebäude angewendet wurde, ist die hintere Fassade das Resultat der Komposition einer Holzstruktur mit wiederverwerteten Oberlichten. Diese wurden adaptiert, sodass sie als Türen und Fenster fungieren können. Als Inspiration für das zarte Farbschema der Innenräume diente die bereits vorhandene Farbgebung der Fassade. So harmonieren die gelben, geometrisch gemusterten Zementfliesen am Boden des Wintergartens und der Nasszellen im Inneren gleichzeitig mit der äußeren Erscheinung des Hauses. Die meisten Möbelstücke wurden an Ort und Stelle speziell entworfen und aus einer Mischung neuer und alter, auf der Baustelle gefundener funktionsloser Holzteile zusammengebaut. Im gesamten Haus sind die Fenster aus Holz und lackiert, Fensterrahmen und Türschwellen aus Naturstein.
Dieses Haus, wie so viele andere aus dem 19. Jahrhundert stammende, in Porto, löst sich im hinteren Teil des Grundstückes in einen Hof und einen privaten Garten auf. Hier findet sich noch ein kleines Studio, welches nach denselben Designprinzipien gestaltet ist.
Dieses Projekt stellt ein typisches Beispiel für die Entwicklung der Architekturszene auf der iberischen Halbinsel nach 2008 dar. Durch das Platzen der Immobilienblase suchten viele junge Architekten neue Betätigungsfelder. Einige gingen ins Ausland oder nahmen erfolgreich an internationalen Wettbewerben teil. Andere verlegten sich auf die liebevolle Restaurierung und Wiederbelebung alter Substanz. In diesem Fall ist das sichtbare Äußere nur minimal verändert worden, das Innere aber sehr geschickt mit ebenso minimalen und reduzierten Methoden in einen modernen Lebensraum verwandelt worden. Und – nicht zu vergessen – mit einem minimalen Budget.
Casa do Rosário
Porto, Portugal
Bauherr: privat
Planung: depA + Margarida Leitão
Statik: Edgar Brito
Grundstücksfläche: 382 m2
Bebaute Fläche: 382 m2
Nutzfläche: 237,5 m2
Planungsbeginn: 2014
Bauzeit: 2 Jahre
Fertigstellung: 2016
Baukosten: 120.000 Euro
Text: Peter Reischer
Fotos: © José Campos









