65 www.architektur-online.com Architekt Giuseppe Gurrieri
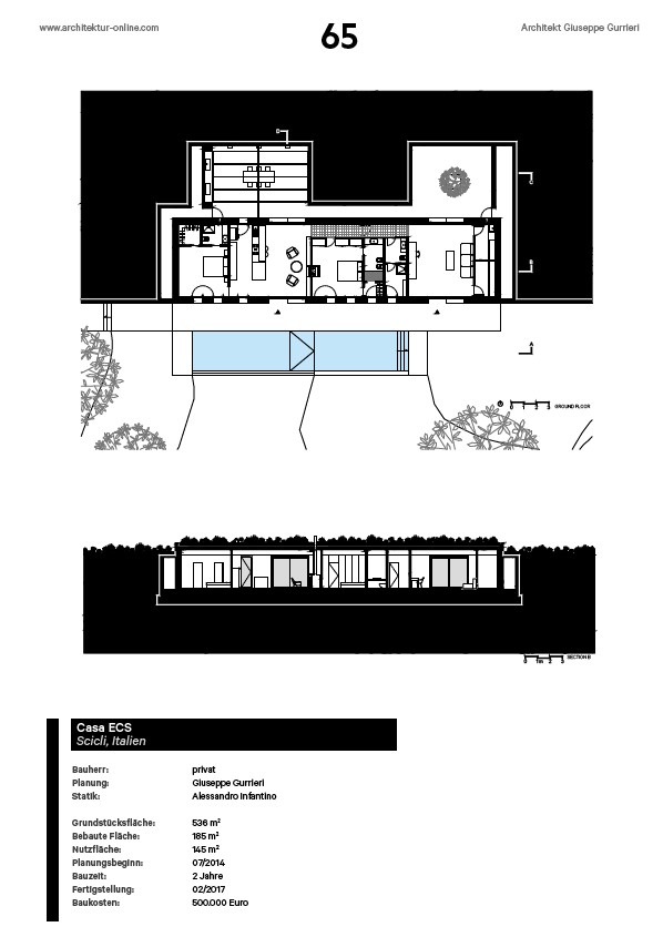
Casa ECS
Scicli, Italien
Bauherr: privat
Planung: Giuseppe Gurrieri
Statik: Alessandro Infantino
Grundstücksfläche: 536 m2
Bebaute Fläche: 185 m2
Nutzfläche: 145 m2
Planungsbeginn: 07/2014
Bauzeit: 2 Jahre
Fertigstellung: 02/2017
Baukosten: 500.000 Euro
C
B
A
0 1 2 3
D
GROUND FLOOR
SECTION B 0 1m 2 3
/www.architektur-online.com