79 www.architektur-online.com Caramel Architekten und Arch. Günther Litzlbauer
hauswirt.raum
abstellraum
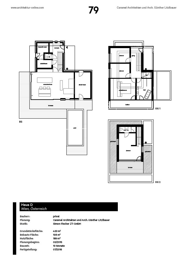
Haus D
Wien, Österreich
wc
vorraum
Bauherr: privat
Planung: Caramel Architekten und Arch. Günther Litzlbauer
Statik: Simon-Fischer ZT-GmbH
Grundstücksfläche: 433 m2
Bebaute Fläche: 108 m2
Nutzfläche: 189 m2
Planungsbeginn: 03/2015
Bauzeit: 10 Monate
Fertigstellung: 07/2016
wannesanstar180/80
zimmer gang
schlafzimmer
balkon
zimmer
WC
bad
bad / wc
terrase
gründach
gründach
zimmer
essen/wohnen abstellraum
pool
terrasse
EG
OG 1
OG 2
/www.architektur-online.com